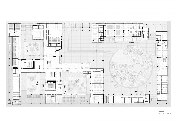
该建筑围绕六个空间组织:花园、四个外部庭院和连接其他空间和入口的 "内部道路",以形成研究所的 "社会中心"。在建筑的西半部和开放的花园之间有一座图书馆 "桥",它将学者、教授和工作人员的社区与一系列连锁的大厅、阅览室和木屋空间联系起来。该建筑的外部形式由800个办公室组成,结构细密,位于更大跨度的实验室和露天剧场之上。在地面上,该结构是尽可能开放的,这样公共空间和花园就可以流动起来,形成一个连续的公民景观。
The building is organised around six spaces: the garden, four external courtyards and the ‘Rue intérieure’ which connects the other spaces and the entrance to form a 'social heart' for the institute. Between the compressed western half of the building and the open garden spans a library ‘bridge’ which connects the community of scholars, professors, and staff with a series of interlocking halls, reading rooms and loggias spaces. The outer form of the block is held by the 800 offices with a fine-grained structure, sitting above the larger laboratories and amphitheatres below which have greater spans. At ground level the structure is as open as possible so the public spaces and garden can flow together to form a continuous civic landscape.


这座建筑位于巴黎附近的一个高原的总体规划中,该规划提出了街道、广场和林荫大道,诗意地整合了景观、学习和工业。我们探索了教育机构的伟大传统中的草坪、四合院和回廊的遗产。在建造21世纪大学建筑的过程中,我们从对历史先例的仔细研究中得到启发,如巴黎皇家宫、都柏林三一学院、米兰的Ospedale Maggiore和古希腊的Attalos Stoa。
This building sits within a master plan for a plateau near Paris which proposes streets, squares and boulevards, poetically integrating landscape, learning and industry. We explored the legacy of lawns, quadrangles and cloisters in the great tradition of educa-tional institutions. In the making of a 21st Century university building we were inspired by a close study of historical precedent such as the Palais Royale, Paris and Trinity College, Dublin and the Ospedale Maggiore, Milan and the ancient Greek Stoa of Attalos.



我们把这座新建筑看作是一个思想的大熔炉,在这里,共享的元素被牢牢地放在地面上,更多的私人空间被提升到天空。为了给人一种独特的感觉,我们希望通过1.35米、2.7米、5.4米和10.8米的调节节奏来创造围墙,但不是硬性的边界--一个 "音乐 "立面包围着花园、庭院和大厅--共享空间,将研究社区吸引到一起,并将公共领域扩展到整个场地。
We thought about this new building as a cauldron of ideas where shared elements are placed firmly on the ground and more private space is raised up towards the sky. To give a distinct sense of place we wished to create enclosure but not hard boundaries using a modulated rhythm of 1.35m, 2.7m, 5.4m and 10.8m - a ‘musical’ facade enclosing gardens, courtyards and halls - shared spaces which draw the research community together and extend the public realm across the site.


在一个现成的混凝土框架上,根据方向和高度的不同,有一个深度不同的混凝土鳍片的面纱,从而形成一个生动的光影表面,防止过热和眩光。这些翅片由骨料和沙子制成,复制了萨克雷粘土的丰富赭色。
Held on an in-situ concrete frame, a veil of concrete fins vary in depth depending on orientation and height which results in a lively surface of light and shade, preventing overheating and glare. These fins are made of an aggregate and sand which replicate the rich ochre colour of Saclay clay.

设计符合H.Q.E.标准,以实现低维护和减少能源消耗:所有的窗户都是可打开的,这使得自然通风、维护和用户可以控制他们的直接环境。花园中的 "miroir d'eau "作为一个雨水衰减池,被树木环绕。
Designed to H.Q.E. standards to be low maintenance and reduce energy consumption: all the windows are openable which allows natural ventilation, maintenance and for users to control their immediate environment. A ‘miroir d’eau’ in the garden functions as a rainwater attenuation tank surrounded by trees.

该结构原理在上面的办公空间和下面的 "内部街"、露天剧场、教室和实验室的大体量之间进行调解。在二楼 "piano nobile "的天花板上有一个转换结构,在这些较小和较大的跨度之间创造了过渡,使实验室和图书馆能够 "漂浮 “在大型相互连接的底层空间之上。
The structural principle mediates between office spaces above and the larger volumes of the ‘Rue Interieure’, amphitheatres, classrooms and laboratories below. A transfer structure at the ceiling of the second floor ‘piano nobile’ creates the transition between these smaller and larger spans which allows the laboratories and library to 'float' above the large interconnecting ground floor spaces.












Architects: Grafton Architects
Area : 40000 m²
Year : 2021
Photographs :Philippe Ruault, Dennis Gilbert
Manufacturers : Castel Alu, DBS, EURO-ASCENSEURS, Eliez, France Sols, Garrigues, Horis, IDS, LCCA, Mabuleau, Mussidan, Ridoret, Sept Resine
Landscape Architects : Atelier Moabi
Quantity Surveyor : Alayrac
Acoustic Engineer : Groupe Gamba
Project Managment : Artelia
Client : Institut Mines-Télécom
Local Architect : Vigneu Zilio Architectes
Environmental Certification : Green Affair
Kitchen Consultant : EFC
Signage : Locomotion
Structural Engineers : Oteis
Civil Engineers : Oteis
Geothermal Engineers : Oteis
HVAC : Oteis
M&E : Oteis
Environmental Engineer : Chapman BDSP
Construction Management : Egis
City : Palaiseau
Country : France