海洋科学研究所致力于海洋学的研究。这个小校园欢迎研究人员来研究海洋的保护问题。两个主题是我们思考的核心:接待和背景;特别是地中海环境。坐落在海岸边,该项目容纳了一个住宿和工作空间的项目。
The Institute of Marine Sciences is dedicated to research in oceanology. This small campus welcomes researchers to study the preservation of the sea. Two themes were at the heart of our reflection: hospitality and context; specifically the Mediterranean environment. Situated on the coast, the project houses a program of accommodation and workspaces.





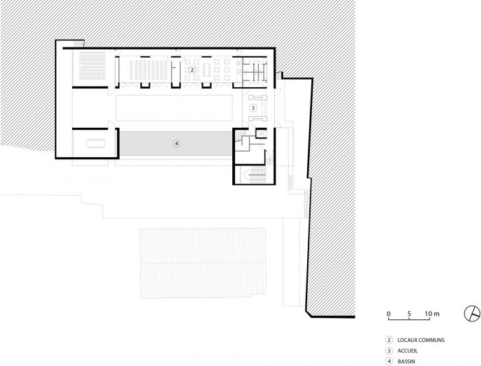
坐落在悬崖脚下,该建筑利用场地的限制来定义一个基础设施的架构。地形产生了一个回廊,被坡度解构了。该建筑由两个L形体组成。一个形成了一个包含公共区域的基地。另一个是倒置的房间。这种叠加创造了一个新的空间性,即天井。悬空的体量横跨一个游泳池,使天井向海景开放。在别墅和军营之间,这个设计既拒绝又接受了模糊的 "领土"。
Nestled at the foot of a cliff, the building uses the constraints of the site to define an infrastructural architecture. The topography generates a cloister, deconstructed by the slope. The building is composed of two L volumes. One forms a base containing the common areas. The other inverted houses the rooms. This superposition creates a new spatiality, the patio. The suspended volume spans a pool and opens up the patio to the seascape. Set amongst villas and military barracks, the design both rejects and accepts the ambiguous ‘territoire.’



它由附近采石场的混凝土建成,参考了俯瞰它的悬崖。金属百叶窗作为阳台上的屏风,让人想起当地建筑遗产中的绳索厂和军械库的窗户。混凝土块和金属百叶窗的关联创造了一个古老主义和当代性之间的对话。
Built of concrete from nearby quarries it references the cliffs that overlook it. Metal shutters double as screens on the balconies and recall the windows of the rope-works and armory, local buildings of architectural heritage. The association of concrete masses and metal shutters creates a dialogue between archaism and contemporaneity.

典型的回廊回应了研究人员对内部的渴望,并产生了一个可居住的基础设施项目。该建筑既是内向的,专门用于研究,又是外向的,鼓励交流和向外投射。内陆的场地使访问变得复杂,但也创造了其特殊性。一个坡道通向实验室、停车场和面向天井的公共房间。
The archetypal cloister responds to a desire for interiority by the researchers and generates a habitable infrastructural project. The building is both introverted, dedicated to research, and extroverted, encouraging exchange and projecting out. The landlocked site makes access complex yet also creates its specificity. A ramp leads up to the labs, a car park, and above the common rooms facing the patio.


这些公共房间由走廊连接,由天窗自然采光。折叠式玻璃门允许房间完全向天井开放;让人想起码头边的船棚的功能。这座建筑简单而不杂乱的语言回应了在其中进行的活动的性质。事实上,日常的潜水活动需要功能性、耐受性和坚实的设计空间。没有明显的过度复杂化,这种姿态;理论和实用性,确保了客户的支持。对斜坡的适应性对价格有很大影响,但建筑参与了对上方土地的支撑。在这个被认为不适合居住的地方,建筑师和客户联合起来,创造了一个促进反思、交流和欢聚的项目。
These common rooms are linked by corridors, naturally lit by skylights. Folding glass doors allow the rooms to be fully opened to the patio; reminiscent of the functionality of the dockside boat sheds. The simple, uncluttered language of the building responds to the nature of the activities that take place within it. Indeed, daily diving outings require functional, resistant, and solidly designed spaces. No over-sophistication is evident and this posture; theoretical and pragmatic, secured the support of the client. Adaption to the slope weighed heavily on the price but the build participates in buttressing the land above. On this site designated inhospitable, architect and client have united to create a project that fosters reflection, exchange, and conviviality.

体积的叠加创造了一个开口,使海风进入下面的阴凉水池上方的天井,从而冷却空气并使建筑自然通风。这种新鲜空气传播到公共房间,并被屋顶通风系统抽走。阴凉、天井和游泳池、海风和混凝土的矿物特性对我们来说是一个坚决的地中海建筑的条件。
The superposition of volumes creates an opening and allows sea air to enter the patio over the shaded pool underneath which cools the air and naturally ventilates the building. This fresh air propagates into the common rooms and is extracted by roof ventilation. Shade, the patio and pool, sea breezes, and the mineral properties of concrete were for us the conditions of a resolutely situated Mediterranean architecture.


材料的选择是与场地相关的。混凝土;古老的表达材料,因其技术上的创新能力而保持现代性。这个项目,给项目带来了沉默、抽象和所追求的戏剧性。在这个地区,混凝土是一种本地资源。它是一个石匠的国家,采石场很近。原地浇筑的手工性质意味着工地是活泼的,保留了不能总是预测的结果的惊喜。
The choice of material is linked to the site. Concrete; archaic material of expression, remains contemporary by its technical innovative capacities. This project, brings silence, abstraction, and the sought-after dramaturgy to the project. In this region, concrete is a local resource. It is a country of masons and the quarries are close. The artisanal nature of casting in-situ means the worksite is lively, preserving the surprise of results that cannot always be predicted.


在与墙壁的光滑矿物质的对话中,可旋转的百叶窗就像钢铁盔甲,保护卧室不受气势汹汹的海景的影响。这个组合创造了一个持久的建筑,适合欢迎年轻的研究人员参加地中海的研究项目。
In dialogue with the smooth minerality of the walls, the pivoting shutters are like steel armor that protects the bedrooms from the imposing seascape. The ensemble creates an enduring building, suitable to welcome young researchers to a study program on the Mediterranean.










Architects: CAB Architects
Area : 2400 m²
Year : 2018
Photographs :Aldo Amoretti
Lead Architects : Jean-Patrice Calori, Bita Azimi , Marc Botineau, Marine Cangione
Structure : Turra, E&G
Mechanical And Electrical Design : Enerscop
Sustainable Engineering : Biotop
Principal Use : The buildings houses 42 double and single rooms, collective living spaces, an ocean observation laboratory, an auditorium, a Learning Center and a cafeteria.
Economics : Bureau Michel Forgue
City : Villefranche-sur-Mer
Country : France