悉尼国际大厦由Tzannes建筑师为Lendlease设计,是城市中一个独特的新元素,在Barangaroo新区和城市的历史中心之间建立了一个温馨的联系。
Designed by Tzannes architects for Lendlease, International House Sydney is a distinctive new element in the city, establishing a warm and welcoming connection between the new precinct of Barangaroo and the historic heart of the city.



悉尼国际大厦最引人注目的地方是,地上六层完全由工程或交叉层压木材建造,包括地板、柱子、墙壁、屋顶、电梯井、出口楼梯和支撑托架,由传统混凝土结构的单一地面零售层支撑。
The most striking aspect of International House Sydney is that six above ground levels are constructed entirely from engineered or cross laminated timber, including floors, columns, walls, roof, lift shafts, egress stairs and bracing bays, supported by a single ground retail level of conventional concrete structure.

该建筑探索了一种新的美学形式,具有独特和完整的特征,具有突出的绿色证书。它以审美的力量表达了完全暴露在外的木材结构,去掉了额外的装饰材料层。
The building explores a new form of beauty, one of unique and integral character, with outstanding green credentials. It expresses with aesthetic potency the fully exposed timber structure, stripped of additional layers of finishing materials.


这是一个细节严谨的建筑,经久耐用,而不仅仅是为了 "美学效果"。它的目的是成为一个长期升值的商业资产,因其固有的、持久的美而被理解。
This is architecture that is detailed with rigour, made to last and not simply for ‘aesthetic effect’. Its intention is to become a long-term appreciating commercial asset, understood for its intrinsic, enduring beauty.

建筑中使用了约3500立方米的可持续种植和回收的木材。通过不使用混凝土,避免了数千吨的温室气体。
Around 3,500 cubic metres of sustainably grown and recycled timber were used in construction. By not using concrete, thousands of tonnes of greenhouse gases were avoided.

重要的是,悉尼国际大厦表明,商业房地产市场将接受大规模木材建筑作为传统混凝土建筑的可行和令人兴奋的替代方案,增加了建筑的机会,以更有效地促进世界各地城市发展的低碳和更可持续的未来。
Importantly, International House Sydney demonstrates that the commercial real estate market will accept mass timber construction as a viable and exciting alternative to conventional concrete construction, increasing opportunity for architecture to contribute more effectively to a lower carbon and more sustainable future for urban development around the world.


悉尼国际大厦的设计理念是为公共领域的体验增加便利性和愉悦性,展示环境可持续设计的领导地位,并促进健康。结构上使用的完全天然和可再生的木材材料是项目的创新技术,它在世界各地越来越多的商业应用中被证明具有前景。
International House Sydney was conceived to add amenity and delight to the experience of the public realm, to demonstrate leadership in environmentally sustainable design and foster wellbeing. The entirely natural and renewable timber material used structurally is innovative technology for projects with demonstrated prospects for its adoption across an increasing number of commercial applications around the world.

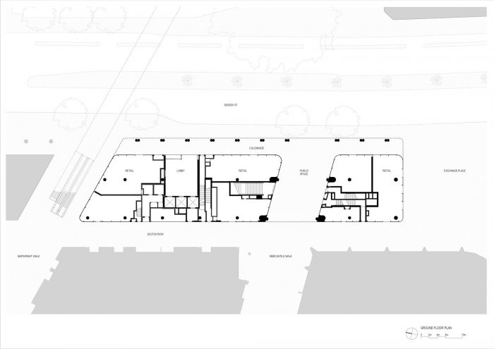
悉尼国际大厦位于希克森路(Hickson Road)沿线的巴兰格罗南区边界,南北两侧是连接城市的人行天桥,它以一个壮观的两层柱廊定义了巴兰格罗南区商业和零售区的街道边缘,柱廊由回收的铁皮实木设计。柱廊通向南面的立面,形成有顶的公共广场,并与另一个重要的有顶公共空间Mercantile Walk相连,在一个受保护的环境中提供更多的活动机会。
Located on the boundary of the Barangaroo South precinct along Hickson Road and flanked to the north and south by pedestrian bridges that connect back to the city, International House Sydney defines the street edge of the Barangaroo South commercial and retail precinct with a spectacular 2-storey colonnade designed from recycled iron bark solid timber. The colonnade leads to the southern façade forming the covered public plaza and connects to Mercantile Walk with another significant covered public space providing additional opportunities for activities within a protected environment.

该建筑以场所建设概念为基础:包括建立以行人为导向的规模;加强街道和行人网络的城市形式,在拐角处创造特殊条件,以改善行人的舒适度和体验;建立一个简单、低调的审美特征,作为与辖区内其他建筑的对比,以提高可读性;室内为居住者创造一个新鲜和健康的工作环境。
The architecture is underpinned underpinned by placemaking concepts: including establishing pedestrian oriented scale; reinforcing the urban form of the street and pedestrian networks, creating special conditions at corners to improve pedestrian amenity and experience; establishing a simple, understated aesthetic character as a counterpoint to other architecture in the precinct to enhance legibility; am interiors that create a fresh and healthy working environment for occupants.

该设计将结构工程木材和回收硬木的结构局限性转化为优势,通过建筑的柱子和横梁结构建立起强大的视觉存在和清晰的负载路径。双层高度的柱廊支撑柱由回收的铁皮制成,唤起了人们对木材的森林起源的记忆,这些古老的树木在新的工业用途中得到尊重,进一步区分了建筑及其对公共领域的设计的贡献。
The design turns the structural limitations of structural engineered mass timber and recycled hardwood to advantage, establishing a strong visual presence and legible load path through the building column and beam construction. The double height colonnade bracing columns made from recycled ironbark evoke memories of the forest origins of timber, these ancient trees respected in their new industrial use to further distinguish the architecture and its contribution to the design of the public domain.

Planet Ark和其他机构指出,木材内饰对居住者的生理和心理有积极的好处。木材的气味、触觉和视觉刺激提供了一个更自然和健康的室内环境。它的感觉和自然的温暖已被证明可以减少压力和焦虑,特别是当与改善的室内空气质量和美丽的美学相结合时。
结构的预制大大减少了施工时间,并通过非现场工厂制造实现了额外的质量控制。木材组件的全部预制工作是通过全面的三维数字文件流程来完成的,在采购前协调每一个贯穿、连接和接口。
Planet Ark and others indicate positive physiological and psychological benefits for occupants of timber interiors. The smell, tactile and visual stimuli of timber deliver a more natural and healthy indoor environment. Its feeling and natural warmth has been shown to reduce stress and anxiety, particularly when coupled with improved indoor air quality and beautiful aesthetics.
Prefabrication of the structure provided significant reduction in construction time and additional quality control achieved by off site factory manufacture. The full prefabrication of the timber components was delivered through a comprehensive 3D digital documentation process, co-ordinating every penetration, connection and interface prior to procurement

悉尼国际大厦是地方建筑的典范,减少了建筑环境中的负面环境影响。它提供了一个持续的碳存储,指向全球商业建筑的未来。
International House Sydney is an exemplar of place making architecture that reduces negative environmental impacts in the built environment. It provides an ongoing store for carbon pointing towards the future of commercial building construction globally.












Architects: TZANNES
Area: 7920 m²
Year: 2017
Photographs: Ben Guthrie, John Gollings
Manufacturers: HESS TIMBER, Austral Bricks, Australian Architectural Hardwoods, HASSLACHER NORICA TIMBER, Permasteelisa, Stora Enso, Ezytube
City:BARANGAROO
Country:Australia