对这一废弃物业的遗产干预建议,旨在重新引导其使用方向,以灵活的工作空间为导向,加强该部门的教育性质并使其多样化。为此,有必要加强和重建原来的外墙,并建造一个新的建筑,以重新构成使用和活动的节奏,今天,由于火灾留下的程序性空白,离开了风景区的外墙,已经被打断了。作为一个混合的空间,在其使用和材料方面,它在其提案中考虑了被摧毁的房子的遗迹,在那里你可以工作、吃饭、散步和享受乐趣,在圣地亚哥的大学区中间。
The heritage intervention proposal on this derelict property seeks to redirect its use with an orientation towards flexible workspaces to enhance and diversify the educational nature of the sector. For this, it is necessary to reinforce and rebuild the original facades and construct a new building that reconstitutes the rhythm of use and activity that today has been interrupted by the programmatic void left by the fire leaving the scenographic facade. To be known as a mixed space, both in its use and its materiality, which considers in its proposal the vestige of the destroyed house, where you can work, eat, walk, and take pleasure of, in the middle of the university neighborhood of Santiago.





2016年,一场毁灭性的大火使位于传统的Av.República大街上的一座被宣布为历史保护的老房子变成了废墟。位于圣地亚哥历史中心的传统的Av.República。原来的房子,可以追溯到上个世纪初,被设想为一栋公寓楼,有三层和一个后花园。多年来,与附近的居民一起,它经历了不同的程序变化,从最初的概念,最后成为一个学术建筑,它的花园是用一个质量差的建筑建成的,也被火烧毁。只有它的前后立面和周边的隔墙,都是简单的砖石结构,三层楼高,仍然屹立不倒。原本用木头建造的内部和占据后花园的建筑都消失了,使这些墙处于不稳定的状态。主立面与相邻的角楼一起,保持了赋予大道巨大价值的历史特征。因此,无论是对国家古迹委员会还是对市政工程局来说,保护它们都是最重要的。
In 2016 a devastating fire left in ruins an old house of declared Historic Conservation located on the traditional Av. República in the historic center of Santiago. The original house, dating from the beginning of the last century, was conceived as an apartment building, with three floors and a rear garden. Over the years, together with the neighborhood, it underwent different program changes from its original conception, ending up as an academic building and its garden was built with a poor quality building, which was also destroyed by the fire. Only its front and rear facades and the perimeter dividing walls, all of simple masonry, three stories high, remained standing. The interior, originally constructed in wood, and the building that occupied the rear garden were lost, leaving these walls in an unstable situation. The main facade along with the adjoining corner house maintains the historical character that gives great value to the avenue. So, there is the utmost importance to preserve them, both for the Council of National Monuments and for the Directorate of Municipal Works.

该项目的基础是不仅恢复建筑的主立面,作为两个实体的条件,还包括包含原始项目的三面墙,两面隔墙,以及将建筑与失去的花园隔开的后墙。该项目的干预策略旨在保护现有的墙体,尊重并保持原有结构和周边环境的形象。反过来,理解历史保护财产以及该部门的遗产性质,它被视为一个综合的社区。为此,我们提出了一个内部结构,支持和使用现有的外墙,通过一个具有巨大空间感的现代建筑,灵活的,允许新建筑有尽可能多的用途。
The project is based on restoring not only the main facade of the building, as a condition of both entities, but also the three walls that contained the original project, two dividing walls, and the back wall that delimited the building with the lost garden. The project's intervention strategy aimed to preserve the existing walls respecting and maintaining the image of the pre-existing structure and the immediate surroundings. In turn, understanding the patrimonial nature of both the Historic Conservation Property as well as the sector, which is presented as a consolidated neighborhood. For this, we proposed an interior structure that supports and uses the existing facades as its own, through a contemporary building of great spatiality, flexible, that allows as many uses as possible for the new building.



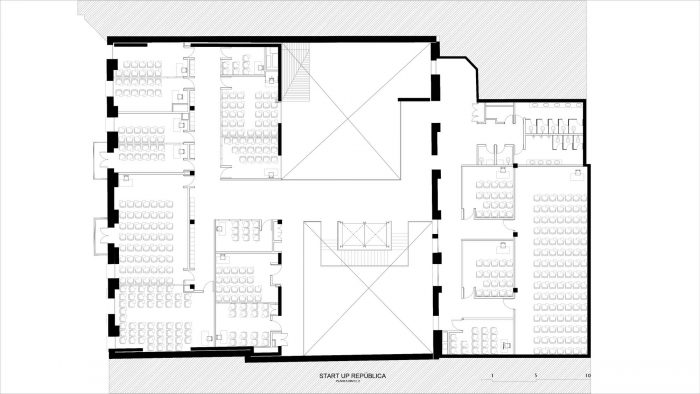
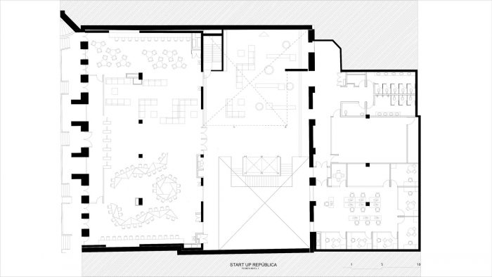
在监管计划的条件下,要求该部门每层留出30%的空隙,我们决定将这一要求的空隙集中在一个中央庭院,为建筑内部带来自然光和通风,也集中了人们的水平和垂直循环,从而成为项目的中心或核心。为此,一栋建筑的外墙面向共和国大道,负责主立面,利用来自街道和新天井的自然光,另一栋建筑建在旧花园的位置。后者通过拟议的新天井进行照明和通风,由原建筑的后部立面支撑,但在这种情况下,简单的砖石的气势立面作为内部天井的立面而裸露出来。这与建筑的分隔墙一起,在砖的材料质量、垂直和水平循环的金属结构以及现代混凝土之间建立了一种对比氛围。
Under the condition of the regulatory plan, which requires the sector to leave 30% free of building per floor, it was decided to concentrate this required void on a single central courtyard that carries natural light and ventilation inside the building, also focusing the horizontal and vertical circulation of people, thus becoming the center or heart of the project. For this, a building with its facade facing Avenida República, which takes charge of the main facade, using natural light both from the street and through the new patio, and a second building built in the place of the old garden. The latter, illuminated and ventilated through the proposed new patio, being supported by the rear facade of the original building, but in this case, that imposing facade of simple masonry left bare and exposed as the facade of the interior patio. This, along with the dividing walls of the building also left bare, builds an atmosphere of contrast between the material quality of the brick, the metallic structure of the vertical and horizontal circulations, and the contemporary concrete.



为了实施这个新项目,需要进行复杂的后勤工作。它从用金属结构加固现有的外墙开始,这些金属结构将被拆除,因为最终的混凝土接管了现有的砖石墙的结构,将被保留下来。由于新项目寻求使该物业更有利可图,两层楼被设计在自然地面以下。考虑到这一点,挖掘工作必须考虑到砖石墙的支撑,并允许新建筑安全地执行。
Complex logistical work was necessary in order to carry out the new project. It began with the reinforcement of the existing facades with metal structures that would be dismantled as the definitive concrete took over the structuring of the existing masonry walls to be preserved. As the new project sought to make the property more profitable, two floors were designed below the natural ground level. With this in mind, the excavation had to take into account the support of the masonry walls and allow the new building to be executed safely.


















Architects: MSRAA - Martin Schmidt Radic Arquitectos Asociados
Area: 4084 m²
Year: 2021
Photographs: Aryeh Kornfeld K.
Manufacturers: AutoDesk, Bradley Corporation USA, Lamitech, ULMA Architectural Solutions, GE Lighting, Norton, Sherwin-Williams, AMF, AQUARELLO, Aislan Glass, Baker Rod, Budnik, CILETE, Cintac, Cobra, Comercial Hispano y Wasser, DVP, Ducasse, GALA, Helvex, +12
Lead Architect: Martin Schmidt Radic
Collaborating Architects:Paloma Sánchez, Rosario Muñoz, Jessy Meléndez, Leonardo Gaete
Country:Chile