该公寓位于Riachuelo大厦,是建筑师Ruy Ohtake在1972年的一个项目。该项目试图探索和重视建筑的原始建筑元素,特别是大窗户。通过拆除餐厅、走廊和厨房之间的原墙,不仅可以整合这些环境,还可以使自然采光和交叉通风成为该公寓的基本条件。
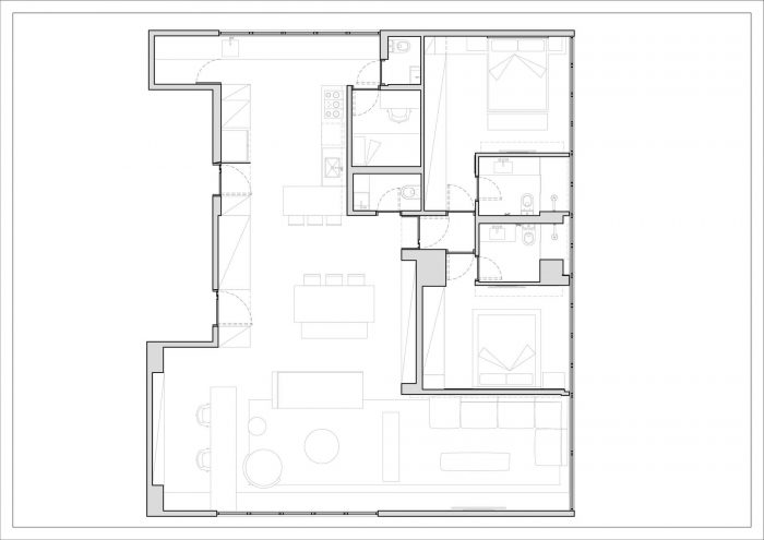
The apartment is located in the Riachuelo Building, a 1972 project by architect Ruy Ohtake. The project sought to explore and value the building's original construction elements, especially the large windows. By demolishing the original walls between dining room, hallway, and kitchen, it was possible not only to integrate these environments, but also to make natural lighting and cross ventilation essential to the apartment.




几个环境的结合,尽管给项目带来了振幅,但也带来了挑战。作为一个建筑解决方案,我们提议在项目的一些引人注目的元素之间取得平衡。在大窗户下面设计了一个大长凳,低矮而线性,满足了低矮图书馆的功能,同时也是一个接待长凳,我们在它旁边有一个绿色的金属制品的大书柜。按照同样的概念,混凝土板条中间的餐具柜的壁龛被设计成与公寓另一端的木板相对应,该木板从社交入口处一直延伸到洗衣房。该项目的物质性被认为是为了传递客户的个性,年轻和易于接受。该建筑原有的镶木地板和窗户都得到了修复。卡图阿巴被选为项目的主要木材,因为它的棕色调和易于与项目的其他材料结合。
The union of several environments, despite bringing amplitude to the project, also presented challenges. As an architectural solution we proposed a balance between some of the project's striking elements. While below the large windows we designed a large bench, low and linear, that fulfills the function of a low library, as well as a reception bench, we have next to it a large bookcase in green metalwork. Following the same concept, the niche for the sideboard in the middle of the concrete slats was designed to be a counterpart to the wood panel at the other end of the apartment, which runs from the social entrance to the laundry room. The materiality of the project was thought to transmit the personality of the clients, young and receptive. The building's original parquet flooring was restored, as were the windows. Catuaba was chosen as the project's main wood for its brown tone and ease of integration with the other project materials.

尽管有一个中性色调作为基础,但该项目有一些元素为项目带来了个性。一些色彩点出现在书柜和家具中,以及混凝土板条、矿物纹理的厨房台面和天然石材花岗岩的厨房和浴室地板。客户的最大愿望是重视巴西的设计,从著名的克拉乌迪娅-莫雷拉-萨勒斯和卡洛斯-莫塔,到年轻的设计师如吉列尔梅-温茨和马塞洛-卡鲁索。
Despite a neutral palette as a base, the project has elements that bring personality to the project. Some points of color are present in the bookcase and furniture, as well as the concrete slats, the kitchen countertop in mineral texture and the floor of the kitchen and bathrooms in natural stone granilite. The client's greatest desire was to value Brazilian design, from renowned names such as Cláudia Moreira Salles and Carlos Motta, to younger designers such as Guilherme Wentz and Marcelo Caruso.














Architects: VOA Arquitetura
Area : 130 m²
Year : 2021
Photographs : Rafael Renzo
Fabricators : Dpot, REKA, Tresuno, Wentz Design
Responsible Architects : Julia Zarouk, Marcella Greghi, Beatriz Barbieri and Maria Pia Laloni
Project Team : Heloisa Godoi
City : Neighborhood Itaim Bibi
Country : Brazil