Isabel Cadroy博士的儿童牙科诊所的室内设计项目从一个新的沟通策略开始,以加强企业的定位。新的场所和品牌的更新代表了一个新阶段的开始,巩固了其作为一家专门为儿童和青少年提供儿童牙科和正畸的诊所的竞争优势。对医生来说,重要的是诊所要友好和热情,但不能陷入幼稚的审美。而且要能够将看牙医时常见的压力和恐惧转变为自信和安宁。维塔利设计了一个企业空间,与诊所的所有公众联系在一起,重新创造了一个积极、熟悉、舒适和平静的环境。
The interior design project for the pediatric dentistry clinic of Dr. Isabel Cadroy begins with a new communication strategy to strengthen the positioning of the business. The new premises and the renewal of the brand represent the beginning of a new stage that consolidates its competitive advantage as a clinic dedicated exclusively to pediatric dentistry and orthodontics for children and adolescents. For the doctor, it was important that the clinic be friendly and welcoming, but without falling into a childish aesthetic. And to be able to transform stress and fear, common in visits to the dentist, into confidence and tranquility. Vitale designs a corporate space that connects with all the public of the clinic and recreates a positive, familiar, comfortable and calm environment.




该项目突出了诊所的企业理念:教育家庭实现良好的口腔健康和提高病人的生活质量的重要性。从这个角度来看,维塔莱产生了一条共同的主线,突出了 "在牙医那里学习 "的理念,将诊所进行的必要的沟通工作概念化,使牙科过程和治疗变得易懂。
The project highlights the corporate philosophy of the clinic: the importance of educating families to achieve good oral health and improve the quality of life of their patients. From this perspective, Vitale generates a common thread that highlights the idea of "learning at the dentist" conceptualizing the necessary communication work carried out by the clinic to make dental processes and treatments understandable.


该创意轴的灵感来自于儿童认知发展的一些学习形式。品牌和企业的室内设计项目是以木片的建筑游戏和初级几何的拼图为起点产生的。诊所用可识别的超比例元素给儿童和成人带来了惊喜,这些元素指的是儿童的学习,如巨大的门廊、木制摩天轮形式的灯,或像拼图一样的镶板。其结果是一个令人回味的空间,与我们心中的孩子联系在一起,并让你感动。
The creative axis is inspired by some of the learning forms of children's cognitive development. The brand and the corporate interior design project are generated taking as a starting point the construction games of wooden pieces and the puzzles of elementary geometries. The clinic surprises-both children and adults with recognizable out-of-scale elements that refer to children's learning such as huge porticoes, lamps in the form of wooden mobiles, or paneling like jigsaw puzzles. The result is an evocative space that connects with the child in us and transports you.


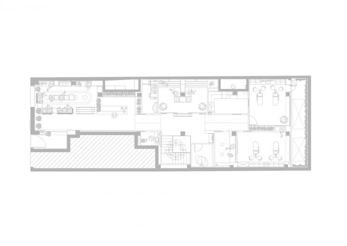
这个地方由两层楼组成(总面积为350平方米),其分布满足了完整的需求方案。所有的病人护理区都位于街道层面,地下室用于人员和业务用途。
The place consists of 2 floors (with a total of 350m2) that are distributed fulfilling a complete program of needs. All patient care areas are located at street level and the basement is used for personnel and operational uses.




候诊区是一个明亮和开放的空间,用多功能和模块化的家具来划定和衔接。在通过一个用木片搭建的3米高的拱门进入后,带有舒适软垫的胶囊状洞口成为中心舞台,吸引人们放松并产生一种保护感。其目的是通过温和的形状和温暖的间接照明为病人提供平静和幸福。
The waiting area is a bright and open space that is delimited and articulated with versatile and modular furniture. After entering through a 3-meter-high arch built with pieces of wood, the capsule-shaped holes with comfortable upholstery take center stage that invites relaxation and generates a feeling of protection. The aim is to provide patients with calm and well-being with gentle shapes and warm indirect lighting.

诊所的接待处用企业颜色的10x10陶瓷灌浆衬托,让人联想到典型的笔记本网格。墙面用泛酸的桦木胶合板保护,有助于传达温暖和平静。在诊所与病人的主要接触点(如接待处和治疗柜),植物和植物元素非常重要,因为它们对情绪有积极的影响。
The reception of the clinic is lined with 10x10 ceramic grouting in the corporate color, reminiscent of the typical grid of notebooks. The walls are protected with pantographed birch plywood panels that help convey warmth and calm. Plants and plant elements are important in the main points of contact of the clinic with patients (such as reception and treatment cabinets) due to their positive effect on mood.


























Architects: Font Arquitectura, Vitale
Area: 350 m²
Year: 2021
Photographs: Santiago Martín, Hilke Sievers
Project Design:Font Arquitectura
Interior Design And Branding:estudio vitale
City:Castellón de la Plana
Country:Spain