这座私人住宅位于生驹山的山腰上,俯瞰着大阪市。这个项目的目标是创造一组多个空间,每个空间都有不同种类的品质。这使得客户可以通过感知周围环境随时间的变化来选择每个场合的空间用途。
Located on the hillside of Mt. Ikoma, this private residence dominates the city of Osaka. The goal of this project was to create a group of multiple spaces, each with different kinds of qualities. This allows the client to choose the uses of the space for each occasion by perceiving the changes of the surrounding environment over the time.



响应地形的形式
场地是沿着延伸到地形上的石墙开发的。多个盒子,按比例满足公共设施和优先级,根据等高线放置。然后,这些盒子被变形,以回应景观、绿化、活动和周围的环境,这决定了建筑的形式。盒子之间的空间成为一个洞穴般的序列,向大阪平原开放。这个设计生成过程调解了自然和人工,最大限度地利用了整个场地,并创造了效用和经验的多样性。
Form responding to the terrain
The site is developed along a stone wall that extended across the terrain.Multiple boxes, scaled to meet the utilities and the priorities were placed according to the contour line. Then these boxes were then deformed to respond to the views, the greenery, the activities, and the surroundings, which determined the form of the building. Spaces between the boxes became a cave-like sequence that opens up to the Osaka plain.This design generation process mediates the natural and the artificial, maximizes the use of the whole site, and creates diversity of utility and experience.

顺应时代的表面
建筑物的表面旨在穿上表情,像生物一样变化。在单色/彩色和人工/自然之间创造了一种条件,因此它放大了每个季节的色调和饱和度的变化。它看起来像一个粗糙的工程作品,同时它也像一块长满苔藓的岩石。它穿上了漆黑的黑暗,同时它也穿上了无数的绿色阴影。
Surface responding to the time
The surface of the building was aimed to wear expressions that changes as with a creature. A condition between monochrome/color and artificial/natural was created, so that it magnifies the changes in hue and saturation each seasons. It looks like a rough engineering work, while it also looks like a rock covered with moss. It wears pitch black darkness, while it also wears countless shades of green.

混凝土框架的纹路和图案、模具以及防水密封剂的颜色和光泽都经过了仔细的研究和选择,这样可以使表面的效果最大化。
Grain and patterns for the concrete framework, mold and the color and gloss of the water repellent sealer were carefully examined and chosen, so that it would maximize the effect on the surface.

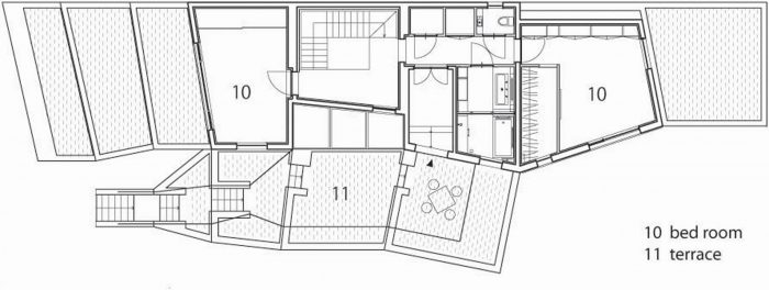
多个盒子,多个空间
环境刺激客户为每个场合选择一个各自合适的空间。这种不均匀的空间感觉是通过盒子之间的间隙实现的。
Multiple boxes, multiple spaces
The environment stimulates the client to select a each suitable space for each occasion. This type of inhomogeneous space perception is realized by the gap between the boxes.

每个盒子都有不同的规划、高度和视野,支持日常生活中的功能性盒子,如卧室、厨房等。这些盒子也被设计成允许客户改变用途。但与此同时,各种空白空间也被创造出来,有待定义。不同的尺寸、视野、灯光、颜色和热环境都在这个空间里连成一片。客户将在空白处的异质性中搜索、查看、停止和放松。
Each box with different plans, height, and views supports everyday life as a functional box such as bedrooms, kitchen, etc. The boxes are also designed to allow the clients to change the usage. But at the same time, various blank spaces are created that is yet to be defined. Difference of the sizes, views, lights, colors, and thermal environments are connectively distributed in this space. The client would search through, view, stop, and relax in the heterogeneity along the blank spaces.

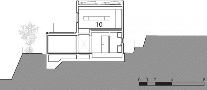
与环境的连接
热环境的设计也是为了与周围的环境相连接。通过为每个盒子提供至少2个窗户,并将盒子之间的缝隙沿着等高线放置,使沿着山地不断吹来的风能够通过。此外,通过将高大的楼梯箱体安排在建筑的中间,即使在无风的状态下,也能产生烟囱效应和风的循环。此外,为了将雨水重新分配给场地内的土壤和植物,建筑的屋顶采用了雨水利用系统。
Connecting with the environment
Thermal environment is also designed to connect to the surroundings. By providing at least 2 windows for each boxes, and by placing the gap between the boxes along the contour line, it allows the wind that blows constantly along the mountain terrain to pass through. Further, by arranging the tall staircase box in the middle of the building, it allows the chimney effect and wind circulation to occur, even in the state of windlessness. Moreover, in order to redistribute the rainwater to the soil and the plants on the site, a rainwater utilization system was adopted on the roof of the building.

在这个场地上有3层热环境(箱内/箱间/箱外),这使得客户可以根据他们的热感知来选择使用。这种环境的梯度也是为了区分室内和室外的物理视角。
In this site there are 3 layers of thermal environment (in/between/outside the boxes), that allows the client to select the usage according to their thermal perception. This gradient in the environment is also attempts to discriminate the physical perspective of indoor with that outdoor.

整个场地被转换为一个异质的空间群,这与一个为特定价值而优化的空间是不同的。相反,这个项目构成了一个高度接受随时间变化的条件和价值的多样性的建筑,提出了一个最佳解决方案。
The entire site is converted to a heterogeneous group of spaces, which differs from a space that is optimized towards a specific set of values. Rather than that, this project composes an architecture that is highly receptive of conditions changing over time and a diversity of values, suggesting an optimum solution.

当不同的形状所创造的同步差异与不同的自然环境中的非同步过渡经验相叠加时,所创造的一组空间捕捉了时间轴和空间感知深度的多样性。
When synchronic differences created by the diverse shapes overlay on diachronic transitory experience in the diverse natural environment, the created set of spaces captures the diversity in the time axis and in the depth of space perception.

通过连接对立的物质--自然/人工,有限/自由,可变/不可变,物质/非物质--的梯度流动,它创造了一个环境,这个环境在某种程度上像自然的一部分,一直存在,同时又像一个现代的人工制品,支持日常生活的功能。
By connecting antithetic matter - natural/artificial, limited/free, mutable/immutable, material/immaterial – in a gradient flow, it creates an environment this is in some way like a part of nature that has been there forever, and at the same time like a modern artifact that supports functions of daily life.

这个地方原本拥有自然和人工制品的美,并充分利用彼此,这也可以说是一个与身体融合的建筑,接受时间和功能的多样性。
This place originally holds the beauty of nature and artifacts making full use of each other, which could also be stated as an architecture that integrats with the body and accepts diversity of time and function.




































Architects: SUGAWARADAISUKE
Area: 220 m²
Year: 2013
Photographs: Takumi Ota
Collaborators:Masayuki Harada
Site Area:567.23 sqm
Design & Development Managers:Daisuke Sugawara, Hiroshi Narahara
City:Higashiosaka
Country:Japan