联排别墅Casa Italia是一个位于普罗维登西亚区的20个住宅群。这相当于圣地亚哥中央环线内的一个综合区域,具有非常好的连接性。从房地产的角度来看,该项目旨在成为城市中提供的公寓的一个有吸引力的替代方案。提供与这些相同的设施,如地下停车场、保安和公共区域等。但可以进入一个私人庭院和屋顶露台。
Townhouse Casa Italia is a 20 homes complex located in the Providencia district. This corresponds to a consolidated area within the central ring of Santiago with very good connectivity. From the real estate point of view, the project seeks to be an attractive alternative to the apartments offered in the city. Offering the same amenities as these, such as underground parking, security, and common areas, among others. But with access to a private courtyard and rooftop terrace.



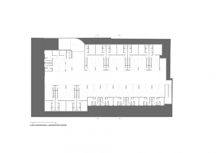
该项目在1,662平方米的土地上解决。单位被安排在东面和西面,加上南面的两个单位,允许车辆坡道到地下室。这创造了一个中央人行通道的空间,可供公寓的居民使用。设计了两种类型的住宅。一种是4.15米宽的托架,另一种是5米宽的托架,都有5个可居住的楼层。地下一层,可以从停车场进入,也有一个多功能区。公共空间和天井在第一层,卧室在第二层和第三层,第四层是屋顶露台。
The project is resolved on a lot of 1,662 sq. mt2. Units are arranged to the east and west, plus two to the south which allows the vehicular ramp to the basement. This creates a space for central pedestrian access to the homes, which can be used by the condominium's inhabitants. Two types of residences were designed. One with 4.15 m wide bays and the other with 5 m wide bays, all with 5 habitable floors. The basement level, which can be accessed from the parking lot, also has a multipurpose area. The common spaces and the patio are on the first level, the bedrooms on the second and third levels, and on the fourth level, the rooftop terrace is located.


为了管理中央集体空间的隐私和视野,我们考虑了两个方面。首先是将卧室面向这个区域,使其能够产生一个体积和阴影的游戏,这允许扩展的意见。第二是通过植被。在第一层,植物容器被设计成朝向厨房的面纱,并放置水和煤气表。在第二层,有垂直的线,预计爬藤植物会在那里发展。
To manage the privacy and views of the central collective space, two aspects were considered. The first was to nook the bedrooms facing this area, making it able to generate a game of volumes and shadows, which allows the extension of the views. The second was through vegetation. On the first level, plant containers were designed to create a veil towards the kitchens and hold the water and gas meters. On the second level, there are vertical threads where creeper plants are expected to develop.

















Architects: FOAA
Area : 3082 m²
Year : 2022
Photographs :Nico Saieh
Manufacturers : Sto, Hunter Douglas, MDA, MK
Architect In Charge : Felipe Ortiz P.
Team : Camila Gutierrez
Engineering : Cristian Meza
Interior Design : Hielo Sur
Contractor : Tecton
Developer : Inmobiliaria Iknow
City : Santiago
Country : Chile