在这个项目的地块上有一座奥斯卡-尼迈耶(Oscar Niemeyer)的房子,考虑到大都市的位置,它很紧凑。通过收购隔壁的房产,由此产生的干预和扩展允许城市景观的转变,它欢迎一个以垂直和水平划定其周围环境为标志的花园。在一个富有表现力的平面上建造了一个新的休闲附属建筑,该平面延伸到游泳池和花园之间,仿佛在盘旋。
Within the project’s lot lays an original Oscar Niemeyer house, it is compact given the metropolitan location. Through the acquisition of the next-door property, the resulting intervention and expansion allowed the transformation of the urban landscape, which welcomed a garden marked by vertical and horizontal delineations of its surroundings. A new leisure annex was constructed over an expressive plane that extends, as if hovering, between the pool and garden.



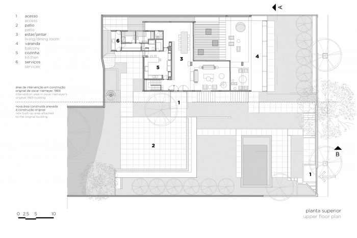
作为三个独立的建筑,该项目通过结构为通道、走道和楼梯的路径完全相互连接,提供了完整的整合。内部的建筑特征被调整,让位于一种新的挪用形式。
Developed as three independent constructions, the project is fully interconnected by pathways structured as passages, walkways, and stairs, providing complete integration. The interior architectural features were adapted, giving way to a new form of appropriation.

现有的主要街区的外墙得到了一个新的元素--大型可旋转的面板。它们的功能通过定制的铁制方形网状结构方案而变得可行。一个长凳被设计用来勾勒出室内/室外空间连续的板块的边界。
The façades of the main existing blocks receive a new element – large pivoting panels. Their functioning is made feasible by the custom structural scheme in an iron square mesh. A long bench is designed to outline the boundaries of slabs where indoor/outdoor spaces are continuous.


圆形的椭圆,作为一个观察间隙和额外的照明,可以看到上面的庭院。垂直路径由一个螺旋形的楼梯标记,通往带有大型滑动玻璃板的塔楼元素。
The oculus, circular in shape, as an observation gap and additional lighting, allows a view into the upper courtyard. The vertical path is marked by a helical staircase to the tower element with large sliding glass panels.



休闲附件是由自然材料组成的。石头、混凝土和限制发生在计划中的差异化和它们的使用与美学的连续性形成对比。
The leisure annex is composed of natural materials. Stone, concrete, and limits happen by the differentiation in the plans and their use in contrast to the aesthetic continuity.












Architects: Siqueira + Azul Arquitetura
Area : 8611 ft²
Year : 2017
Photographs :André Nazareth, Ruy Teixeira
Manufacturers : AutoDesk, Deca, Dimlux, FLOS, Lightworks, Trimble Navigation
Arquiteta Líder : Lia Siqueira
Architect : Felipe Siqueira
Engineering : Stewart Engenharia
Lighting : Maneco Quinderé
Audio And Video : EVOLUSOM
Landscaping : Isabel Duprat Arquitetura Paisagística
Structural Design : Abilitá
Frames : Panoramah!
Waterproofing : Cetimper
City : Río de Janeiro
Country : Brazil