该项目是一个小公寓,室内面积仅36.5平方米,天花板高3.9米。
The project is a small apartment with an indoor area of merely 36.5 square meters with a high ceiling of 3.9 meters.




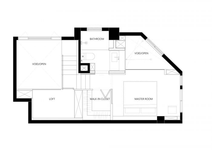
前屋主利用高天花板的布局来容纳一个夹层。虽然这个设计允许更多的可用面积,但整体空间显得黑暗和拥挤,创造了一种不舒服的压迫感。
The former house owner used the high ceiling layout to accommodate a mezzanine. Although the design allowed more usable floor area, the overall space appeared dark and crowded, creating an uncomfortable feeling of oppression.



我们打算引入更多的自然光作为解决方案。进来的光线将使以前狭小逼仄的室内空间显得更轻盈,没有压迫感。因此,我们拆除了窗户旁边的大部分夹层,并让夹层地板后退,以确保有足够的垂直空间,让阳光进入。
We intend to bring in more natural light as a solution. The light coming in will make the previously small and cramped indoor space appear lighter and less oppressive. Therefore, we removed most of the mezzanine next to the windows and had the mezzanine floor recede to ensure enough vertical space to allow sunlight to enter.


室内建筑材料和色彩方案的选择是为了创造一种开放和轻盈的氛围。
Interior building materials and color schemes were selected in a way that would create an atmosphere of openness and lightness.


由堆叠的桦木胶合板和水泥楼梯组成的服务核心作为整个房间的主要垂直视觉;入口处的圆形储藏室作为水平焦点。其金属框架和楼梯扶手的柔和轮廓与手工抹灰的雕塑质感相结合,展示了一种精致、轻松、简约和贞洁的美学。
The service core consisting of stacked birch plywood and cement staircases serves as the main vertical visual of the whole room; the circular storage closet at the entrance serves as the horizontal focal point. The soft and gentle outline of its metallic frame and the staircase handrails combined with the sculptural quality of the hand-troweled plaster demonstrates a delicate, relaxed, minimal, and chaste aesthetic.

























Architects: 2BOOKS design
Area: 37 m²
Year: 2021
Photographs: Millspace&Workpaperpress
Manufacturers: Agape, HAY, Inbani, Ligne Roset, CEA, ICONE
Lead Architects: Jeff Weng
Clients:Issa Lee、Ted Pan
City:Taipei
Country:China