Itsu在里约热内卢的商店是一个有趣的挑战:我们需要开发一个项目和快速工作,以满足商场的要求和期限,但同时,与Itsu代表的年轻和城市品牌对话。
Itsu store in Rio de Janeiro was an interesting challenge: we needed to develop a project and quick work to meet the demands and deadlines of the mall, but at the same time, dialogue with the young and urban brand that Itsu represents.





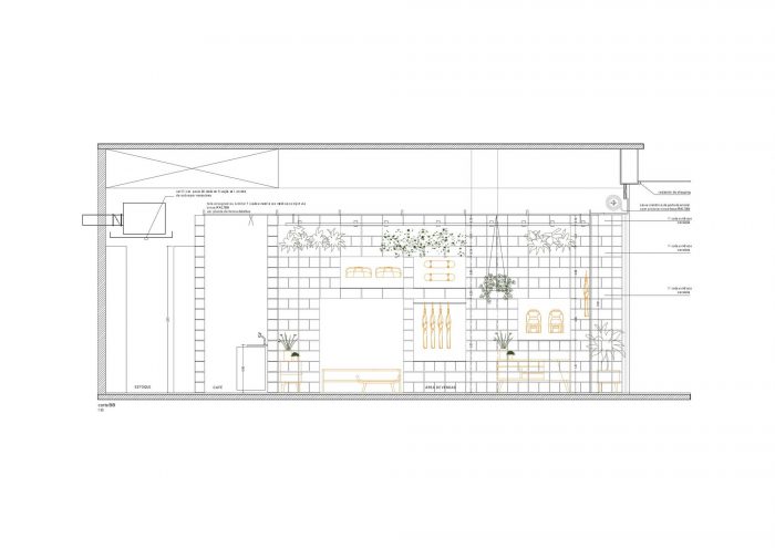
在我们第一次参观商场建筑时,空间的结构很快引起了我们的注意,导致我们设计了一个 "展示墙",使商场的混凝土块结构清晰可见,同时用同样的材料创造出模块化的壁龛。
On our first visit the mall building the structure of space soon caught our attention, leading us to the design of a "showcase wall" that keeps visible the structure of concrete blocks of the mall while creating modular niches with the same material.

灰色的色调与水力砖的浅粉色相结合,突出了Itsu木片,加上植被和照明,为商店创造了一个新鲜和现代的环境。
The gray palette combined with the light pink of the hydraulic tile highlighted the pieces of wood Itsu that, with the vegetation and lighting, creates a fresh and contemporary environment for the store.








Architects: Terra e Tuma Arquitetos Associados
Area: 60 m²
Year: 2018
Photographs: Pedro Kok
Manufacturers: REKA, Bella Luce, LED Profiles, Stella
Lead Architect: Danilo Terra, Pedro Tuma, Fernanda Sakano, Juliana Terra, Bárbara Fernandes
Landscape:Gabriella Ornaghi Arquitetura da Paisagem
Lighting Project:Estúdio Ambar Iluminação
Construction:Quatro Arquitetura
City:Río de Janeiro
Country:Brazil