Jacques Sempé学校综合体由15个班级(幼儿园和小学)、一个休闲中心和官方住房组成,位于 "Bassins à Flots "区的中心,为该区的城市改造做出了贡献。该建筑位于一个拥有旧仓库的地块上,一边是四层(R+3)和五层(R+4)的住房,另一边是传统的住宅区("Echoppes"),该建筑是一个特殊和有特色的城市结构的一部分,带有工业化的过去。
The Jacques Sempé school complex made up of 15 classes (nursery and primary), a leisure center, and official housing, is located in the heart of the “Bassins à Flots” district and contributes to the urban renewal of the district. On a plot hosting former warehouses, framed on one side by four (R+3) and five-story (R+4) housing and on the other by a traditional residential area (“Echoppes”), the building is part of a particular and characteristic urban fabric, marked with an industrial past.



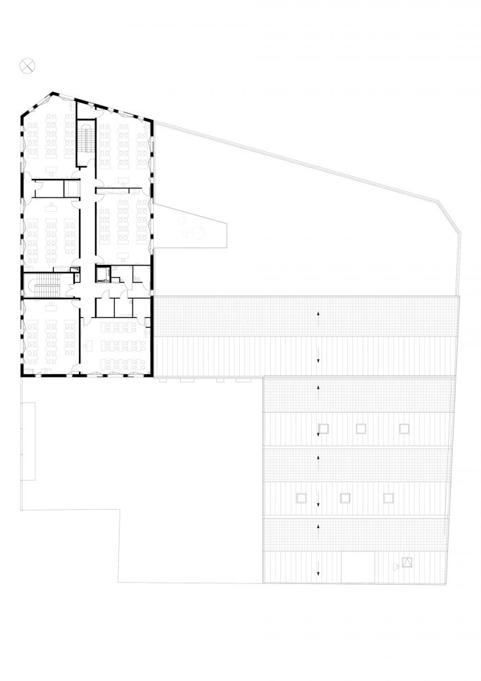
由于地块表面受到限制,因此有可能创建一个分布在3层的2766平方米的建筑。幼儿园由7个班组成,位于底层。小学有8个班,占据了一楼和二楼。这种元素的叠加形成了体量的游戏,并允许空间之间的游戏性对话。这两所学校是独立的,但不断地相互沟通,可以从一个完全透明的、重复的入口门廊进入。
The constrained surface of the plot made it possible to create a building of 2,766 m2 spread over 3 levels. The kindergarten, made up of 7 classes, is on the ground floor. The elementary school has 8 classes and occupies the 1st and 2nd floors. This superposition of elements forms games of volume and allows a playful dialogue between the spaces. The two schools are separate but constantly communicate with each other, accessible from a single and duplicate entrance porch, which is completely transparent.

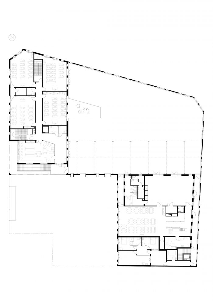
上层院子和下层院子之间的分隔由一堵墙来处理,其中的铰接式玻璃盒让孩子们可以看到彼此。学校集团的建筑,旨在引入光线,在空隙和实体之间进行游戏,使得创造通风、舒适和温暖的空间成为可能。
The separation between the upper courtyard and the lower courtyard is treated by a wall in which are articulated glass boxes allow the children to see each other. The architecture of the school group, designed to bring in light, to play between voids and solids, has made it possible to create airy, comfortable, and warm spaces.


该项目的建筑风格是该地区工业历史的一部分,它采用了由砖块、金属和大棚组成的建筑。建筑物的外墙采用了由预制绝缘混凝土墙的砖墙所启发的矩阵处理。具有双重高度的门廊被网状处理所突出,屋顶采用了飞机库屋顶的模板。1楼的操场有一个宽敞的庭院,上面覆盖着光伏板。
The architectural style of the project is part of the industrial history of the district by appropriating an architecture composed of bricks, metal, and sheds. The facades of the building are treated using a matrix inspired by a brick wall made of prefabricated insulated concrete walls. The porch, with a double height, is highlighted by the mesh treatment and the roof takes up the template of hangar roofs. The playground on the 1st floor has a generous courtyard covered with photovoltaic panels.


该项目被设计成一个生活、分享、学习的场所,并在儿童之间产生联系,它标志着对其背景和规划的具体反映,并将自己作为这个快速变化的地区中心的一个地标。
Designed as a place of life, sharing, learning for all, and generating ties between children, the project marks a specific reflection in its context and programming and places itself as a landmark in the heart of this rapidly changing district.










Architects: BPM Architectes
Area : 4700 m²
Year : 2021
Photographs :11h45
Manufacturers : Jousselin, Dome Solar, Liswood Aqua TT
Structure : VERDI
Acoustic : Pi acoustique
Bordeaux : Delphine Pirrovani
Project Manager : Thomas Durant
Fluid : MATH Ingenierie
City : Bordeaux
Country : France