我们创建的空间是为休闲和休息的时刻而设计的。面向大西洋的景观,卡加拉斯群岛的全景,位置决定了项目的概念。
The spaces we created were designed for leisure and moments of rest. Unveiling the landscape toward the Atlantic Ocean, with a panoramic view of the Cagarras Islands archipelago, the location determined the concept of the project.



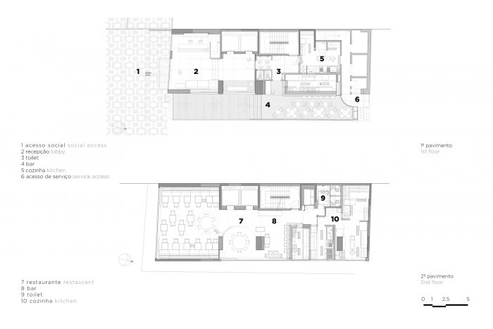
我们寻求加强对外部的开放,朝向最宽阔的视野和海滩元素的延伸。自然和有机材料构成的普遍使用,旨在激发一个温馨的环境。天然Freijó木材的强烈存在,以及石灰华大理石的沙质纹理,有助于拉升建筑并加强以水平和垂直平面为标志的组合设计。这些组件被重复使用,试图激起一种内在的视觉力量。线性元素贯穿始终,见于大型板条面板、桁架式窗台和不均匀的穿插轮廓。
We sought to enhance the openings to the outside, the orientation towards the widest view and the extension of beach elements. The general use of compositions made by natural and organic materials aimed to inspire a welcoming environment. The strong presence of natural Freijó wood, alongside the sandy texture of travertine marble, aide in drawing up the construction and strengthening the design of the ensemble, marked by horizontal and vertical planes. These components were used in repetition, attempting to provoke an inner visual force. Linear elements are featured throughout, seen in large slatted panels, brise-soleils and in uneven and interspersed outlines.

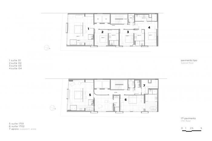
为了通往上层的瞭望台,设计了一个松散的螺旋楼梯,形成了一个带状的胶带,加强了项目中的有机元素。浮动的墙面寻求几何学的简单性,亚麻布窗帘平面作为自然光的过滤器。圆形开口是我们建筑的特点,是最近在我们的项目中引入的一个元素。在这里,靠近无边泳池的位置,它允许对里约热内卢的一个标志性景观,即被称为Dois Irmãos的雄伟山体进行感知欣赏。
For access to the upper floor lookouts, a loose spiral staircase shaping as a ribbon tape was designed, strengthening the organic element within the project. Floating walls seek the simplicity of geometry and linen curtain planes as filters of natural light. The round openings characterizes our architecture, as an element which has been more recently introduced in our projects. Here, positioned closely to the infinity pool, it allows for a perceptual appreciation of an iconic vision of Rio de Janeiro, the imposing mountain complex called Dois Irmãos.




















Architects: Siqueira + Azul Arquitetura
Area : 3800 m²
Year : 2019
Photographs :MCA Estudio, Joao Freire, Divulgação Janeiro Hotel, André Nazareth, Via Tolila
Manufacturers : AutoDesk, Btcino, Deca, Imab, La Fonte, Lumini, StoneBox, Trimble
Arquitetos Líderes : Lia Siqueira, Felipe Siqueira
Engineering : LAFEM
Structure : Manoel Pan Eng & Arq
Lighting : Maneco Quinderé
Audio And Video : Mario Imperiano
Automation : Lutron
Kitchen : Cozinha Carioca
Woodwork : Marcenaria Joia
City : Leblon
Country : Brazil