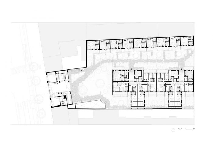
该项目位于街区中心的一块土地上,被一个8层楼高的停车场所占据,包括两个业务,即75个出售住房单位和74个社会住房单位。该项目建议让项目的参与者以及居民参与到一个合理的、有远见的、可持续的城市改造方法的步骤中。社会住房建筑采用木质结构,而自住房建筑则是通过保留和改造现有停车场的混凝土结构而建成。通过各自的特殊性,这两个项目满足了设定的整体挑战。
Located on a plot of land in the heart of the block occupied by an 8 stories car park, the project comprises two operations of 75 housing units for sale and 74 social housing units. The project proposes to engage the project’s actors, as well as the inhabitants, in the steps of a rational, visionary, and sustainable approach to urban transformation. The social housing building is built in a wooden structure, while the building for homeownership is built by preserving and adapting the concrete structure of the existing car park. Through their respective specificities, the two projects meet the overall challenge set.



拆除的初步成本被完全审查。Jaurès住房的新木结构业务提供了一个适应巴黎人居署规格的结构(建筑的厚度、方向、内部组织)。该社会住房项目由主楼、两栋一层的侧楼和一组沿东侧党线的两层楼房组成。除了新住房的质量外,该项目还以改善原有建筑、和谐以及该地新老居民之间的平衡为指导。建筑物的植入,垂直于头部建筑,提供了一个最大的视觉开放空间。
The preliminary costs of demolition are completely reviewed. The new wood-frame operation of the Jaurès housing offers a structure adapted to the specifications of Paris Habitat (thickness of the building, orientations, interior organization). The social housing operation is composed of the main building, two one-story wings, and a set of two-story houses along the eastern party line. Beyond the quality of the new housing, the project is guided by the improvement of the pre-existing building, the harmony, and the balance between the new and old inhabitants of the site. The implantation of the buildings, perpendicular to the head buildings, offers a maximum of visual openings.

没有创建面对面的建筑。新住宅的方向是东西向的。滑动的百叶窗增加了居民的隐私,模糊了横向的视野。两个大的侧面通道使场地得到了真正的绿化。阳光和开放,这些花园里种植了高大的树木。在地块的中心,现在可以感觉到一个大的十字路口。它决定了一种新的城市感知,一种空间的流动性。这两个项目的花园在一个单一的大花园中实现了连续性。
No facing buildings are created. The new dwellings are oriented east-west. Sliding shutters increase the privacy of the inhabitants, blurring the lateral views. Two large side passages allow for a real greening of the site. Sunny and open, these gardens are planted with tall trees. In the heart of the plot, a large crossing is now perceptible. It determines a new urban perception, a fluidity of space. The gardens of the two projects are realized in continuity in a single, large garden.


通过保留现有建筑的痕迹,该项目将该区与它的构成的本质联系起来。这个边缘地区在成为住宅的过程中,是多种活动的场所,形成了其城市结构。完全重新思考,但不是抹杀,街区的中心在连续性中被改造,没有断裂或否认。位于Jaurès一侧的社会住房建筑,使用了老建筑的代码,有一个可见的木质框架来支撑阳台。由于对保护和高环境质量的生态建设的坚定和承诺,该项目将优质、道德和可持续建筑的雄心带到了现场。
By preserving the traces of the existing building, the project links the district to the essence of its constitution. This peripheral district in the process of becoming residential was home to multiple activities that forged its urban structure. Totally rethought, but not erased, the heart of the block is transformed in continuity, without rupture or denial. The social housing building, on the Jaurès side, uses the codes of the old building with a visible wooden frame that supports the balconies. With a strong and committed commitment to preservation and ecological construction of high environmental quality, the project brings to the site the ambition of quality, ethical and sustainable architecture.


所使用的材料,木质包层和锌质屋顶,都是自然和可持续的。类型的多样性产生了一种不同的建筑语言,它构成了一个连贯的城市组合。这种规模和材料的游戏有利于表达一种家庭的、友好的语言。
The materials used, wood cladding and zinc roofing, are natural and sustainable. The typological variety gives rise to a varied architectural language, which composes a coherent urban assembly. This play of scale and materials favors the expression of a domestic, friendly language.

在空间连续性方面,花园被划定在小区的中心。人行道也作为一个缩放路径,在整个地块的建筑物旁边运行。对于小路来说,花园的密度和连续性是分散在种植空间周围的。这种管理方法,从La Vallée的花园发展而来,然后理论化并扩展到所有空间和所有规模,已经出口到法国和国外的城市。
In spatial continuity, the gardens are delimited in the center of the plot. The pedestrian paths also serve as a scaling path and run alongside the buildings throughout the plot. Dense and continuous for the pathway, the garden is scattered around the planted spaces. This management method, developed from the garden of La Vallée, then theorized and extended to all spaces and all scales has been exported to cities in France and abroad.

它突出了绿地管理的创新,以前被当作无菌空间来利用。我们希望在种植完成后,尽可能自发地离开花园。建筑物的厚度为13米,纬度为6米,设计为木质结构,我们更倾向于避免防水的立面或任何其他可能泄漏的工作。避免了防水的露台,而采用连接的阳台。屋顶上覆盖着锌,建筑的悬挑是叠加的。
It highlights an innovation in the management of green spaces, formerly exploited as sterile spaces. We want to leave the garden as spontaneously as possible once the planting is done. With a thickness of 13m and wefts of 6m, the building is designed for timber construction which we prefer to avoid waterproofing upstands or any other work likely to leak as much as possible. Waterproofed terraces are avoided in favor of attached balconies. The roofs are covered with zinc and the building overhangs are superimposed.

树木点缀着宽阔的空间,它们的叶子相当轻盈,因为它们的花期是每年的更新信号。1立方米的新木材意味着在大气中减少一吨二氧化碳。木制建筑有利于使用可再生能源,减少能源消耗,并有利于使用生物来源的材料。
此外,木材及其干燥过程允许大幅减少施工现场的污染。在像这样一个特别密集和难以进入的城市场地中,这是一个真正的资产,而在一个已被占用的场地中,建筑工地的分期付款使这种材料的优势不可避免。木材以一种被动的方式给建筑带来了环境质量,同时给建筑带来了一种温暖和增强的特性。这种突出木材材料的愿望也被发现在住房的核心,我们选择在干燥的房间里留下CLT的痕迹,作为一种宣言。因此,所提出的社会住房是慷慨的,有质量的(阳台,双重曝光等),并提供了一个既生态又现代的形象。
Trees punctuate the wide-open spaces, with rather light foliage chosen for their flowering, the annual signal of renewal. 1 m3 of new wood means one ton less CO2 in the atmosphere. Wooden construction favors the use of renewable energies, reduces energy consumption, and favors the use of bio-sourced materials.
In addition, wood and its dry process allow for a drastic reduction in construction site pollution. This is a real asset in a particularly dense and difficult to access urban site such as this one, and with a construction site whose phasing in an occupied site makes the advantages of this material unavoidable. Wood brings environmental qualities to the building in a passive way while giving it a warm and enhancing identity. This desire to highlight the material wood is also found at the heart of the housing in which we have chosen to leave the CLT visible in the dry rooms, as a manifesto. Thus the social housing proposed is generous, of quality (balconies, double exposure, etc.) and offers an image that is both ecological and modern.












Architects: archi5
Area : 4874 m²
Year : 2021
Photographs :Sergio Grazia
Manufacturers : Minco, elZinc, Sivalbp
Economy : Ateec
Structure Engineer : EVP
Landscaper : Atelier Roberta
Acoustic Engineer : Cap Horn Solutions
Environmental Engineer : Albert & Co
Main Contractor : GTM
City : Paris
Country : France