项目所在地距离永州火车站有5分钟的步行距离,位于住宅区和商业区的交界处。虽然该地块被划分为商业区,但其周围大多是建于20世纪70年代的混凝土砌块的单户住宅。
The project site is located in 5 minutes walking distance from Yeongju train station and at the junction between the residential area and commercial district. Although the site is classified and sit on the commercial district, mostly neighboring with single-family houses built in the 1970s and made of concrete block.




在这种情况下,我们专注于在 "客人-商业 "和 "房子-住宅 "之间的位置。它将给客人一个舒适的氛围,就像住宅区内的房子,同时利用靠近主要商业道路和车站的优势。
In this context, we focus on slotting in between the ‘Guest-Commercial’ & ‘House-Residential’. It will give guests a comfortable atmosphere like a house within residential blocks while taking the advantage of locating near the main commercial road and the station.



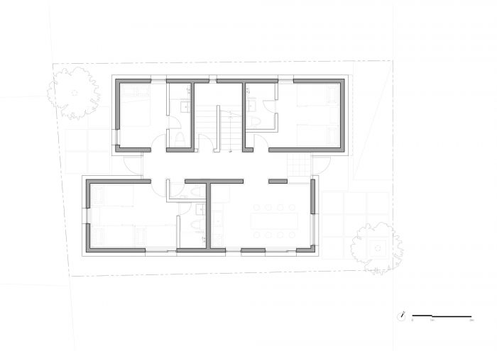
由于所需的最大建筑面积为8个房间,设计的目的是通过一分为二,创造一个槽作为走廊空间,并打破规模,通过滑动两个体量的前院作为一个过滤器从道路上,而后院给邻居一个呼吸空间,并通过槽的内部空间,为客人提供一个良好的视野,良好的日光穿过房间和交叉通风。
Due to the required maximum floor area with 8 rooms, design aims to articulate the mass by splitting into two for creating a slot as a corridor space & breaking down the scale, by sliding two volumes for front yard working as a filter from the road while backyard giving a breathing space with neighbors, and by slotting internal space for providing guests with a good view to outside, good daylight across the rooms and cross ventilation.

带凹陷阳台的坡屋顶体量向道路凸出,使客人能够识别。JEJE宾馆并没有被淹没,而是以一种简单和平静的方式展示自己,它与现有的环境相融合。
Pitched Roof volume with a recessed balcony is projected out towards the road to be recognizable for guests. JEJE guesthouse is not overwhelmed, but in a way that reveals itself with a simple and calm look, it is slotting in the existing environment.















Architects: skimA
Area : 186 m²
Year : 2017
Photographs :Hyosook Chin
Manufacturers : DuraVent, KCC, TERRACO
Lead Architects : Sejin Kim
Contractor : Jiho Yoo, MAGOPUS
Design Team : Yunseon Cho
City : Yeongju-si
Country : South Korea