首先,我们建造了房子--济州岛的房子。之后,我们被要求设计一个茶馆。什么是茶馆?是我们的第一个问题。作为一名建筑师,面对新的项目和新的挑战,这是一种特权。为了解决一些问题,研究和学习。
First, we built the House – the Jeju House. Afterward, we were asked to design a Tea House. What Is a Tea House? Was our first question. It’s such a privilege to be an architect, to be confronted with new projects, new challenges. To solve something, study and learn.


作为房子的缓冲区,客户购买了西边相邻的土地,以便扩大花园,并在不影响家庭和房子隐私的情况下建造一个可以接待客人的地方。扩建已经建成的、大家都满意的东西,是一项需要思考的任务。
As a buffer to the House, the clients had purchased the adjacent site to the West, so as to expand the gardens and also to build somewhere that guests could be received without disturbing the privacy of the Family and the House. To extend something which is already built and which everyone is happy with is a task that requires some reflection.



这座房子已经有了一个 "附属建筑"--看守人的房子,它与整体的体积、材料和功能完美结合。这个新的 "附属建筑 "不能共享附属建筑的简陋特征。它也不可能是什么
劣质的、位于花园尽头的、不那么好的、典型的、缺乏美感的东西。客户的要求,就像我们自己的要求,总是很高。
The House already had an “annex”- the caretaker’s house - which is perfectly integrated within the overall volumes, materials, and functionality. This new “annex” couldn’t share the humble character of an annex. Nor, could it be something
inferior, at the end of the garden, less well built and, typically, lacking in aesthetic concern. The Client’s demands, like our own, are always high.


我们会使用同样的材料吗?同样的体积游戏?这似乎是个问题,因为客户的要求和意图是不同的。我们一如既往地对传统建筑感到好奇,在这种情况下,对韩国的传统建筑感到好奇,我们收集信息并参观了最好的例子,特别是济州岛上的本地建筑。这些都是大师级的作品。特别是那些用木头做的。
Would we use the same materials? The same volumetric games? This seemed problematic, given the difference in the brief and in the Client’s intentions. Being curious, as ever, about traditional architecture, in this case, Korean traditional architecture, we gathered information and visited the best examples, especially the local ones on the island of Jeju. These are masterful works. Especially the ones in timber.


在我们看来,这些材料应该是:石头、木材和铜。我们准备了第一份提案,以便核实简报,更好地了解要求和期望。地点需要在场地的最高点,在那里人们可以惊叹于大海和地平线。其余的地方将是一个景观花园。由于建筑位于新场地的中心,我们必须给它提供能够快速和容易被感知的连接。
It appeared to us that the materials should be: stone, timber, and copper. We prepared the first proposal, so as to verify the brief and get a better understanding of the requirements and the expectations. The location needed to be at the highest point on the site, from where one could marvel at the sea and the horizon. The rest would be a landscaped garden. With the building located at the center of the new site, we had to give it connections that could be quickly and easily perceived.



简介很简单。一个慷慨的生活空间,在那里,人们可以有仪式感地准备、供应和品尝珍贵的茶,但也可以用同样的仪式感,打开一瓶酒,品尝美味的葡萄酒。因此,我们开始意识到,茶馆的分类比它的标题更广泛。一个用于休息的卧室,但也是一个游客可以在此过夜的地方,有各种舒适性。一个浴室,对于典型的韩国人来说,可能是完整的或部分的。
The brief is quite simple. A generous living space, where one could, ceremonially, prepare, serve and taste a precious tea, but also, and with equal ceremony, open a bottle and taste an excellent wine. So, we came to realize that the classification Tea House is somewhat broader than its title. A bedroom for rest, but also somewhere a visitor could stay overnight with every comfort. A bathroom, for the typical Korean use, might be full or partial.


隔断是滑动的屏幕,模仿和解释美丽的传统例子,使卧室可以完全或部分封闭,或完全向风景开放。浴室也是如此。创造一个几乎是无限可能的游戏,让空间在不同的活动发生时转变和改变。在外面,有一个宽敞的有盖阳台,面向南方,还有一个大露台,面向东方。
The partitions are sliding screens that, copying and interpreting the beautiful traditional examples, allow the bedroom to be either totally or partially enclosed, or to open completely to the landscape. And it’s the same in the bathroom. Creating a game of, almost, infinite possibilities, allowing spaces to transform and to change when different activities are happening. Outside, there is a generous covered veranda facing South and a large terrace, facing East.


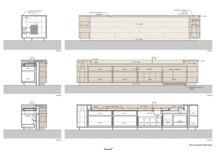
我们决定,茶馆将用石头与地面相接;几乎是黑色的济州岛火山石,其所有的结构、隔断和固定家具都是木材。铜板构成屋顶。但这是如何建造的呢?在韩国,关于如何用木材建造的知识已经丢失。因此,我们提出了一个计划,在葡萄牙的一个车间进行施工,然后将所有的预制构件运出,在原地组装起来。我们的建议立即被接受,我们有了一个新的挑战。
It was decided that the Tea House would meet the ground in stone; the almost black, volcanic stone of Jeju, and that all its structure, partitions, and fixed furniture would be timber. Copper sheeting formed the roof cover. But how was this to be built? In Korea, the knowledge of how to build in timber has been lost. So, we proposed a scheme to get the construction work carried out in a workshop in Portugal and then to ship out all the pre-fabricated components to be assembled in situ. Our proposition was immediately accepted and we had a new challenge.


我们选择的木材是Afizélia或Dossié - afzélia pachyloba。Álvaro Siza 1958-1963年建造的Casa de Chá da Boa Nova的经验验证了它的品质,即使是在离海这么近的地方和恶劣的天气条件下。我们已经习惯了这样一个事实,即在韩国设计和建造是容易的,而且是令人满意的,因为在韩国,做好事情的意愿是根深蒂固的。现在有可能在我的办公室和家里附近生产木材。
The timber we chose was Afizélia, or Dossié – afzélia pachyloba. Experience with the Casa de Chá da Boa Nova – Álvaro Siza 1958-1963 – validated its qualities, even in a location so close to the sea and with harsh weather conditions. We had gotten used to the fact that designing and building in Korea is easy, and moreover satisfying, as in Korea the will to do things well is deep-rooted. Now it had become possible to have the timber work manufactured near my office and my home.



锯木,测试,准备,组装,然后拆卸,用两个集装箱运到韩国。之后,我们不得不派四个葡萄牙木匠过来进行重新组装。虽然语言似乎是一个障碍,但事实上,建筑工程、混凝土和服务设施的进行没有问题;项目文件都得到了正确的解释和遵循。当木材到达时,就是按照预制计划的同步模式进行安装,在这里,语言是一致的,大家都能理解。
Sawing, testing, preparation, assembly, then disassembly and, in two containers, shipping to Korea. After that, we had to send over four Portuguese carpenters for the reassembly. Although the language may seem to be an obstacle, in fact, the construction works, concrete, and services installations proceeded without problems; the project documents were all correctly interpreted and followed. When the timber arrived, it was a case of erecting it in the synchronized pattern of the pre-fabrication plan, where the language is consensual and understood by everyone.



一切都在那里,但没有什么是可见的。就像我们的项目和建筑中的惯例一样。所有绝对舒适所需的服务都包括在内,但它们并不占据优势。它们存在,但却不为人所知,因为它们是不重要的,不雅观的。
Everything is there but nothing is visible. As is usual in our Projects and Buildings. All the services required for absolute comfort were included, but they don’t take over. They exist but are out of view because they are nonessential, unsightly.


与房子的连接,步行,也需要一些自然的东西,仿佛它们一直存在。在上层有一个服务连接,还有一条路线,从入口处到房子,可以在花园里散步,或者进入茶馆。一扇 "门 "使房子和茶馆之间有了联系。这个花园是由Seo-Arn STL Total Landscape设计的,他也是设计房子花园的景观设计师,是那些几乎只在韩国发生的惊喜之一,因为它是许多世纪以来积累的经验的结果。它发生在 "眨眼之间",就像它一直在那里一样。
The connections to the House, on foot, also needed to be something natural, as if they had always existed. There’s a service connection at the upper level and another route which, from the entry point to the House, allows for a stroll in the garden, or, for access to the Tea House. A “door” makes the connection between the House and the Tea House. The garden, designed by Seo-Ahn STL Total Landscape, the same landscape architect who designed the garden of the House, is one of those surprises that almost only happens in Korea because it is the result of experience accumulated over many centuries. It happened in a “blink of an eye” and it is as if it was always there.

以这种方式设计和建造是任何建筑师的梦想。至少对那些有梦想的人来说是这样。现实通常是非常不同的。现在我知道什么是茶馆了,也知道你可能在那里喝什么了。
Designing and building in this way is the dream of any architect. At least for the ones who dream. Reality is, usually, very different. Now I know what a Tea House is and what you might drink there.

















Architects: Carlos Castanheira, Jong Kyu Kim, Álvaro Siza Vieira
Area : 260 m²
Year : 2018
Photographs :Park Wansoon
Structural Engineering : HDP - Construction And Engineering Projects
Mechanical Installations : M.A.R.U. Metropolitan Architecture Research Unit
Construction : Henriques e Rodrigues, J.P. Leitão, Pluggo – Wood for Life, Auro – John Klaus
Architects : Álvaro Siza, Carlos Castanheira, Jong Kyu Kim
Practice In Portugal : CC&CB Architects
Project Coordinator : Diana Vasconcelos
Project Team : Adele Pinna, João Figueiredo, Francesca Tiri, Nuno Campos
Practice In Korea : M.A.R.U. Metropolitan Architecture Research Unit
Project Coordination : Jong Kyu Kim
Collaborators : Min Kim
Structure : Paulo Fidalgo
Metalwork : NORFER
City : Jeju
Country : South Korea