这是一个位于东京曹府市一个安静住宅区的项目。客户被这个环境所吸引,是因为场地旁边的绿化带中种植的树木。客户的要求之一是创造一个灵感来自于 "红土 "和 "红褐色 "的住宅,与周围的绿色形成对比。此外,客户想把房子不仅作为一个居住的地方,而且作为一个对社区开放的类似画廊的空间。该房子是客户的一个新的中心,他是一个商品采购员和艺术设计总监,被设计为用于各种公共和私人活动。
A project located in a quiet residential area in Chofu City, Tokyo. The client was attracted to this environment due to the trees planted in a green belt next to the site. One of the requests from the client was to create a residence inspired by "red soil" and "reddish brown," which contrasted with the surrounding green. Furthermore, the client wanted to use the house not only as a place to live but also as a gallery-like space that is open to the community. The house is a new hub for the client, who is a merchandise buyer and a director for design in art, and was designed to be used for various public and private activities.



该建筑最显著的特点是外墙使用的 "Bengara "的深红色。Bengara是一种高度耐候的颜料,长期以来一直被用作日本房屋的涂料。我们没有使用与周围地区相同的颜色来融入环境,而是打算使用一种对比强烈的颜色来加强这个地方的建筑的意义。然后,红褐色的外墙与银色的屋顶和镀锌钢板制成的屋檐相结合。日本的热带植物被种植在外部排水沟中,以进一步加强与周围绿色植物的对比。
The most distinctive feature of the building is the deep red color of the "bengara" used for the exterior walls. Bengara is a highly weather-resistant pigment that has long been used as a paint for Japanese houses. Rather than using the same color as the surrounding area to blend in with the environment, we intended to use a contrasting color to strengthen the significance of the architecture in this location. The reddish-brown exterior walls were then combined with a silver roof and eaves made of galvalume steel sheet. Japanese tropical plants were planted in the exterior gutters to further strengthen the contrast with the surrounding greenery.



在绿色植物的衬托下,入口处与露台融为一体,并连续通向一个带有中庭的大土层。从入口到土层的区域是用混合了水洗石的淡红色石头装饰的。这层楼连接着房子的内部和外部,在各种情况下模糊了边界。
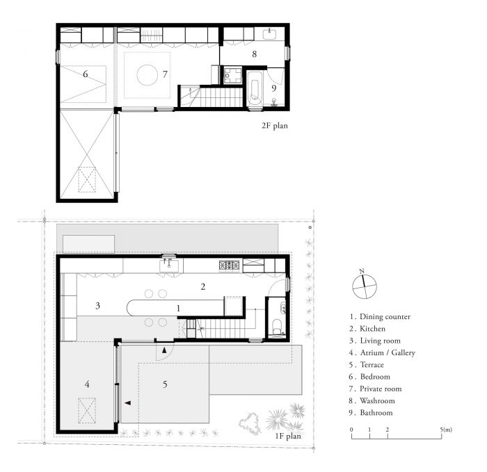
With the greenery at its side, the approach integrates with the terrace and leads continuously to a large earth floor with an atrium. The area from the entrance to the earth floor is finished with a reddish stone mixed with washed-out stone. This floor connects both the inside and the outside of the house, blurring the boundaries in a variety of situations.

例如,底层通常作为起居室和餐厅,但在活动期间却成为一个半公开的展览空间。餐台比平时设置得更高,灵活地改变了它的角色,从展览的展示台变成了与厨房配合的站立用餐的服务台。此外,柜台和沙发等家具被放置在土质地板和木质地板的交界处,这样人们不用脱鞋就可以使用它们。这座房子的进一步特点是,它的设计可以支持多种情况。
The ground floor, for example, normally functions as a living and dining room but becomes a semi-public exhibition space during events. The dining counter, which is set higher than usual, flexibly changes its role from being a display stand for exhibitions to a serving counter for standing meals in conjunction with the kitchen. In addition, furniture such as counters and sofas were placed at the boundary between the earthen floor and the wooden flooring, so that people can use them without taking off their shoes. The house is further characterized by the fact that it was designed to support a wide variety of situations.



土炕的天花板是拱形的,是最能体现 "木库里屋顶 “的宽弧表达的地方。二楼居民的私人卧室又与这个中庭相连,使他们的视野也能在整个房子里流通,通风。虽然一楼的椅子是为了配合柜台而设计的,但最初是为二楼创造了一张低矮的桌子,因为那里需要一种平静的感觉。这与一楼形成了对比,强调了地面座位的性质。通过结合客户的想法来规划周围的环境、建筑、室内和家具,我们试图坚定地确定房子的存在方式。
The ceiling of the earthen floor, which is a vaulted ceiling, is the place where the broad arc expression of the ”mukuri roof” is most apparent. The residents' private bedrooms on the second floor are again connected to this atrium, allowing their vision and also ventilation to circulate throughout the house. While the chairs on the first floor were designed to match the counter, a low table was originally created for the second floor, where a sense of calm was demanded. This contrasts with the first floor by emphasizing the nature of floor seating. By planning the surrounding environment, architecture, interior, and furniture in conjunction with the client's thoughts, we attempted to firmly define the house's way of being.




















Architects: CASE-REAL
Area : 82 m²
Year : 2022
Photographs :Daisuke Shima
Construction : Yoshida Building Firm
Lighting Plan : BRANCH lighting design, Tatsuki Nakamura
Client : method Inc., Yu Yamada
Design Team : Koichi Futatsumata, Kana Yamamoto, Yasushi Arikawa
Planting Plan : Yuko Takaura
Sign Design : BOOTLEG, Fumikazu Ohara
Country : Japan