我经常在JINS的商店里寻找Konstantin Grcic设计的眼镜,当我走进任何一家商店的时候,我就能知道他们是否有这种眼镜。
I routinely look for Konstantin Grcic-designed eyeglasses at JINS stores, and the moment I walk into any of the stores, I can tell if they have them or not.






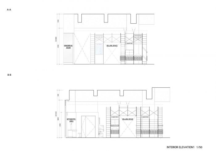
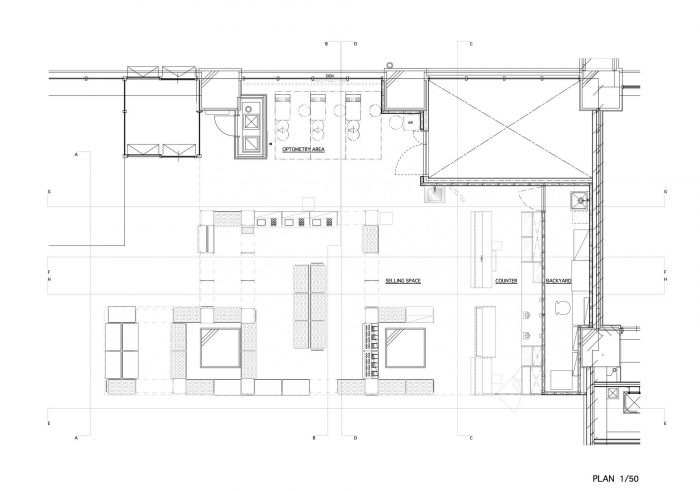
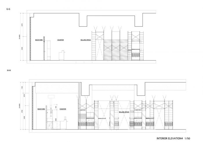
JINS的产品布局非常容易理解,对于一家眼镜店来说,这很合理。但是这一次,由于这家JINS店位于主要是MUJI店的楼层,我们的想法是要做一个顾客可以自由流通的店面,享受寻找东西的乐趣,就像他们通常在生活方式店一样。在新店中,我们使用了MUJI的标准单元货架。
The product layout at JINS is so easy to understand, and it makes sense for an eyewear store. But this time, since this JINS store is located on a floor mainly for a Muji store, our idea was to make a store where customers can circulate freely and enjoy looking for something, just like they usually do in a lifestyle store. In the new store, we used standard unit shelves from Muji.

通过随机摆放,并创造出包括展示架、柜子、镜子、标志和照明在内的原创物品,以随机的方式连接到货架上,我们能够创造一个人们可以享受寻找不可预测的商店。在我们设计的Loft的JINS店中,我们用彩色海绵来展示眼镜。
By placing them randomly, and creating original items including displays, cabinets, mirrors, signs, and lighting that are attached to the shelves in a random fashion, we were able to create a store where people can enjoy looking for the unpredictable. In the JINS store at Loft that we designed, we used colorful sponges to display glasses.


这一次,我们使用了由可回收的环保材料制成的成型纸浆托盘来展示眼镜。它们带出了材料本身的颜色,并与MUJI的美学理念相一致。我们选择这种材料是因为它具有漂亮的朴素质感,并能提供足够的减震效果,即使是鸡蛋也不会破裂。
This time, we used molded pulp trays made of a recyclable and environmentally friendly material to display glasses. They bring out the color of the material itself and are in line with Muji's aesthetics. We chose the material because it has a beautifully plain texture, and provides enough shock absorption to keep even eggs from cracking.


















Architects: Jo Nagasaka, Schemata Architects
Area: 99 m²
Year: 2021
Photographs: Tomoyuki Kusunose
Lighting Engineer: DAIKO ELECTRIC CO.LTD.
Project Team:Zhiyan Wang, Kotaro Shimada
Construction:SPACE CO., LTD. (Interior); MURAYAMA INC.(pulp tray, basket)
Collaborators:Ryohin Keikaku Co.,Ltd. (steel unit shelf);
City:Hakodate
Country:Japan