该遗址位于无等山国家公园和光州市区的交界处。你可以通过一条双车道的道路接近该遗址,它将自然和城市连接在一起,其街景是高大的银杏树、老房子和商业建筑的混合。由于在很久以前的道路维修过程中,部分土地被纳入了道路,因此该场地呈现出三角形。此外,由于按照拓宽标准对背面道路的土地面积进行了例外处理,并且根据景观区的要求将正面道路退缩了两米,因此可用面积基本减少到62.73平方米。三角形地块的两面朝向道路,第三面朝向南方,被邻近的建筑所覆盖。
The site is located on the boundary of Mudeungsan National Park and Gwangju downtown. You can approach the site via a two-lane road that connects nature and the city together and its streetscape is a mixture of tall ginkgo trees, old houses, and commercial buildings. Since some portion of the land has been incorporated into the road during road maintenance long ago, the site has a triangular shape. In addition, the usable area has been largely reduced to 62.73m2 due to the exception of land area in accordance with widening standards for the backside road and retreat of the frontal road by two meters according to the landscape districts. Two sides of the triangular site face the road, while the third face in the south and are covered by a neighboring building.



这对夫妇经营一家餐馆,他们要求增加一些功能,以便在工作的同时分享他们的日常生活,并在家里享受自己的爱好。由于房子离周围环境太近,没有任何缓冲区,这对夫妇还想在他们的房子和外部场所之间做一个明确的区分。
The couple runs a restaurant business, and they requested some additional features for sharing their daily life while working and enjoying their own hobbies at home at the same time. Since the house is located too close to the surroundings without any buffer area, the couple also wanted to make a clear distinction between their house and external places.


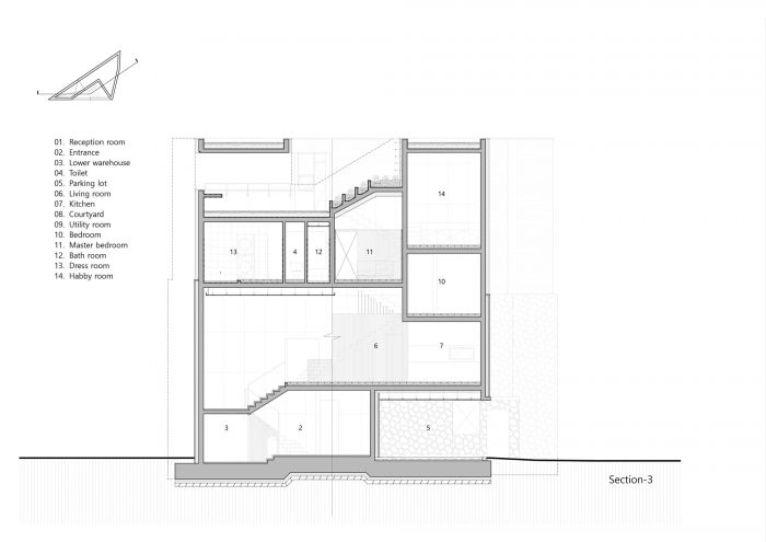
因此,房子大体上被分为三个功能层。第一层是用餐和厨房空间,用于与朋友和食物共度时光。第二至第四层是为完整的居住功能设计的。最后,屋顶空间被设计成一个与周围自然环境积极互动的地方。
外墙被看作是内部和外部的第一道界限,它的设计是通过堆积坚实的天然石块(课状砖石)来给居民带来精神上的稳定,并象征着将自然作为街景的一部分引入。
So, the house is largely divided into three functional levels. The first floor is a dining and kitchen space for spending time with friends and food. The second to fourth floors are designed for complete residence functions. Lastly, the rooftop space is designed to be a place for actively interacting with the surrounding natural environment.
The exterior wall is seen as the first boundary between inside and outside, and it is designed by piling up solid natural stones (coursed masonry) to bring mental stability to the residents and to symbolize an introduction to nature as a part of the streetscape.


内部空间有裸露的混凝土饰面和天然木质材料制成的内置家具,以保持从自然外观美到内部的一致基调。
松散的边界—内部空间使用跳楼来增加高度变化,保证客厅空间的开放感,并减少楼层之间的移动负担。楼梯不分彼此,与各楼层的功能空间不相冲突,提升空间利用率和移动效率。
The inner space has an exposed concrete finish and built-in furniture made of natural wooden materials in order to maintain a consistent tone from natural exterior beauty to the interior.
Loose Boundary - The interior space uses skip floors to add height variation, secure a sense of openness in the living room space, and reduce the burden of moving between floors. The stairs are not divided into separate places, and they do not conflict with the functional spaces of each floor to boost space utilization and movement efficiency.


在这个房子里,除了卧室和卫生间外,其他空间的设计都尽可能地松散。对于儿童房与楼梯、走廊与洗漱洗衣空间、兴趣室与楼梯、客厅与花园之间的边界,要么采用透明玻璃开口,要么根本没有任何边界。这是为了寻求一种松散的边界,有效地利用狭窄的空间,使空间可以根据使用目的和形式进行分割或不分割。每个房间的家具都是首先设计好的,以创造一种空间上的统一感。
In this house, the spaces are designed to be as loose as possible, except for the bedroom and bathroom. For the boundaries between the children’s room and stairs, hallway and washing and laundry space, hobby room and stairs, and living room and garden, they either have transparent glass openings or don’t have any boundaries at all. This is to seek a loose boundary and utilize the narrow space efficiently so that the space can be either divided or not depending on the purpose and form of use. The furniture in each room has been designed in the first place to create a sense of spatial unity.


灵活干预--由于空间有限,在设计规划中,以楼梯为中心的空间划分和合并是一个重要的前提条件。为了划分和合并空间,房子被分为一楼和二楼,二楼和三楼,以及三楼以上,楼梯为每个空间改变了功能、形状和方向。一楼有一个透明的玻璃栏杆,以集中展示内部材料。二楼和三楼有框架结构,也作为浴室的边界墙,定制的沙发和底部的存储空间。三楼及以上有一个有节奏的字符串设计,以便以一种新的方式来表达开放的墙壁。这些设计显示了楼梯是如何根据每个空间的特点进行不同设计的。
Flexible Intervention - As the space was limited, dividing, and merging the spaces centered on the stairs was a significant precondition in the design planning. To divide and merge the spaces, the house was divided into the first floor and second floor, second floor and third floor, and third floor and above, the stairs changed their function, shape, and direction for each space. The first floor has a transparent glass railing to focus on the interior materials. The second floor and third floor have framed structure that also functions as boundary walls of the bathroom, custom-made sofas, and bottom storage spaces. The third floor and above have a rhythmic string design in order to express open walls in a new way. These designs show how the stairs were designed differently based on the characteristics of each space.

房子是风景的一部分 - 外墙决定了房子的第一印象。它的设计是通过小心翼翼地堆积由原材料加工而成的不规则形状的块状砖石,尽可能地减少。两米长的人行空间是一个接触石墙的开放区域,它有一个混凝土抛光处理,即使没有墙,也能让行人认识到道路和房子之间的界限,也能让司机认识到房子是置于城市和自然界限之间的标志。外墙的开口有不同的大小和位置,它们被故意设计得很无序,以抵消坚硬和粗糙的石墙带来的重量感。屋顶的天棚结构和窗户在顶部变得更宽,以反映与远处的无定山的视觉关系。
House as A Part of Scenery - The exterior wall determines the first impression of the house. It is designed by carefully piling up irregularly-shaped coursed masonry made by processing raw materials as least as possible. The two-meter pedestrian space is an open area that touches the stone wall, and it has a concrete polishing finish to make the pedestrians recognize the boundary between the road and the house even without the wall and make the drivers recognize the house as the sign placed between the boundary of the city and nature. The exterior wall openings have different sizes and locations, and they are intentionally designed disorderly in order to offset the sense of weight from hard and coarse stone walls. The rooftop canopy structure and windows get wider towards the top in order to reflect the visual relationship with the Mudeungsan Mountain in distance.









Architects: PLAN Architects office
Area: 178 m²
Year: 2022
Photographs:Joon Hwan, Yoon
Structural Engineers: SDM Partners
Mechanical Engineers: SAETEO.ENG
Landscape: 造景商會
Architects: Lim Tae Hyung, Jo Hanee
Telecommunication Equipment: SAETEO.ENG
City: Gwangju
Country: South Korea