这座独立的砖砌工人小屋最初是1920年悉尼内西区Lilyfield的Durrell's Estate的一部分,当时只用了3英镑的押金就买下了。此后,这所房子一直是疏忽的受害者,并在其生命过程中进行了一系列有问题的改进。它被剥去了华丽的细节,并增加了一个石棉斜屋顶的填充物,包围并侵蚀了原始平房的逻辑和简单的规划。
Originally part of the 1920’s Durrell’s Estate in Lilyfield, Sydney’s Inner West, the original freestanding brick workers cottage was purchased with a mere 3£ deposit. The house had since been victim to neglect and a series of questionable improvements over the course of its life. It had been stripped of its ornate detail and added to with an asbestos lean-too infill, enclosing and eroding the logic and simplicity of the original cottage’s plan.





新的工程希望 "撤销 "这些有问题的改进,敏感地缝合和庆祝原有的遗产结构。新旧之间的关系通过一个新旧无缝结合的门框得到了承认。原有的墙壁是光滑的石膏,在檐口和天花板上有高于画栏基准的细节。新作品参考了这一点,但又将其翻转。墙壁在基准线之前有一个微妙的纹理,上面光滑的 "帽子 "帮助空间感觉比它们更高。
The new work aspires to ‘undo’ a number of these questionable improvements, sensitively stitching into and celebrating the original heritage fabric. The relationship between old and new is acknowledged through a doorframe that seamlessly integrates both old and new. Original walls are smooth plaster with detail above the picture rail datum, in the cornices and ceilings. The new work references this but flips it. The walls have a subtle texture up to a datum and the smooth ‘hat’ above helps the spaces feel taller than they are.

传统的亮点窗户细节在旧的区域被保留下来,在新的区域则通过将门和窗分开,同时将光线引入相邻的空间。在一个例子中,原来窗户上的百年琥珀色彩色玻璃在拆除时被损坏。我们从当地的文物供应商那里找到了匹配的材料,幸运的是,他的储备中有一些匹配的材料。
Traditional highlight window details have been retained in the old areas and adapted in the new by separating the door and window whilst simultaneously drawing light into adjoining spaces. In one instance, century-old amber stained glass from an original window was damaged upon removal. A material match was sourced from a local heritage supplier who luckily had some matching in his reserves.

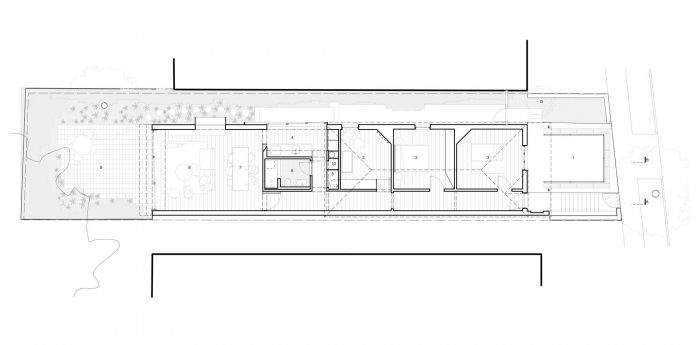
这座房子通过采用其原来简单的装载走廊计划,尊重了房子的原始结构。一些精心布置的视线利用了花园的景观,并捕捉自然光。新区的过渡反映了规划图,但确保每个门槛都很深很低,这样,空间之间的过渡是一种实质性的、有意识的体验。
The house respects the original structure of the house by adopting its original simple loaded corridor plan. A number of carefully placed sightlines take advantage of views out to the garden and capture natural light. Transitions in new zones reflect the planning diagram but make sure each threshold is deep and low so that transitioning between spaces is a substantial, conscious experience.

房子很小,只有108平方米,却巧妙地容纳了3间卧室、一个浴室、洗衣房、一个宽敞的厨房、客厅和用餐区。花园是建立慷慨之感的根本。这座房子通过积极地与花园和其他地方联系,利用了周围的景观。内部空间具有慷慨性,并通过积极借用外部景观而获益。花园成为中心 "房间",所有其他空间都围绕着它来定位和组织。
The house is small and at only 108m2 has cleverly accommodated 3 bedrooms, a bathroom, laundry, a generous kitchen, living, and dining area. The garden was fundamental to establishing a sense of generosity. The house takes advantage of the surrounding landscape by actively connecting with the garden and beyond. The interior spaces have generosity and benefit through actively borrowing external views. The Garden becomes the central ‘room’ which all other spaces orient and organise around.

松散的简介是以最符合成本效益的方式安装一个额外的卧室,并将空间重新定位到花园。这促使我们决定保留原来的倾斜屋顶和许多墙壁,保留这些元素......这也决定了原来的占地面积仍然是帮助房子迅速获得CDC的批准,目的是在客户的宝贝女儿到来之前完成。它对邻近的遗产环境的影响也是最小的。
The loose brief was to fit an extra bedroom and re-orient the spaces to the garden in the most cost-effective manner possible. This drove the decision to retain the original lean-too roof and many walls, Retaining these elements … It also dictated the original footprint remains as is helping the house gain approval quickly with CDC with the goal of finishing before the clients' baby daughter arrived. It also had minimal impact on the neighbouring heritage context.

这些成本限制促使客户在朋友的帮助下完成自己的景观设计、外部油漆和渲染。显著的结构保留有助于减少对环境的影响,同时删除了所有的燃气设备和装置,在屋顶上安装了光伏和太阳能热水系统,并在未来提供电池,优先使用当地材料和工匠。
These cost restrictions drove the client to complete their own landscaping, external painting, and rendering with the help of friends. The significant fabric retention helped reduce the environmental impact in combination with the deletion of all gas appliances and fittings, Photovoltaic & solar hot water systems on the roof with future battery provision, and prioritising local materials and craftspeople.
















Architects: Bokey Grant
Area : 108 m²
Year : 2019
Photographs :Clinton Weaver
Manufacturers : Kaldewei, Vectorworks, Artek, Brodware, Fisher & Paykel, Vola, Durvait
Engineering : SDA Structures
Design Team : Bokey Grant Architects
Builders : Andrew Connell, Heath Millard
City : Sydney
Country : Australia