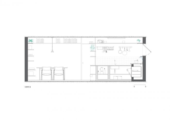
为了腾出尽可能大的面积让人自由无阻地居住,项目的基本原则包括利用公寓的边界作为所有基本生活活动的支持。这样一来,公寓的墙壁被架子系统和长凳占据,支持烹饪、工作和储存等活动。
With the goal of freeing up as much area as possible for free and unimpeded occupancy, the basic principle of the project is to use the confines of the apartment as a support for all basic living activities. Thus the walls of the apartment are occupied with shelving systems and countertops, supporting activities such as cooking, working and storage.




对于支撑物,我们选择了不同的表面来满足所需的用途,在由架子支撑的胶合板、锯开的柚木和石头之间变化。架子系统作为一个网格,能够在高度和位置上进行新的安排,由市场上发现的典型系统制成。
For the supports, different surfaces were selected to serve the required uses, varying between plywood supported by racks, sawn teak wood and stone. The rack system acts as a grid that enables new arrangements in heights and positions, and is made by a typical system found on the market.



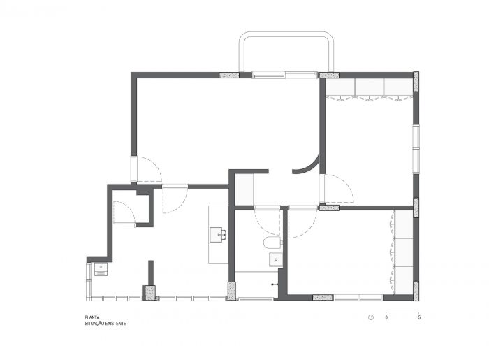
整个公寓只有一个楼层,加强了整合,淡化了房间之间的使用等级。为了寻找一个经济的工作,并减少废物的产生,液压和电力点被保留下来,门和柜子被改造成新的绘画和铁制配件。作为一个主要的操作,只有拆除客厅和厨房之间的隔断墙,这创造了一个单一的环境,由公寓的所有开口来照明和通风。
A single floor throughout the apartment reinforces the integration and dilutes hierarchies of use between the environments. In order to have an economical and low waste generation project, plumbing and electrical points were kept, doors and cabinets were refurbished and received new paint and hardware. As a major operation, only the removal of the dividing wall between living room and kitchen, which creates a single environment that is illuminated and ventilated by all the openings in the apartment.


















Architects: Daniel Zahoul, Trema Architecture
Area : 62 m²
Year : 2021
Photographs : Renata Zambello
Fabricators : Colormix, Himawari8 architecture and carpentry, Labmobili, REKA, Tecnobeton
Lead Architects : Raphael Souza e Daniel Zahoul
Programme : Single family house: living room, kitchen, 2 bedrooms, bathroom, laundry room.
City : São Paulo
Country : Brasil