在项目开始时,我们有一块空地。这个地块有非常明显的不平坦性。房子适应它,尽量不修改现有的地形。为此,房子根据现有的墙体(面向街道和另一个中间地带)和高度进行了调整。
We have an empty plot at the time of starting the project. This site has a very pronounced unevenness. The house accommodates itself to it, trying not to modify the existing topography. For this, the house is adjusted to the existing walls used (facing the street and another intermediate) and the heights.





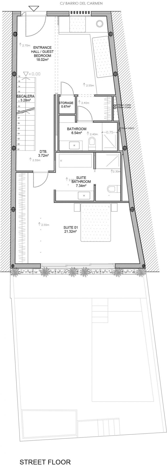
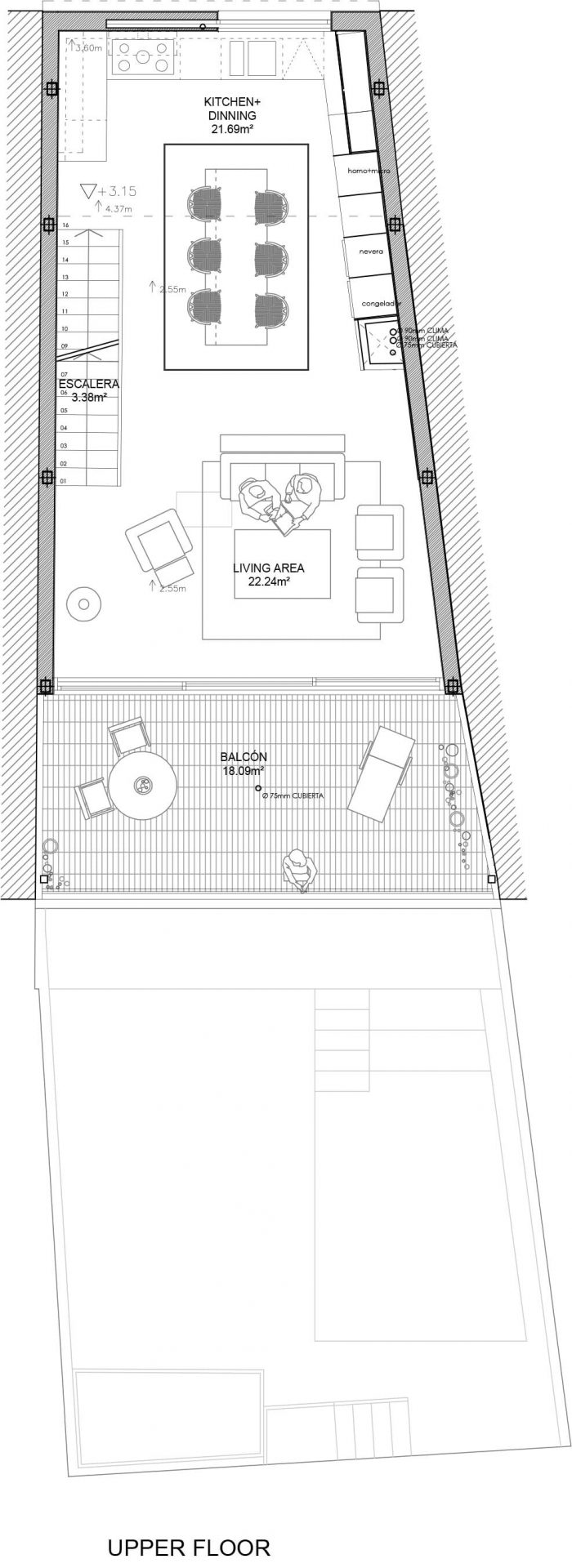
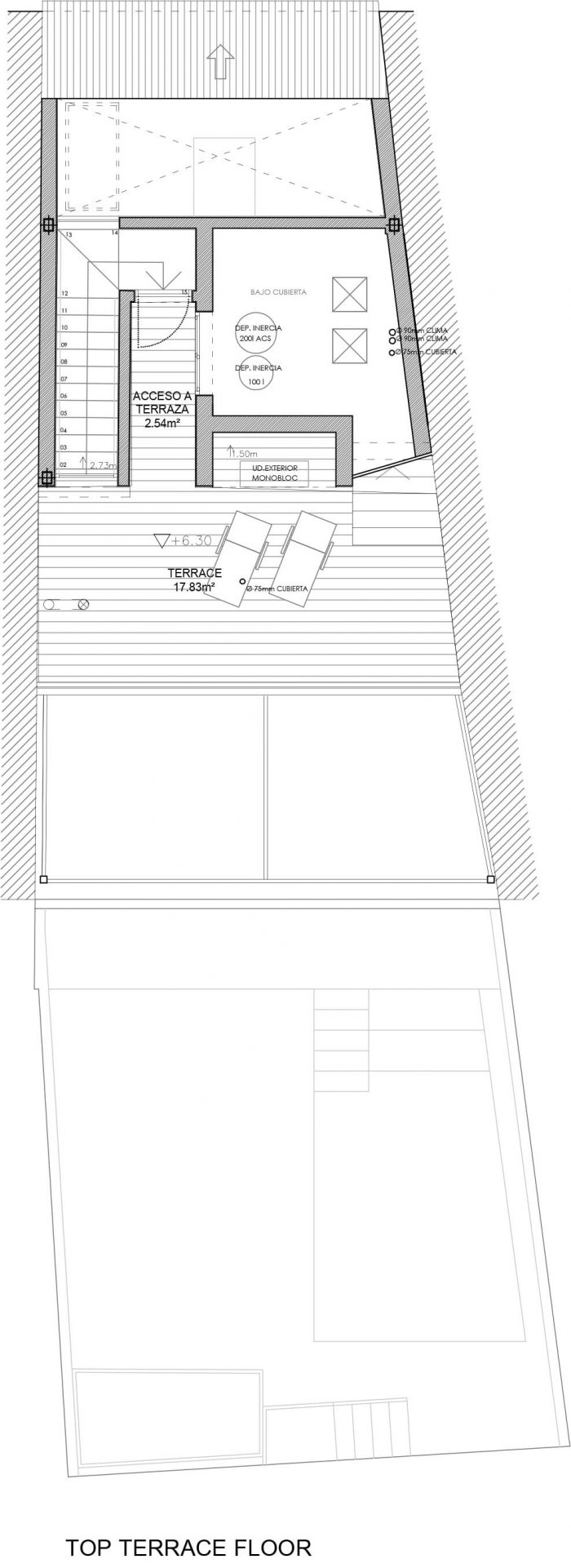
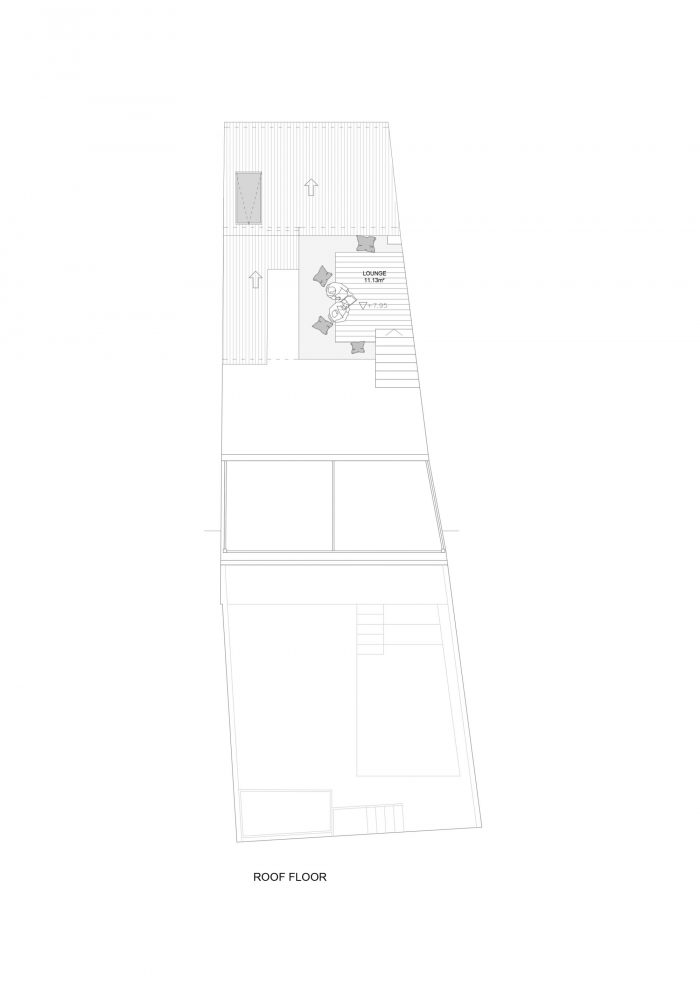
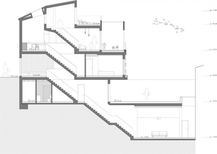
这座房子是根据景观来组织的。上层以更广泛的方式与景观相关,可以瞥见非洲,并且是客厅、餐厅和厨房的所在地。在街道层,人们的目光投向周围的风景,这里是主卧室和客卧,同时也是一个通道大厅。位于街面以下的底层,产生了它自己的外观,更加亲密,就像一个院子里的房子,遵循了最阿拉伯的传统。在地下一层,没有景观,有一个电影院区,利用空间的巨大高度和间接照明的优势。所有这些都以两个屋顶露台为顶点,完成了房屋与景观的紧密联系,将其组织起来。
The house is organized according to the views. The upper floor is related to the landscape in a more extensive way, reaching a glimpse of Africa, and is where the living room, dining room, and kitchen are located. On the street floor where the gaze is towards the surrounding landscape are the main bedroom and the guest bedroom which also functions as an access hall. The ground floor located below the street level, generates its own look, much more intimate, as a courtyard house, following the most Arab tradition. On the basement floor, with no views, there is a cinema area taking advantage of the great height of the space and the indirect lighting of the same. All this is topped off with two roof terraces that complete the intense relationship that the house has with the landscape that organizes it.






















Architects: DTR_studio
Area : 257 m²
Year : 2022
Photographs :Juanan Barros
Manufacturers : FARO Barcelona, Samsung, Sumum, Weber
Lead Architects : José María Olmedo, José Miguel Vázquez
Collaborators : Alba Marquez Cañas, Ignacio Ferreira Perez
Structural Design : Javier Sánchez Berdugo
Contractor : CRISEBA
City : Gaucín
Country : Spain