Martens Willems & Humblé建筑事务所在Vaals的受保护的城镇景观中设计了一个带零售的社会住房住宅区。荷兰的一个边境小城。一个社会住房领域的大型住宅区,将部分决定新的Koningin Julianaplein的形象,如何才能成为Vaals受保护的村庄景观的自然组成部分?
Martens Willems & Humblé Architects designed a social housing residential block with retail within the protected townscape of Vaals. A small border town in The Netherlands. How can a large residential block in the social housing sector, which will partly determine the image of the new Koningin Julianaplein, become a natural part of the protected village scape of Vaals?




因为如果建筑可以说话,我们的街区将不得不与周围环境进行强烈的对话。在这个边境城市,我们应该说什么语言?如果没有冯-克莱蒙特,瓦尔斯将一直是一个村庄。因为这位精力充沛的布匹制造商约翰-冯-克莱蒙(Johann von Clermont,1728-1795),有纪念意义的冯-克莱蒙的房子,今天的市政厅,以及Bloemendal和Vaalsbroek城堡出现在18世纪的Vaals。
Because if buildings could speak, our block will have to enter into a strong dialogue with its surroundings. What language should we speak in this border town? Without Von Clermont, Vaals would have remained a village. Because of this energetic cloth manufacturer Johann von Clermont (1728-1795), the monumental von Clermont house, today's town hall, and the Bloemendal and Vaalsbroek castles appear in 18th-century Vaals.



从那时起,瓦尔斯或多或少是位于边界另一边的亚琛(德国)的一个令人惊讶的庄严的郊区。瓦尔斯目前的中心提供了一个多样化的建筑典范,由涂成白色和红棕色的砖块组成的调色板将其联系在一起。所有冯-克莱蒙特的建筑过去都是 "gestrichen in ein gefäliges Gelb"。
Since that time Vaals is more or less a surprising stately suburb of Aachen (Germany), situated on the other side of the border. The current center of Vaals provides a diverse architectural canon, tied together by a color palette of painted white and reddish brown brickwork. All von Clermont buildings used to be 'gestrichen in ein gefäliges Gelb'.


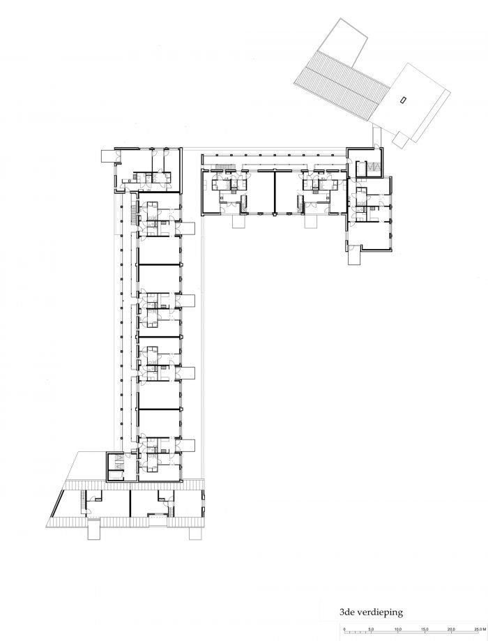
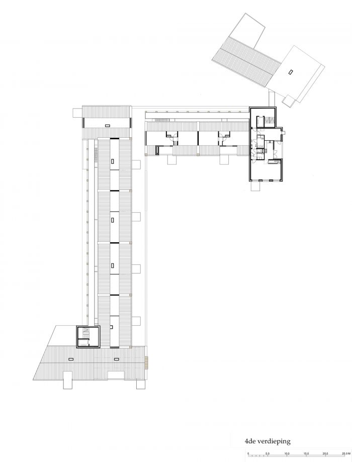
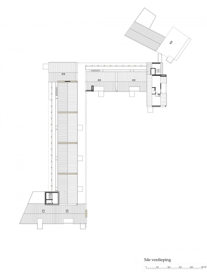
我们的L型住宅和商业区围绕着广场,用附近的马斯粘土烧制的天然黄褐色、高度细微的手工砖,把醒目的白色留给邻近的市政厅。建筑 "语言 "与稍远处的大型纪念碑和纪念性房屋的节奏相同,但也通过持续重复有限的重复性建筑元素,讲述自己的故事。
Our L-shaped residential and commercial block surrounds the square with a natural yellow-brown, highly nuanced, handmade brick fired from nearby Maas clay, leaving striking white to the adjacent town hall. The architectural 'language' speaks in the same staccato rhythm as the large monuments and monumental houses a little further on, but also tells its own story, through the consistent repetition of a limited number of recurring architectural elements.


但是,除了节奏,在重要的地方也需要一种音色,以衔接部分的整体。通过增加墙盘、突出的阳台、装饰性栏杆、烟囱和矗立在屋檐上的塔架等形式的装饰性附加物。该街区被分为大大小小11个 "房子"。并排的,靠近购物街或突出的角落,有供购物者使用的地下通道。
But in addition to a rhythm, a timbre is also needed in places where it matters, to articulate the whole in parts. By adding decorative additions in the form of wall discs, protruding balconies, ornamental railings, chimneys, and pylons that stand on the eaves. The block is divided into eleven "houses," large and small. Side by side, near the shopping arcade or protruding at the prominent corners, with underpasses for shoppers.


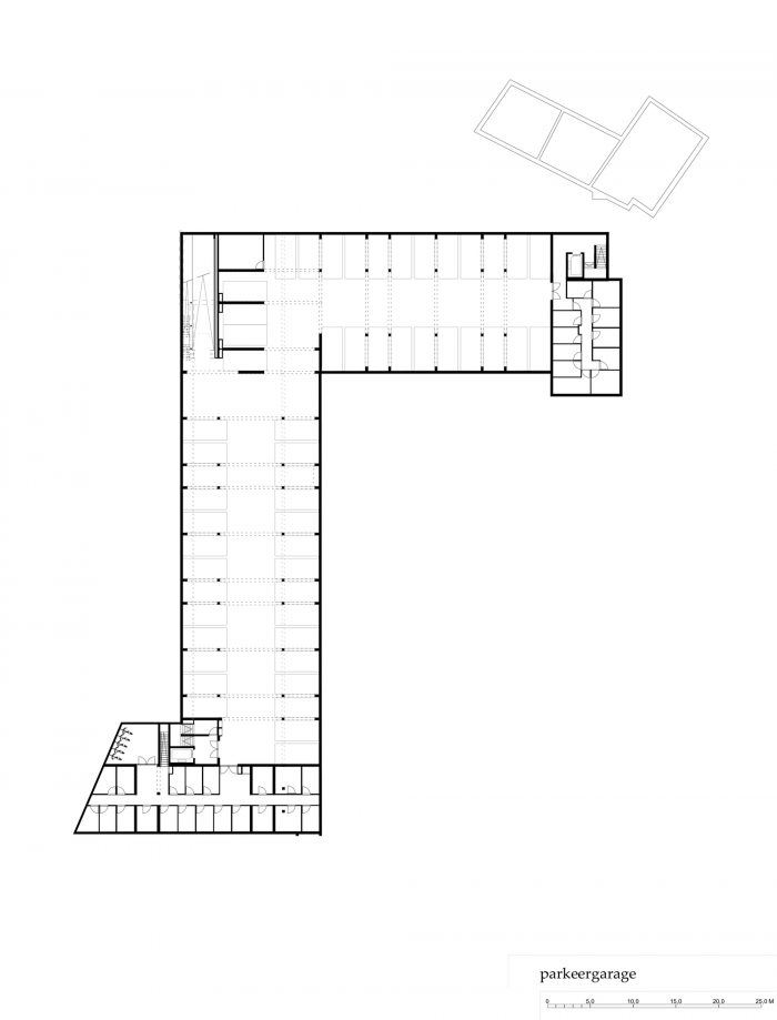
该建筑群位于一个地下停车场内。底层计划有商店和餐馆,有些地方有一个画廊。该项目是为一家社会住房公司建造的。所有的公寓都非常宽敞,住宅的每个房间都能看到广场的景色。
The complex is located in an underground parking garage. Shops and restaurants are planned on the ground floor, some parts have a gallery. The project was built for a social housing company. All the apartments are very spacious and every room of the dwelling always has a view of the square.




















Architects: Martens Willems & Humblé Architecten
Area : 8904 m²
Year : 2020
Photographs :Arjan Schmitz
Manufacturers : Steenfabriek Klinkers
Lead Architects : Fred Humblé, Maikel Willems, Rik Martens
Urbanism : Coenen Sättele Architecten
Main Contractor : Bouwbedrijven Jongen Landgraaf
City : Vaals
Country : The Netherlands