在一个以改造或完全取代工业建筑为特征的环境中,该项目保留并扩展了HEAD-Geneva(艺术和设计学校)的现有建筑,由建筑师Jean Erb在1948年建造,被列为20世纪的遗产。
In a context characterized by transformed or entirely replaced industrial buildings, the project preserves and extends by one floor the existing building of HEAD-Geneva (School of Arts and Design), built by architect Jean Erb in 1948 and classified as heritage of the 20th century.



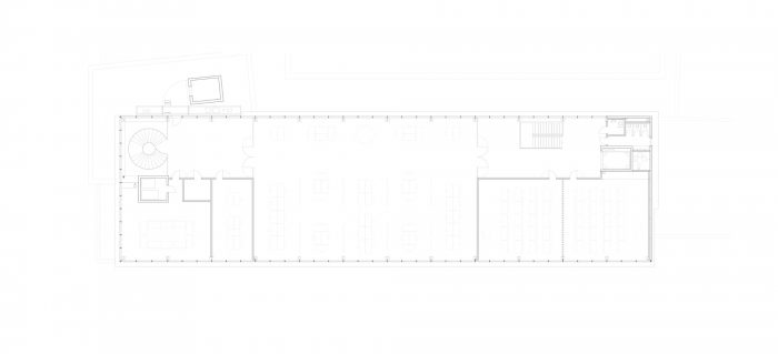
额外的800平方米的楼层包含车间、教室和办公室。它采用了一个简单的、正交的和自由的计划,其特殊性在于对现有结构节奏的改变。这样一来,新的楼层规划就摆脱了走廊的束缚,并提供了一个宽敞和连续的生活空间。
The additional floor of 800m2 contains workshops, classrooms and offices. It adopts a simple, orthogonal and free plan, whose specificity lies in the alteration of the existing structural rhythm. In doing so, the new floor plan frees itself from corridors, and offers a generous and continuous living space.


扩建部分被安排在一个大的金属框架下,使室内有节奏感。该项目是由一个周长定义的,一个简单的限制,吸引了一般的、有效的和灵活的空间。项目的合理性被一些精确的时刻所改变,在那里可以找到一些受控的不规则。
The extension is organized under a large metallic frame which gives rhythm to the interiors. The project is defined by a perimeter, a simple limit that draws generic, efficient and flexible spaces. The rationality of the project is altered by precise moments where a few controlled irregularities are to be found.


一个雕塑般的楼梯被安装在全高的空隙中,标志着进入建筑的主要通道。技术元素自由地穿过空间,有时将其适当的逻辑强加于整体。一台卸货机被小心翼翼地安置在东面的立面上。一根柱子打算在发生火灾时承担金属框架的负荷,但仍然是漂浮的。
A sculptural staircase is installed in the full-height void which marks the main access to the building. The technical elements cross the space freely, sometimes imposing their proper logic to the whole. A disgorger is carefully located on the east façade. A column intended to take up the loads of the metal frame in case of fire, remains floating.


额外的楼层有雄心壮志,既可以在现有建筑的连续性中阅读,也可以作为一个独立的体积。一个盒子,里面有一系列的例外情况、特殊性和烟火。
The additional floor has the ambition to be read both in the continuity of the existing building, and as an independent volume. A box, within which lies a series of exceptions, specificities, fireworks.










Architects: Sujets Objets
Area : 849 m²
Year : 2020
Photographs :Sven Högger, Charly Jolliet
Manufacturers : Forster Profilsysteme, Kästli Storen, Montana Bausysteme AG, Morand
Civil Engineer : Méry & Buffo Ingénieurs Civils
Conception / Construction : Thierry Buache
Conception / Construction / Details : Philippe Buchs
Construction / Details / Communication : Julien Donzé
Conception / Details : Angélique Kuenzle
Conception / Details / Finishes : Charline Dayer, Dafni Retzepi
Program / Use / Building Function : HEAD–Genève, Education, Ateliers, Studio spaces, classrooms, offices
City : Geneva
Country : Switzerland