位于广岛县东广岛市黑濑町。该项目是对自1898年以来一直经营的金光酒厂的直销处进行改造。当我第一次看到清酒酿造厂的大墙时,这个从国道上可以看到的注册有形文化财产,我觉得我仿佛看到了清酒酿造历史的一个层层叠叠。
Located in Kurose-cho, Higashihiroshima City, Hiroshima Prefecture. The project is the renovation of the direct sales office of Kanemitsu Sake Brewery, which has been in business since 1898. When I first saw the large wall of the sake brewery, a registered tangible cultural property visible from the national highway, I felt as if I were looking at a stratum of layers of the history of sake brewing.





碳化雪松的镶板,石膏,和红砖屋顶,这是小镇的一些特征。随着这三种材料的重叠,在它们之间的边界出现了两条线。通过长期保存和积累传统,创造了一条美丽的水平线。对于相邻的直销店,在牢记从清酒酿造厂引出的水平线的同时,创造了一条新的线,其中一部分建筑有机地上升了。
The paneling of burnt cedar, the plaster, and the red brick roof, some of the characteristics of the town. As the three materials overlap, two lines appear at the boundary between them. A beautiful horizontal line created by preserving and accumulating tradition for a long time. For the adjacent direct sales shop, while keeping in mind the horizontal line leading from the sake brewery, a new line was created in which a portion of the building rises organically.

现有建筑的屋檐略微突出,在向下的方向变得更加丰满,以创造一条新的线条。由于日本酒据说最早是为神灵制作的,所以我们用石膏来创造一个让人联想到神社或佛教寺庙的空间。通过提高入口处的线,也就是这个空间的起点,我希望它能成为所有参观者的起点,为酒厂的传统和历史增添新的一页。
The eaves of the existing building, which were slightly protruding, were made more voluminous in the downward direction to create a new line. Since sake is said to have been first made for the gods, we used plaster to create a space reminiscent of a shrine or Buddhist temple. By raising the line at the entrance, which is the starting point of this space, I hoped that it would be the starting point for all the visitors to add a new page to the tradition and history of the brewery.

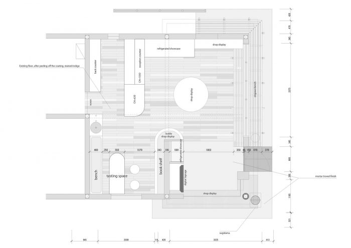
另一条线以入口为中心,将其功能分为左右两边。在入口的右侧,有一个L型的长椅,其功能与长廊相同,这是基于对明治初期一家酒类商店的参考,该商店有一个直接与街道相邻的长廊。在入口处的左侧,窗台被手工磨碎,原本要丢弃的玻璃酒瓶被粉碎、混合和磨碎,这样,现代的玻璃技术就像化石一样被封存在历史的地层里。
The other line is centered on the entrance and divides its functions into left and right. On the right side of the entrance, there is an L-shaped bench with the same function as a veranda, based on a reference to a liquor store in the early Meiji period that had a veranda directly adjacent to the street. On the left side of the entrance, the window sill is sharpened by hand, and glass bottles of sake, which were to be discarded, are crushed, mixed, and sharpened so that the modern technology of glass is sealed like a fossil in the strata of history.


在室内空间,不同的材料被用来形成一个有机的R线,表达了透明液体中无形的生命活力,当我看到发酵罐中的气泡重叠和繁殖时,我感受到了这种活力。酿酒厂使用的材料,如烟囱的砖头、toji(首席酿酒师)穿的靛青色围裙、铜板和玳瑁色金属网,都是酿酒厂自然使用的材料,但被转换为不同的用途。
In the interior space, different materials are used to form an organic R-line, expressing the invisible vibrancy of life in the transparent liquid that I felt when I saw the bubbles overlapping and multiplying in the fermentation tank. The materials used in the brewery, such as the bricks of the chimney, the indigo-colored apron worn by the toji (chief brewer), the copper plate, and the tortoiseshell wire mesh, are naturally used in the brewery but are converted to different uses.

在被田野包围的平静的水平线中产生了一个小的 "凸起"。我相信这反映了东家希望继续挑战新的远景,同时保留流传下来的悠久历史的愿望。我希望这些感受能像涟漪一样从新产生的隆起处扩散开来,像天线一样。
A small "bulge" is created in the calm horizontal line surrounded by fields. I believe this is a reflection of the Toji's desire to continue to challenge new vistas while preserving the long history that has been passed down to him. It is my hope that these feelings will spread like ripples from the newly created bulge, like an antenna.













Architects: FATHOM
Area: 32 m²
Year: 2021
Photographs: Tatsuya Tabii
Manufacturers: Clever, Karimoku New Standard, Tile life
Design:Hiroyuki Nakamoto
Sign And Logo Design:Akira Kubo, Guide
Green Display:Kenzaburou Ooshio, Green Union
Steel Works:KAMO CRAFT, Susumu Murata, Kamo Craft
Architects:FATHOM
City:Higashihiroshima
Country:Japan