一家前尼龙厂被彻底改造成一个独特的办公室。一个新的钢平台框架悬挂在现有的混凝土结构上。在这个由HofmanDujardin和Schipper Bosch共同打造的项目中,视觉和设计相得益彰,该项目位于荷兰阿纳姆的清洁技术园区Industriepark Kleefse Waard。该规划建立在现有品质的基础上,将额外的楼层空间与清晰的路线相结合,将KB大楼转变为一个充满活力的办公空间。
A former nylon factory is completely transformed into a unique office. A new framework of steel platforms is hung from the existing concrete structure. Vision and design complement each other in this co-creation of HofmanDujardin and Schipper Bosch, situated on the cleantech campus Industriepark Kleefse Waard in Arnhem, Netherlands. The plan builds upon existing qualities and combines extra floor space with a clear routing, transforming the KB building into a dynamic office space.



在以前的生产车间里,巨大的工业锅炉被放置在一个严重凸起的楼层上。拆除锅炉后,空间中近乎神圣的美感显露无遗。这个明亮宽敞的大厅与底层和地下室形成了强烈的对比,由于混凝土结构,它们具有更重的特点。一个新的木质楼梯现在连接了这两个世界,并形成了连接所有新楼层的新的中央路线的起点。
In the former production hall, huge industrial boilers were placed on a heavily raised floor. After the removal of the boilers, the almost sacred beauty of the space was revealed. This light and spacious hall is in strong contrast with the ground floor and basement, which due to their concrete structure have a much heavier character. A new timber staircase now connects these two worlds and forms the starting point of a new central route connecting all new floors.

三维的构成。新的楼层悬挂在开放的空间中,形成了一个精心设计的立体构图。这些新的平台创造了具有特定品质的多样化工作空间。每一个地方都与其他空间相连,同时提供了接地气。通过保持中央通道不受建筑影响,建筑的空间感得以保持。
Three-dimensional composition. The new floors hang in the open space as an elaborate three-dimensional composition. These new platforms create diverse working spaces with specific qualities. Each place is connected to other spaces and simultaneously offers groundedness. By keeping the central access free from construction, the spaciousness of the building is maintained.

新的楼层尽量采用轻质结构,在现有的柱子之间采用开放式的格子梁。在上面铺设带有集成吊顶板的楼板。因此,该设计不仅延续了视觉上的空间感,还允许在未来对改造进行调整,甚至是恢复。从而保证了结构对未来需求的灵活性。
The new floors are constructed as light as possible, with open lattice girders in between the existing columns. The floor slabs with integrated ceiling panels are laid on top. As a result, the design not only continues the visual spaciousness, it also allows the transformation to be adapted or even reverted in the future. Thereby ensuring the structure's flexibility to future needs.


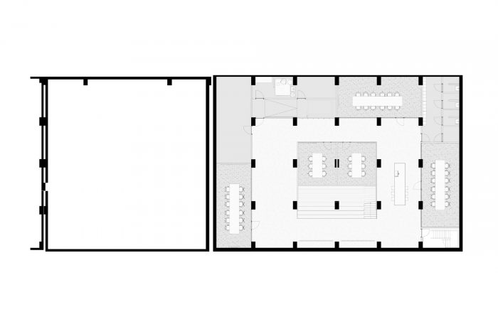
动态的办公室。在主入口旁边,一个长条形的酒吧元素延伸出来,并作为接待处。一楼还设有多个会议室和一个餐厅。一个带有看台楼梯的新大空隙让日光进入南风。楼梯可作为一个大的演示和活动空间。为了刺激运动,电梯被隐藏在一个黑色的体积中,穿透所有楼层。
Dynamic office. Next to the main entrance, a long bar element stretches out and doubles as a reception. The ground floor also features multiple meeting rooms and a restaurant. A big new void with a grandstand staircase allows daylight to enter the souterrain. The staircase doubles as a big presentation and event space. To stimulate movement, the elevator is hidden in a black volume that penetrates all floors.

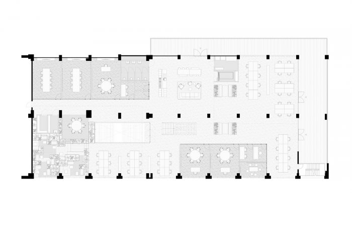
除了更大的姿态,家具也小心翼翼地容纳了合作的空间和集中的地方。规划是基于隐私等级的递进:茶水间和休息室最靠近中央楼梯,而工作站则集中在平台的末端。一楼有一个集中的丛林,员工可以在郁郁葱葱的植物之间工作。颜色和材料在现有的混凝土上增加了暖灰色的基调,会议室的颜色也是互补的。
Besides the bigger gestures, the furnishing carefully accommodates space for collaboration and places for concentration. The plan is based on a progression in privacy levels: pantries and lounges are closest to the central staircase, whereas workstations are concentrated at the ends of the platforms. The first floor features a concentration jungle in which employees can work in between luscious planting. The colors and materials add to the existing concrete with a warm-grey base tone and complementary colors in the meeting rooms.


清洁技术园区。KB建筑是位于荷兰阿纳姆的清洁技术园区Industriepark Kleefse Waard的一部分。这个可持续发展的商业园区由Schipper Bosch开发,用于容纳、促进和连接能源领域的业务。该建筑与当地的能源工厂相连,该工厂利用当地的废水、能源和废品运行。为了保持园区的统一性,该区所有的外立面改造都由Schipper Bosch设计。
Cleantech campus. KB building is part of cleantech campus Industriepark Kleefse Waard in Arnhem, Netherlands. This sustainable business park is developed by Schipper Bosch to house, facilitate and connect business in the energy sector. The building is connected to a local energy plant which runs on local waste water, energy and waste products. To keep a certain unity on the campus, all façade renovations of the district are designed by Schipper Bosch.














建筑师:HofmanDujardin, Schipper Bosch
面积: 3300 m²
年份:2020年
摄影:Matthijs van Roon
固定家具 : Dokter interieurbouw
安装咨询:Huisman & van Muijen, JBTECH
主要承包商 : Karbouw
城市:阿纳姆
国家:荷兰
Architects: HofmanDujardin, Schipper Bosch
Area: 3300 m²
Year: 2020
Photographs: Matthijs van Roon
Fixed Furniture:Dokter interieurbouw
Installations Consultancy:Huisman & van Muijen, JBTECH
Main Contractor::Karbouw
City:Arnhem
Country:The Netherlands