卡利是亚得里亚海岛屿上最大的定居点之一,位于克罗地亚扎达尔市附近的乌格良岛。该村以捕鱼而闻名。项目简介是在为数不多的空地上设计两个度假屋,这些空地位于两条道路之间,纵向高度差为21米。我们面临的挑战是设计一个统一的空间,满足当代用户多种多样的需求,同时创造出 "在海边与海为伴 "的生活感觉。
Kali is one of the largest settlements on the Adriatic islands located on the island of Ugljan near the city of Zadar, Croatia. The village is best known for fishing. The project brief was to design two vacation houses on one of the few vacant lots situated between two roads with a height difference of 21 m in the longitudinal section. The challenge was to design a unified space, which would fulfill a multitude of the contemporary user's heterogeneous needs, and at the same time, to create the feeling of living „with the sea at the seaside“.


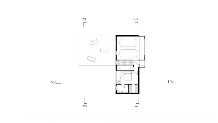
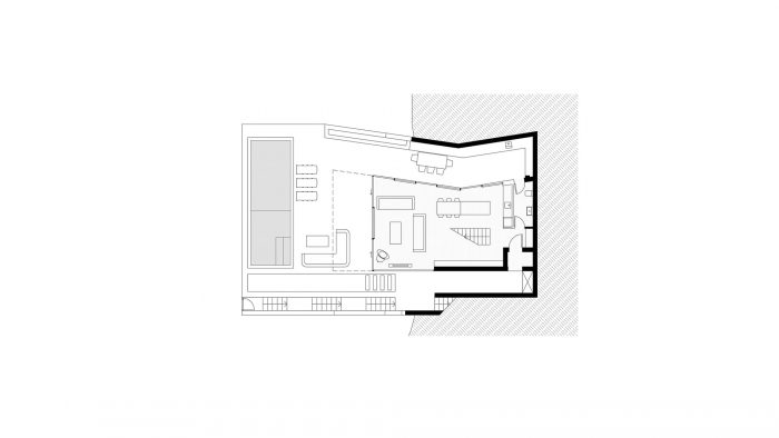
这些房子被设计成一个空间整体,由较小的环境组成,容纳了高质量度假所需的各种功能。鉴于房屋主要在温暖的夏季使用,我们的想法是使外部空间得到大量使用,这些空间被设想为内部空间的延伸。这些空间共同创造了一个空间和功能的整体。由于场地的陡峭斜坡,所有创造的环境都被场地的最大价值--大海和扎达尔市的景色所丰富了。
The houses are designed as a spatial whole consisting of smaller ambiances that house various functions necessary for a high-quality vacation. Given that the houses are to be used mostly during the warm summer months, the idea was to enable abundant usage of outer spaces, which are envisioned as an extension of the inner ones. Together, these spaces create a spatial and functional whole. Due to the site's steep slope, all created ambiances are enriched by the site's greatest value – the view of the sea and the city of Zadar.


考虑到两个微型地点的不同条件,房屋的组织方式完全不同,但它们具有相同的建筑表达。这样一来,设计的统一性得到了保持。房屋相对较大的体积(相对于场地本身而言)被分成三个大小大致相同的立方体,这样它们之间的关系创造了适合舒适使用的不同质量的外部空间。
Considering the different conditions of the two micro-locations, the houses are organized completely differently, but they are of the same architectural expression. That way, the design unity is maintained. The houses' relatively large volumes (in relation to the site itself) are divided into three cubes of approximately the same size arranged so that their relations create outer spaces of different qualities suitable for comfortable use.


整个布局被一个楼梯连接起来,使其不影响其他功能,同时提供了从两个房子通往大海的通道。特别注意的是大型水平外部生活空间的设计,白天和晚上的生活都是围绕着这些空间进行的。
The whole disposition is connected with a stairway positioned so that it does not disrupt other functions while providing access to the sea from both houses. Special attention was given to the design of large horizontal outer living spaces around which life revolves during both, the day and the night.


























Architects: SODAA
Area : 481 m²
Year : 2020
Photographs :Domagoj Kunić
Manufacturers : AutoDesk
Lead Architect : Vedran Jukić
Structure Engineering : RADIONICA STATIKE
Mechanical Installations : Solarventprojekt
Electrical Engineering : ELAG
Building Physics : AKFZ
Traffic Planning : Radius projekt
Collaboration : Mihaela Goluža, Jure Čudina
Project Team : Maša Medoš, Diego Kozlović
Plumbing And Drainage : CAD PROJEKT
City : Kali, Croatia
Country : Croatia