Sanskruti学校是一所位于Gokak的现有校园内的专属学前教育学校。规划理念的指导思想是考虑到幼儿园儿童的心理和生理需求,他们有探索空间的倾向,有令人兴奋的途径和色彩斑斓的远景,而且边界最小。一块三角形的土地夹在北面现有的教学楼、东西两侧的一组操场和南面紧邻城市车行道的校园地产边缘之间,被确定为新建学前教育大楼的合适位置,为整个校园精心设计了立面,因为它矗立在现有建筑的前景中。
Sanskruti School is an exclusive pre-primary school for an already existing school campus at Gokak. The planning philosophy is directed by considering the psychological and physical needs of kindergarten children who have tendencies to explore spaces with exciting avenues and colorful vistas with minimum boundaries. A triangular-shaped piece of land sandwiched between an existing school building on the north, a set of playgrounds on the east and west sides, and the campus property edge abutting the city’s vehicular road on the south was identified as an appropriate location for a new pre-primary school building, crafting the elevation for the entire campus as it stands in the foreground of the existing buildings.




在戈卡克这个温暖而干旱的城市中,某些气候方面的考虑在设计这座建筑时起到了关键作用。场地的东北侧被选择来容纳所有的教室,这样它的开口就不会受到南方刺眼的光线的影响。所有的活动空间、走廊、楼梯、庭院、行政人员和活动室都朝南放置,作为对车辆交通和夏季高温的缓冲,鼓励学生在自然采光和舒适遮阳的建筑形式的空间中学习和成长。
Certain climatic concerns have played a key role in designing this building in Gokak, a warm and arid city. The northeast side of the site is chosen to accommodate all the classrooms, such that its openings are free from the harsh glare of the south. All the activity spaces, corridors, staircases, courtyards, admin staff, and activity rooms are placed facing south which acts as a buffer from vehicular traffic and summer heat, encouraging students to learn and grow in naturally lit and comfortably shaded spaces of the built form.

穿过这些空间形成的三层高度的庭院产生了有效的堆积效应,减少了对人工通风和冷却系统的需求。学校的基座水平是根据场地环境而设计的。通往中庭和地下一层的主要入口是从南面直接进入的。东边面向操场的露天剧场是另一个通往中庭的楼梯入口。一个与之平行的坡道帮助挑战者。在底层的入口处,三个托儿所教室、一个校长室和一个工艺室被规划在一个中央中庭周围。学校的主入口从东边通过一系列由场地的自然轮廓形成的台阶进入。这些台阶同时也是一个面向现有操场的OAT。
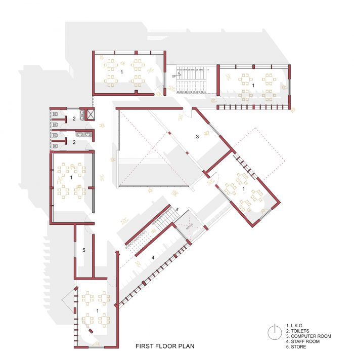
A triple height court formed by crossing these spaces generates an effective stack effect, reducing the need for artificial ventilation and cooling systems. The plinth level of the school is contoured in response to the site context. The primary entrance to the atrium and the basement floor is a direct entry from the south. An amphitheater on the east facing the playground acts as another stairway entry leading up towards the atrium. A ramp running parallel to this assists the challenged. At the entry level on the ground floor, three nursery classrooms, a principal’s cabin, and a crafts room are planned around a central atrium. The school's main entrance from the east is accessed through a series of steps formed by the site's natural contours. These steps double up as an OAT facing the existing playground.


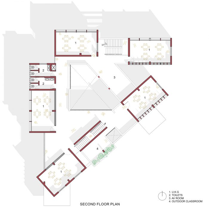
南部的一个楼梯是一个直梯,卡在南部的花园球场和中央庭院的内部走廊之间。北面的一个狗腿楼梯,开在正式教室和非正式户外活动区的紧密安排之间,引导学生到地下室进行课间休息和午餐休息。从建筑的中庭直接进入地下室的通道是为大型的学生聚会而设置的。低年级学生的教室、教员室和一个多功能活动室都位于一楼。同样地,UKG学生的教室、一间日间卧室和一间玩具室位于二楼。每层楼都有一个厕所,位于建筑的后侧,两个教室的网格相交,使其便于从所有地方进入。
A staircase in the south is a straight flight of staircases jammed between the garden courts in the south and the internal corridors of the central courtyard. A dog-legged staircase on the north, opening between tight arrangements of formal classrooms and informal outdoor activity areas guides the students to the basement for recess and lunch breaks. Direct access to the basement is caved in from the atrium of the building for larger gatherings of students. Classrooms for LKG students, a staff room, and a multipurpose activity room are located on the first floor. Likewise, classrooms for UKG students, a day bedroom, and a toy room are located on the second floor. On every floor, a toilet block is accommodated at the rear side of the building where two grids of classrooms intersect making it convenient to access from all.



开放性、连续性、安全性、活力和统一性的建筑语言通过庭院、教室、楼梯、走廊和连接各年级学生的双层空间的深思熟虑的定位而被贯穿。为了应对三角形的场地形状,三个街区相互环抱,将所有的空间包围在一个三层高的中央庭院周围。圆形窗户和黄色和红色色调的彩色Bris-soleil是对幼儿园孩子们的天真、童趣和精力充沛的隐喻。这种建筑特征的庆祝活动贯穿于建筑内部和外部,通过这些花哨的门窗将室内和室外框在一起。建筑形式的质量通过在地块的三面堆放一排排的教室而绽放出来。通过有节奏地扭转这些体块,在垂直和角度上突出的立方体有助于创造简单而有力的建筑体量。
The architectural language of openness, continuity, security, vibrancy, and unity is choreographed throughout by the thoughtful positioning of the courtyards, classrooms, staircases, corridors, and double-height spaces which connect students across grades. In response to the shape of a triangular site, three blocks are looped into each other enveloping all the spaces around a central triple-height courtyard. The circular windows and the colorful Brise-soleil in shades of yellow and red are a metaphor for the kindergarten kids' naiveness, childlike and energetic nature. This celebration of architectural features runs in and out of the building framing the indoors and outdoors through these fancy fenestrations. The massing of the built form is blossomed by stacking rows of classrooms within the three sides of the plot. With a rhythmic twist and turn of these blocks, a volume of cubes jutting out at perpendicular and angular degrees assists in creating simple yet powerful architectural volumes.






























Architects: Shreyas Patil Architects
Area : 24000 ft²
Year : 2022
Photographs :Atik Bheda
Manufacturers : Aluminium Windows, Asian Paints, Tile Vetrified
Lead Architect : Shreyas Patil
Structural Engineer : Str. Er. Sagar Huddar
Contractor : D.C.E. Arun Kadam
City : Gokak
Country : India