这个项目的主要设计方法是在尽可能多的现有结构和材料的基础上设计这个空间,重点是 "修复 "和 "增加"。首先,现有的结构被保持原样。然后,所有的木墙被拆除,进行修复、抛光和重新上漆。即使在细节方面,如窗框,也保持原样,但我们增加了玻璃作为新的一层,让自然光进入,但仍然能够使用空调系统。空间规划被重新安排,以适应新的宿舍用途。
The main design approach for this project was to design this space based on as much as possible existing structure and material by focusing on “repairing” and “adding”. Firstly, the existing structure was kept as the way it is. Then, all wooden walls were removed to be repaired, polished, and repainted. Even in the details such as the window frames, they were kept the way they were, yet we’ve added the glass as a new layer to let the natural light in but still able to use air-conditioned system. The space planning was rearranged to suit with the new usage as a hostel.




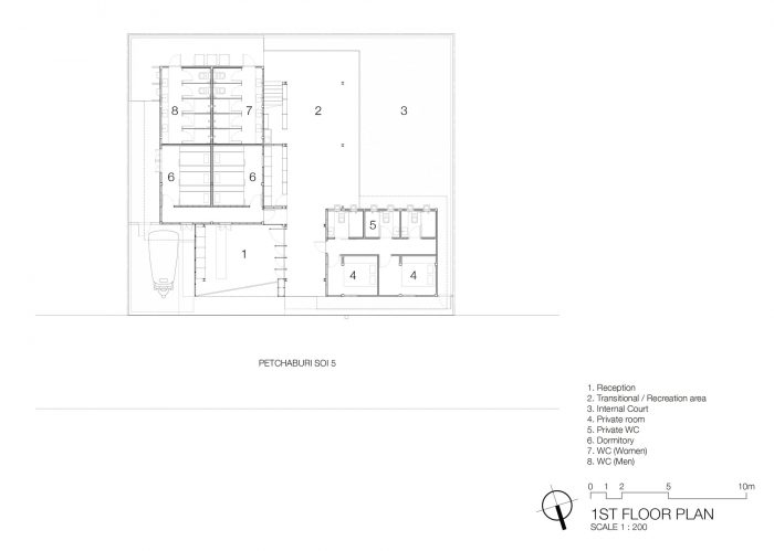
在空间管理方面,更大的建筑包括一个四人床位和六人床位的女子宿舍,在底层有共享的厕所/淋浴空间,在上层有两个三人床位、一个四人床位和一个六人床位的男子宿舍。带工作台、储物柜和用于自我装饰的架子的床是为这些特定房间设计的,用软帘作为隔断以保护隐私。较小的建筑由底层的2个私人房间和3个浴室组成,上层还有3个带娱乐平台的私人房间。
For the space management, the bigger building consists of a four-bedded and six-bedded women dormitory with shared toilets / shower space in the back on the ground floor and 2 three-bedded, 1 four-bedded and 1 six-bedded men dormitory on the upper level. The Bed with working table, locker, and shelf for self-decoration is designed for these specific rooms with a soft curtain as a divider for privacy. The smaller building consists of 2 private rooms and 3 bathrooms on the ground floor with 3 more private rooms with recreation deck on the upper level.

新的钢结构与这两座现有的木制建筑的结合,给KLOEM旅馆带来了正确的氛围,并像附近的 "老好人 "那样向来访的客人介绍曼谷。
This integration of the new steel structure whose representing the present time with these 2 existing wooden buildings gives KLOEM HOSTEL the right atmosphere and introducing Bangkok to visiting guests like the “good old folks” of the neighborhood would.









































Architects: IF (Integrated Field)
Area : 355 m²
Year : 2018
Photographs :PanoramicStudio
Main Contractor : Rattanaphon Development
Lighting Designer : Kullakaln Gururatana
Graphic Designer & Signage Contractor : Pakaporn Penpayap and Ketkarn Damrongwattanapoki
Structural Engineer : Boonchu Sedchaicharn
M & E : Teerawut Phuikhan
Branding : Pattra Erikittipong, Nattasiri Hansapinyo, Savitree Jeamkijrung, Pontapan Sangwaraporn
Landscape Architect : Pailin Chumplang
Graphic Designer : Pakaporn Penpayap and Ketkarn Damrongwattanapoki
Signage Contractor : Pakaporn Penpayap and Ketkarn Damrongwattanapoki
Lighting Designer : Kullakaln Gururatana
Mechanical & Electrical : Teerawut Phuikhan
City : Bangkok
Country : Thailand