新的住宅楼Koenigstadt-Quartier位于柏林弗里德里希沙因的Volkspark Friedrichshain和Alexanderplatz之间。该项目是以柏林历史上的科尼格斯塔特区命名的,该区延伸到米特、普伦茨劳博格和弗里德里希沙因的部分区域。凭借其永恒而安静的建筑风格,不同的屋檐高度,该建筑与莫尔街周围的城市氛围相契合,并通过占用现有开发项目的走线来延续典型的街区边缘结构。该住宅综合体由一个十层楼的街区组成,它的标志是另外两层楼的塔楼形状。
The new residential building Koenigstadt-Quartier is located in Berlin-Friedrichshain between Volkspark Friedrichshain and Alexanderplatz. The project was named after the historic Koenigstadt quarter of Berlin, which extends over parts of the districts Mitte, Prenzlauer Berg and Friedrichshain. With its timeless and quiet architecture, the different eaves heights, the building fits in with the urban atmosphere around Mollstrasse and continues the typical block edge structure by taking up the alignment of the existing development. The residential complex consists of a ten-storey block, which is marked by two further storeys in the shape of a tower.



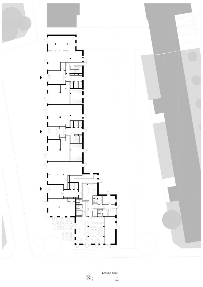
一座六层高的交错式前部建筑使屋檐高度回到了柏林的历史尺寸,并从侧面通往巴尼姆大街上的一个公共内院。在另一端,底层和高层将该建筑群与相邻的建筑物连接起来。除了底层的商业单位外,这里只建了公寓。不管它的尺寸有多大,该建筑通过其房间高、宽大的窗户正面和设计开放的、平坦的玻璃底层呈现出它的光线和开放性。
A six-storey, staggered front building brings the eaves height back to the historical Berlin dimensions and flanks the access to a common inner courtyard on Barnimstrasse. At the other end, the ground and upper floors connect the complex to the neighbouring buildings. Apart from the commercial units on the ground floor, only flats were built here. Regardless of its large dimensions, the building presents itself light and open through its room-high, generous window fronts and an openly designed, flat glazed ground floor.



奢华的设计,由彩色建筑混凝土制成的凹槽式檐条,与阳台、凉亭和落地窗形成一条流动的线,使外墙有了额外的可塑性和张力。狭窄的连续护栏支撑着水平重点,它与透明和不透明的玻璃元素的节奏一起,赋予了该体量一个明确的特征。新的出租公寓楼提供了广泛的公寓解决方案,从2室到5室的单位,以满足不同的、个性化的要求和租户的愿望。
The lavishly designed, cove-like cornice strips made of coloured architectural concrete form a flowing line with the balconies, loggias, and floor-to-ceiling windows and lend the facade matrix additional plasticity and tension. The horizontal emphasis is supported by the narrow continuous parapets, which together with the rhythm of transparent and opaque glass elements give the volume an unmistakable character. The new rental apartment building offers a wide range of apartment solutions, from 2-room to 5-room flats, for different, individual requirements and wishes of the tenants.

宽敞的绿色屋顶露台和贯穿所有楼层的连续阳台带,进一步提高了生活质量。住宅区的院子里配备了适合所有年龄段的儿童游乐场,这些游乐场在一个开放的、有树木覆盖的、有草坪的600多平方米的区域里被划分为独立的区域。除了技术室和储藏室,地下室的单层地下停车场提供了41个停车位的空间,其中一些是无障碍的。
Generous, green roof terraces and continuous balcony bands across all floors additionally increase the quality of living. The courtyard area of the residential complex was equipped with children's playgrounds for all ages, which are divided into individual areas in an open, tree-covered, and lawned area of over 600 sqm In addition to technical and storage rooms, a single-storey underground car park in the basement provides space for 41 car parking spaces, some of which are barrier-free.


入口和出口都位于门房旁边。大楼还规划了总共240个自行车停车位,这些停车位位于地下室和底层的自行车室,或位于院子里的露天设施。
The entrance and exit are located next to the gatehouse. A total of 240 parking spaces for bicycles have also been planned for the building, which are located in the bicycle rooms on the basement and ground floor and or in the open-air facilities in the courtyard.

















建筑师:Tchoban Voss Architekten
面积:17000 m²
年份:2020年
照片:Klemens Renner
制造商:GBJ Geithner Betonmanufaktur Joachimsthal GmbH, Haskamp Group
项目合伙人和负责人:Frederik-Sebastian Scholz
策划:Nancy Wendland, Eimear O'Gorman, Fabiana Pedretti, Johannes Beese
创意指导:Valeria Kashirina
3D: Ingo Schwarzweller, Ramona Schwarzweller, Evgenia Sulaberidze
结构工程:Mehlhorn und Vier Ingenieurgesellschaft mbH
建筑设备:Plan B - Beratende Ingenieure GmbH
景观设计:Hanke + Partner Landschaftsarchitekten
消防:Upmeyer und Partner Pruefingenieure fuer Brandschutz
城市:柏林
国家:德国
Architects: Tchoban Voss Architekten
Area: 17000 m²
Year: 2020
Photographs: Klemens Renner
Manufacturers: GBJ Geithner Betonmanufaktur Joachimsthal GmbH, Haskamp Group
Project Partner And Leader:Frederik-Sebastian Scholz
Planning:Nancy Wendland, Eimear O’Gorman, Fabiana Pedretti, Johannes Beese
Creative Direction:Valeria Kashirina
3D:Ingo Schwarzweller, Ramona Schwarzweller, Evgenia Sulaberidze
Structural Engineering:Mehlhorn und Vier Ingenieurgesellschaft mbH
Building Equipment:Plan B - Beratende Ingenieure GmbH
Landscaping:Hanke + Partner Landschaftsarchitekten
Fire Protection:Upmeyer und Partner Pruefingenieure fuer Brandschutz
City:Berlin
Country:Germany