Koohsar公寓位于一座山的前面,并紧邻其山腰。建筑围护结构掩盖了一部分山景,为了在视觉上同化建筑后面的山景和建筑立面,设计团队启动了一个融合拟建建筑的方法。建筑立面所使用的砖头材料被选择来补充远处山的色调。砖块图案模拟了从下到上的运动,吸引了游客对背景的注意,并提供了一个无缝的前景。
Koohsar Apartment is located in front of a mountain and in close proximity to its hillside. The building envelope conceals a portion of the mountain scene, and in order to visually assimilate the mountain scene behind the building and the building façade, the design team initiated an approach to blend in the proposed building. The brick material used for the building facade was chosen to complement the hue of the mountain in the distance. The brick pattern simulates a bottom-to-top movement and attracts the visitor’s attention to the background, and provides a seamless foreground.



由于该建筑位于城市的高海拔地区,因此利用了一些放大的深色盒子来强调建筑的形式。这些盒子缓解了南方的光线,另外还从内部空间创造了一个耐人寻味的城市框架。该建筑的土地被限制为提供一个入口,并从南面接受阳光,因为它三面都与相邻的建筑相连。
Since the building is located at a high elevation of the city, a few enlarged and deep boxes are utilized to emphasize the building form. These boxes mitigate the southern light and additionally create an intriguing frame of the city from the interior space. The building’s land is limited to provide an entrance and receives sunlight from the southern side since it is attached to the adjacent buildings on three sides.


为了给私人房间提供足够的阳光,并提供一个宁静的氛围,我们考虑在建筑的北侧设置后退。
In order to deliver sufficient sunlight to the private rooms and provide a peaceful ambiance, a setback was considered at the northern side of the building.


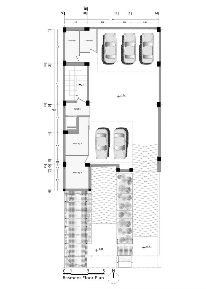
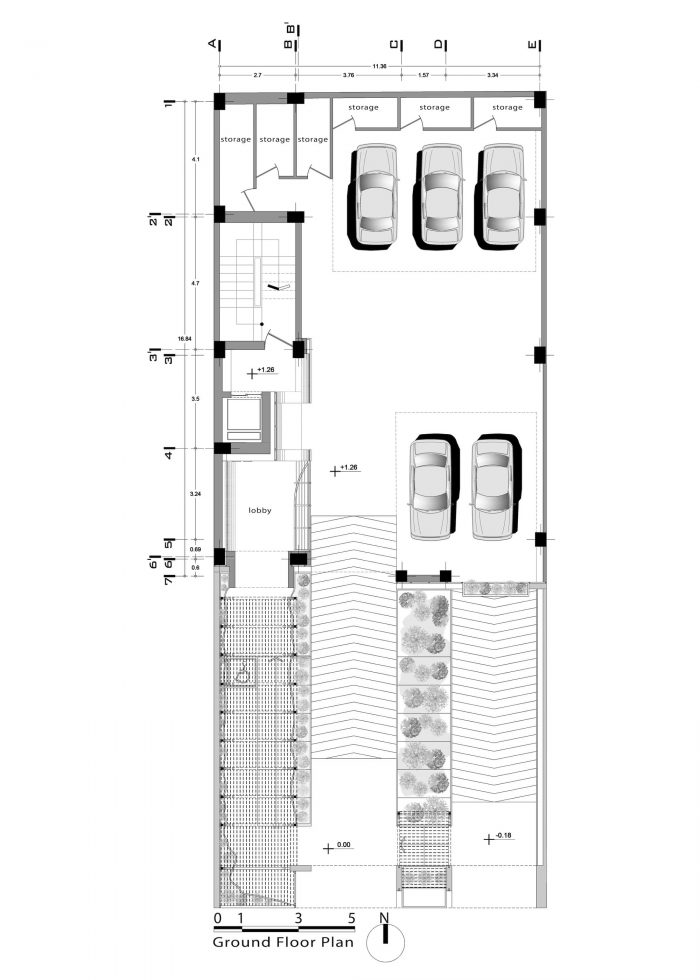
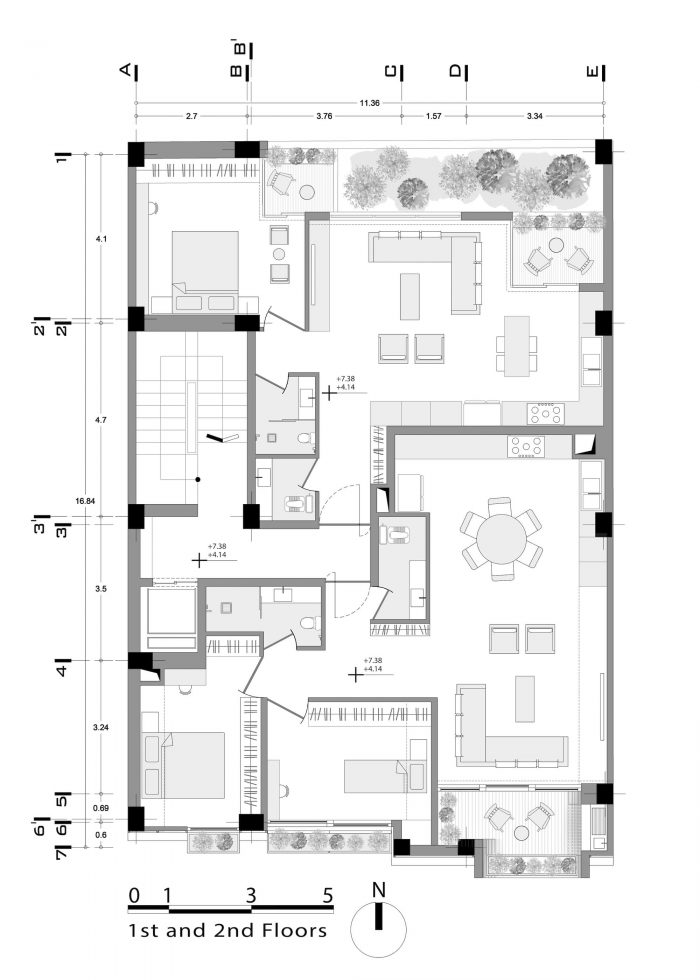
大楼总共有八层,包括两层地下停车场和六层住宅。两个住宅楼层,包括每层两个单元(一室和两室);四个楼层,包括每层一个单元(三室)。由于现有的街道和人行道,在底层提供绿色植物有一些限制。因此,植被被分配在不同的高度(阳台),以避免阻碍交通的流动。
There are a total of eight floors in the building, including two underground parking floors and six residential floors. Two residential floors, including two units per floor (one and two bedrooms); and four floors, including one unit per floor (three bedrooms). There were a few constraints to providing greenery on the ground floor due to the existing streets and pedestrian pathways. Therefore, vegetation was assigned at various heights (balconies) to avoid obstructing the flow of traffic.





















Architects: Ashari Architects
Area : 1300 m²
Year : 2022
Photographs :Khatereh Eshghi
Manufacturers : Azarakhsh Brick
Lead Architects : AmirHossein Ashari
Structure Engineer : Tachra Construction Group
Mechanical Engineer : Tachra Construction Group
Design Team : Ali Attaran, Zahra Jafari, Ehsan Shabani, Zahra Rahimi
Supervision : AmirHossein Ashari
Graphic : Zahra Jafari, Sara Nazemi
3 D Renders : Ehsan Shabani
Coordinator : Asma Sirjai asl
Client : Rohollah Safari
Program / Use / Building Function : Residential Apartment
Executive Team : Tachra Construction Group
City : Shiraz
Country : Iran