位于柏林的Kraupa-Tuskany Zeidler艺术画廊已经超出了它开始时的小空间,作为一个年轻的企业,它希望在新的位置上有更严肃的东西,但同时仍然是实验性的。
The art gallery Kraupa-Tuskany Zeidler in Berlin outgrew its small space where it started as a young business wanting something more serious but at the same time still experimental for its new location.




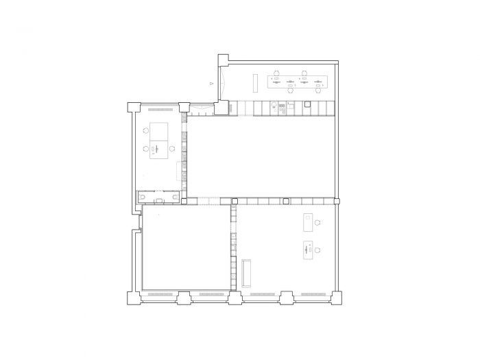
每项活动都应该有自己的空间,如几个展览室、一个入口、一个陈列室、一个会计和员工办公室以及一个会议空间。它们应该被分开,并保持清洁和美观,但它们之间可能有联系。
Each activity should have its own space, such as several exhibition rooms, an entrance, a showroom, an accountant and staff office, and a meeting space. They should be separated and stay clean and presentable, but with possible connections between them.


这种划分是由一个木制的空间结构建立的,它包括画廊的所有功能特征,如艺术品储存、书架、衣帽间和厨房。它可以容纳书架和柜子,同时用于展示艺术品。它的深度和结构格局不同,取决于它所包含或可以容纳的内容。
The division is established by a wooden spatial structure, which includes all functional features of a gallery, such as art storage, bookshelves, cloakroom, and kitchen. It can hold shelves and cabinets and at the same time is used for the presentation of art. Its depth and structuring grid differ, depending on what it contains or could accommodate.




如果有必要,它可以承载一面白墙,或者形成一个深层的展示柜,用于展示。呈现媒体艺术的电源插座和技术设备可以在这里直接整合。
It can, if necessary, carry a white wall or form a deep showcase for a show. Electrical outlets and technical equipment for presenting media art may be integrated here in a straightforward way.

作为概念的一部分,鼓励在两个画廊空间之间以及画廊和办公空间之间建立联系。将结构的一面或两面开放,可以大大改变空间配置和气氛。结构本身构成了画廊的永久部分。根据每个展览的概念和参展艺术家的情况,墙面覆盖物、水平分割和额外的配件可以被改变和扩大。
Connections between the two gallery spaces as well as between the gallery and office spaces are encouraged as part of the concept. Leaving the structure open on one or both sides changes the spatial configuration and atmosphere significantly. The structure itself forms the permanent part of the gallery. Wall claddings, horizontal division, and additional fittings may be changed and expanded, depending on the concept of each exhibition and the exhibiting artists.






Architects: Meyer-Grohbrügge
Area : 300 m²
Year : 2017
Photographs :Thomas Meyer-Ostkreuz
Lead Architect : Johanna Meyer-Grohbrügge
City : Berlin
Country : Germany