医学系的扩建,位于克里姆林-比塞特大学医院所在地的中心,表达了其构成法国研究和教育的卓越中心,向城市和科学界开放的雄心。它位于一个主导点上,享有巴黎和其郊区的特殊全景。建筑物的形状采用了植入地点的几何形状,并创造了一个多面体,其圆角与现有建筑进行了对话。
The extension of the Faculty of Medicine, at the heart of the Kremlin-Bicêtre University Hospital site, expresses its ambition to constitute a center of excellence for French research and education, open to the city and the scientific world. Located on a dominant point, it enjoys an exceptional panoramic view of Paris and its suburbs. The shape of the building takes up the geometry of the site of implantation and creates a polyhedron whose rounded corners dialogue with the existing architecture.




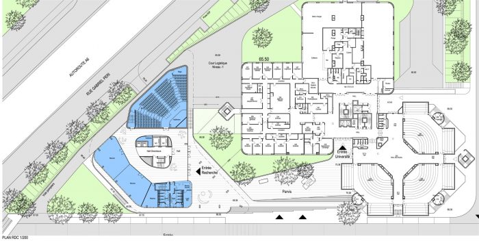
这里特别注重生活质量:每个单元的中心都有休闲和放松的空间。研究所的主入口尽可能地靠近现有的教学和研究大楼,并与CHU的入口相对。前院的布置创造了三个机构之间的联系,创造了一个真正的公共空间,一个学生、研究人员和医生之间的聚会和交流场所。
Particular attention is paid to the quality of life: spaces for conviviality and relaxation are grouped together in the center of each unit. The main entrance to the institute is positioned as close as possible to the existing teaching and research building and opposite the entrance to the CHU. The forecourt, laid out to create the link between the three establishments, creates a real public space, a place of conviviality and exchanges between students, researchers, and doctors.


空间。这个星形的几何形状,从场地的形状推导出来的,发展了最佳的立面线条,照亮了分布在建筑外围的六个相同的实验室和办公室模块。位于建筑中心的剩余空间是 "服务 "室。空间组织是紧凑的、统一的,并且在表面和流通方面是经济的。房间的连续性允许各部门之间的边界变化,确保办公室和实验室之间的互换性,保证未来的发展。
Space. This star-shaped geometry, deduced from the shape of the site, develops the optimal façade line to illuminate six identical laboratory and office modules distributed around the periphery of the building. The remaining space at the heart of the building houses the "service" rooms. The spatial organization is compact, unitary, and economical in terms of surface and circulation. The continuity of the rooms allows the borders between sectors to varying, ensuring interchangeability between offices and laboratories and guarantees future developments.


形状和材料。外墙使用的玻璃和透明的抛光铝与光线相映成趣,增强了建筑的雕塑感。就像布兰库西的抛光大理石雕塑一样,该建筑在其曲线中得到反映,并根据外面的光线而改变外观。它的曲线与医学院和医院的环境相呼应,将场地上存在的词汇转化为现代形式。在穿孔铝材中,基岩和终端占据了计划的有机主题。第五个立面,即屋顶的处理,是经过精心设计的,以确保技术设备的高质量整合,并保持对远方的视野。
Shape and Materials. The glass and clear polished aluminum used in the façade plays with the light and enhance the sculptural form of the building. Like a polished marble sculpture by Brancusi, the building is reflected in its curves and changes appearance depending on the light outside. Its curves echo the environment of the medical school and hospital, translating the vocabulary present on the site into a contemporary form. In perforated aluminum, the bedrock and the termination take up the organic motif of the plan. The fifth façade, the treatment of the roof, is carefully designed to ensure the quality integration of technical equipment and to preserve the view towards the distance.













Architects: PARGADE Architecte
Area : 7100 m²
Year : 2022
Photographs :Charly Broyez
Manufacturers : Alucobond, Schüco
Lead Architect : Jean-Philippe Pargade
Engineering : EDEIS
Economist : Voxoa
City : Le Kremlin-Bicêtre
Country : France