这座建于19世纪末20世纪初的旧工棚,经过全面的翻新,已经重新焕发了生机。原有的钢结构和铸铁柱子显示了该建筑以前的功能。它们被保留下来,并构成了这座位于安特卫普更深层的历史建筑的核心基础。
A former workhouse, dating from the end of the 19th century/early 20th century, has been revived through a complete refurbishment. The original steel structure and cast-iron columns reveal the previous function of the building. They have been preserved and formed the central basis of this deeper situated historical building in Antwerp.


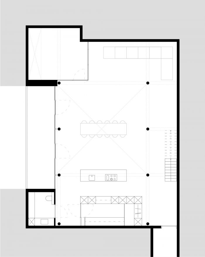
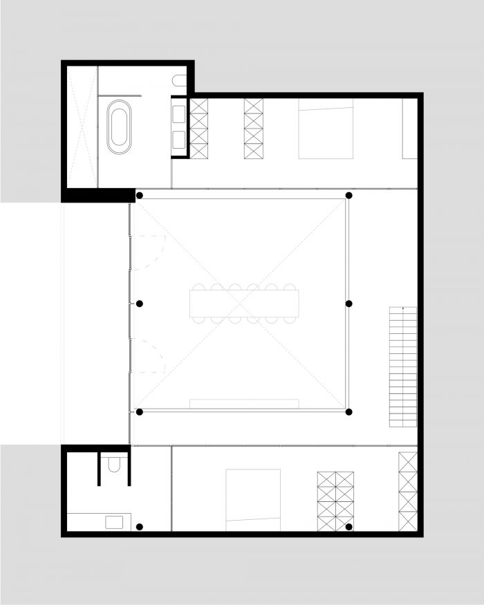
由于商业空间或办公空间不被允许,因此选择了创造一个灵活而豪华的复式阁楼公寓。一个完全开放的空间被实现了,通过中央的两层空间实现了视觉和空间上的联系。各个功能之间只用透明的墙壁隔开。
The choice was made to create a flexible and luxurious duplex loft apartment, as a commercial space or office wasn’t allowed. A completely open space was realized, with a visual and spatial connection through the central two-story space. The functions are only separated from each other by transparent walls.



自然光在所有空间中漫射,并通过增加天窗来加强。该设计在材料化、技术和能源舒适度方面都实现了高质量的完成。空间为未来任何类型的居民提供了空白的画布。
Natural light diffuses through all spaces and is enhanced by the addition of skylights. The design was realized with a high-quality finish in terms of materialization, techniques, and energy comfort. Space offers a blank canvas for any type of resident in the future.





































建筑师:STAM architecten
面积: 343 m²
年份:2020年
摄影:Yannick Milpas
制造商:Cassina、EDRA、FRANKE、Nemetschek、Diresco、Duravit
设计团队:Els Schoenmaekers, Yasmijn Van Winkel, Carolien Potter, Karolien Van Put.
合作者:Martha bvba
城市:安特卫普
国家:比利时Architects: STAM architecten
Area: 343 m²
Year: 2020
Photographs: Yannick Milpas
Manufacturers: Cassina, EDRA, FRANKE, Nemetschek, Diresco, Duravit
Design Team:Els Schoenmaekers, Yasmijn Van Winkel, Carolien Potter, Karolien Van Put
Collaborators:Martha bvba
City:Antwerp
Country:Belgium