一座亭子式的房子是由拉脱维亚古老的农庄--viensēta提供的。作为一个度假屋,房子没有多余的东西,鼓励业主与自己、对方和自然环境的联系。它坐落在高加国家公园人烟稀少的地方,在那里,路过的野生动物比人类更常见。大自然照顾到了娱乐,启发和挑衅。生活不仅仅发生在室内,它在外部和内部之间流动,露台和窗户为它提供了便利。这是一个令人心旷神怡的周末休闲场所。
A pavilion-style house informed by the ancient Latvian farmstead – the viensēta. Designed as a holiday home, the house is free of excesses and encourages the owners’ connection to themselves, each other and the natural surroundings. It sits within a sparsely populated area of Gauja National Park where passing wildlife is more common than humans. Nature takes care of entertainment, inspires and provokes. Life doesn’t just take place indoors, it flows betweeen the exterior and interior with the terrace and windows facilitating. This is a mind-freeing weekend retreat.




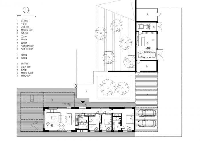
由于传统的农庄有一个中央院子,与住宅及其附属建筑接壤,我们引入了一个梯田式花园,以取代业主不需要的谷仓和棚子。花园中隐藏着一个车库。这在景观中创造了一个隐私口袋,加强了归属感和所有权。该物业成为家庭自己的小宇宙。
Since traditional farmsteads have a central yard bordered by the home and its outbuildings, we introduced a terraced garden in lieu of a barn and shed, which the owners didn’t need. The garden conceals a garage. This creates a pocket of privacy within the landscape and strengthens the sense of belonging and ownership. The property becomes the family’s own little universe.



该建筑有一个木材和金属框架,我们在外墙和内部重复了这种材料的组合。墙面是经过焦油处理的松木,露台是落叶松。它的灰色方案的灵感来自于老化的木材和石头--这是农村地区常见的景象。这座房子有机地坐落在景观中,为它的故事做出贡献,而不是急于让人看到。就像被列入拉脱维亚文化典籍的传统农庄。
The building has a timber and metal frame, and we repeated this combination of materials in the facade and interior. Cladding is tar-treated pine and decking is larch. Its grey colour scheme is inspired by aged timber and stone - a common sight to see in rural areas. The home sits organically in the landscape, contributing to its story, rather than crying out to be seen. Like the traditional farmsteads included in Latvia’s Cultural Canon.

与历史住宅的另一个相似之处是住宅的许多功能都是定制的。我们与熟练的工匠合作,他们将我们的想法变为现实,如厨房和货架单元、床和沙发。这些都是与精选的设计作品相搭配的,如悬挂的壁炉。没有一件是多余的。一切都有目的。
Another similarity with historical homes is the custom-made nature of many of the home’s features. We worked with skilled craftsmen who brought our ideas to life such as the kitchen and shelving units, bed and couch. These are paired with select design pieces like the hanging fireplace. No piece is redundant. Everything has purpose.


景观设计不是事后的想法。我们与一位景观设计师密切合作,以确保所有家居元素的整合。
Landscaping was not an afterthought. We worked in close partnership with a landscape architect to ensure the integration of all the home's elements.














































Architects: Open AD
Area: 182 m²
Year: 2019
Photographs: Alvis Rozenbergs
Manufacturers: Focus, DCW EDITIONS, Ferm Living, NORR11, Herzbach, Lasita Logi, lett
Lead Architect: Zane Tetere-Sulce
Architect:Jelena Ozolina-Jelisejeva
Designer:Beatrise Dzerve and Zane Araja
Main Construction Team:Delta Construction
Landscape Architecture:Landshape
Carpentry:Uldis Ceplis
Country:Latvia