这个由Kavellaris Urban Design改建的项目原本是一个传统的未签署的商业办公空间,很少考虑到环境和设计。客户的主要目标是满足他们目前的空间需求,同时为未来创造可适应的空间。我们有兴趣为现有的空间提供一个对立面,同时也为传统的企业工作美学提供一个替代的态度和理念。我们的目标是建立和表达一种替代性的建筑语言,以反映这种设计理念,并利用该项目作为一个实验性的画布。所有现有的材料都被剥离到核心结构,所有应用的表面装饰都被移除,展示了混凝土天花板和砖墙,为我们的干预提供了背景。
This converted inner city design studio was originally a conventional undersigned commercial office space with little regard for the environment or design. The client’s primary objective was to satisfy their current spatial requirements and simultaneously create adaptable spaces for the future. We were interested in providing a counterpoint to the existing space, but also to provide an alternative attitude and philosophy to the conventional corporate working aesthetic. Our objective was to establish and express an alternative architectural language that reflected this design philosophy and utilised the project as an experimental canvas. All existing material was stripped back to the core structure and all applied surfaces finishes were removed showcasing concrete ceilings and brick walls which provided a backdrop for our intervention.



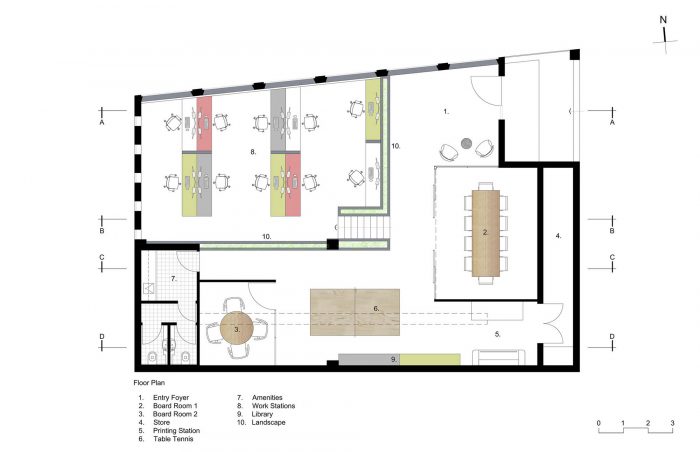
主要的重点是将环境可持续发展的非建筑材料和施工方法纳入其中,这提供了新与旧、制造与有机之间的并置,这也是整个室内的中心主题。现有的开放式双高楼层空间和夹层为我们提供了一个机会,在办公空间的私人和公共区域之间创造一个分离,同时保持整个空间的关键视觉连接。对日常活动和建筑的制作以及建筑本身的怀疑,在这个空间的所有居住者和使用者面前展示出来。这种公共和私人工作空间的交流和重新定义是办公室类型的一个关键的文化转变。底层办公室是灵活的空间,模糊了公共和私人之间的界限,为客户和员工创造了可交换的视觉活动。一个具有定义意义的自来水景观边界为整个开放空间提供了一个名义上的分隔,并与混凝土和钢铁元素形成了柔和的对比。绿化带也改善了居住者的空气质量。
The primary focus was to incorporate environmentally sustainable non architectural materials and construction methodologies which provided juxtaposition between old and new, manufactured and organic which also played a central theme throughout the interior. The existing open plan, double heighted floor spaces and mezzanine provided us with an opportunity to create a separation between the private and public areas of the office space whilst maintaining critical visual connections throughout the entire space. The sceptical of the daily activity and the making of architecture, as well as the architecture itself is on display for all occupants and users of the space. This exchange and redefining of public and private work spaces was a critical cultural shift for the office typology. The lower level office is flexible spaces that blurred the boundaries between the public and private and created exchangeable visual events of activity for clients and employees. A defining self-watering landscaped landscape border provides a notional separation throughout the open plan and provides a soft contrast to the concrete and steel elements. The green strip also improves the air quality for occupants.

为该项目选择的所有材料都有两个重要的实施标准。第一是它们在环境上是可持续的,而且也不需要进行涂饰,第二是它们是专有的,而且容易获得,以保持项目的成本降低。几乎所有的家具、办公桌、会议室桌子、细木家具、书架和照明都是设计和定制的,以保持设计语言的连续性。董事会会议室的甲板是由层压LVL木梁和混凝土管基构成的。任务照明是由剑麻绳定制的,它也被用作墙面装饰。这些材料提供了新与旧、制造与有机的并置,也是对一般商业工作环境的批评。该项目旨在为室内工作空间设计、可持续发展提供设计选择,并最终重新审视我们的文化态度。
All the materials selected for the project had two important criteria for their implementation. The first was that they were environmentally sustainable and also did not require an applied finish, and the second was that they were proprietary and readily accessible to keep the cost of the project down. Almost all of the furniture, desks, board room tables, joinery, shelves and lighting were designed and custom made to maintain the continuity of the design language. The board room decks were constructed from laminated LVL timber beams with concrete pipe bases. The task lighting was custom made from Sisal rope which was also used as a wall finish. The materials provided a juxtaposition between the old and new, manufactured and organic and also is a critique to the generic commercial work environment. The project seeks to provide design alternatives for interior workspace design, sustainability and ultimately re-examine our cultural attitude for its vernacular





















Architects: Kavellaris Urban Design
Year: 2014
Photographs: Peter Clarke
City:CREMORNE
Country:Australia