新的阿伦文化火车站(Kulturbahnhof Aalen)将阿伦的工业历史和二十一世纪的建筑风格结合在一起。以极大的敏感度,历史上的建筑碎片被成功地整合到了今天的建筑中。在过去,现在被称为阿伦市镇的区域,除其他外,被铁轨占据。作为城市内部扩张的一部分,文化宫占据了中心位置:该建筑现在容纳了一个电影院、一个剧院、音乐学校、高质量的文化活动功能厅和餐饮场所,旨在对整个地区产生辐射效应。
The new Kulturbahnhof Aalen brings together Aalen’s industrial history and twenty-first-century architecture. With great sensitivity, the historical building fragments have been successfully integrated into the present-day architecture. In the past, the area now known as Aalen’s Stadtoval was occupied, among other things, by railway tracks. As part of the inner-city expansion, the Kulturbahnhof takes a central position: the building, which now accommodates a cinema, a theatre, the music school, high-quality function halls for cultural events, and premises for catering, is intended to have a radiant effect throughout the region.



在2014年的一场大火之后,在现场仍然可以找到几个历史建筑群的碎片,它们有着独特的砂岩外墙和短小的十字屋檐。设计的指导思想是谨慎地保护这些遗产,并进一步将其发展成为21世纪的前瞻性文化中心。
After a fire in 2014, fragments of several historical groups of buildings with a distinctive sandstone façade and short cross gables could still be found on the site. The guiding idea behind the design was to carefully preserve this heritage and to further develop it into a forward-looking cultural center for the 21st century.


被广泛破坏的外墙以一种风格化的方式被替换,使用彩色清水混凝土--并且在可能的情况下,恢复了历史特征。短边屋檐的屋顶也根据历史设计进行了重建。相比之下,纵向的屋檐采用了不同的概念:它被一个细长的长方体所取代,该长方体由折叠的穿孔板包覆,从而创造了一个与南部邻近地区的城市边缘的空间参照。历史上的砂岩立面具有装饰性、手工制作和巨大的外观,与之相比,叠加的长方体是简单和克制的。
The extensively destroyed façade was replaced in a stylized manner using colored fair-faced concrete — and where possible, the historical character was revived. The roofs of the short-side gables were also rebuilt according to the historical design. The longitudinal gable, by contrast, followed a different concept: it was replaced by an elongated cuboid-shaped volume clad in folded perforated plate, thereby creating a spatial reference to the urban edges of the neighboring area to the south. In contrast to the historical sandstone façade, which has an ornamental, handcrafted, and massive appearance, the superimposed cuboid is simple and restrained.

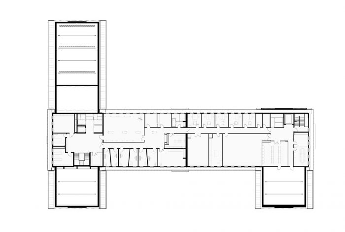
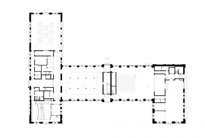
历史上的立面提供了一个慷慨的空间的外壳。新的盒子被放置在这个完全被掏空的空间内,为不同的用途划分了内部区域。这些盒子也支持和支撑了新的承重结构。大厅和公共用途被安置在老建筑中。音乐学校和戏剧工作室的房间被安置在新的体积,即立方体。这些 "服务于 "文化生产和教育的房间象征性地拱卫着对文化感兴趣的公众的表演舞台。对我们来说,重要的是为不同的文化场所创造一个真实和独立的氛围,如材料、窗户和可见的屋顶结构等历史组件。
The historical façade provides the shell of a generous space. New boxes were placed inside this completely gutted space, zoning the interior for different uses. These boxes also support and brace the new load-bearing structure. The large halls and the public uses are housed in the old building. The rooms of the music school and the theatre workshops are housed in the new volume, the cuboid. These rooms “serving” cultural production and education symbolically arch over the show stages for the culturally interested public. It was important to us to create an authentic and independent ambiance for the different cultural venues with historical components such as materials, windows, and visible roof construction.

根据阿伦镇的说法,以前分散在几个地方的不同文化场所现在共用一栋大楼,预计将有助于优化资源,集中协同效应,并确保长期节约成本。
According to the town of Aalen, the now shared building for the diverse cultural venues, which were previously spread across several locations, is expected to contribute to optimizing resources, pooling synergies, and ensuring cost savings in the long term.








Architects: a+r ARCHITEKTEN
Year: 2020
Photographs:Brigida González
Manufacturers: Bembé Parkett, Chemotechnik Abstatt GmbH, Dachziegelwerke Nelskamp, Moradelli, Nora
Landscape Architects: G+H Ingenieurteam GmbH
Electrical Engineer: Kummich & Weißkopf
Structure Engineers: Weischede, Hermann und Partner
Building Physics: GN Bauphysik
Design Team: Hellmut Schiefer, Simon Knöner, Sybille Schmid, Stefan Hofmann
Program / Use / Building Function: Public Building
Kitchen Planning: Planungsbüro Alfred Fischer
Geologist: Geotechnik Aalen GmbH & Co. KG
Fire Safety: Strobl Brandschutzplanung
City: Aalen
Country: Germany