对位于森林中的16世纪的房子进行修复,提供比利牛斯山脉北侧的壮丽景色。
Rehabilitation of a 16th-century house located in the middle of a forest, offering breathtaking views of the northern side of the Pyrenees.



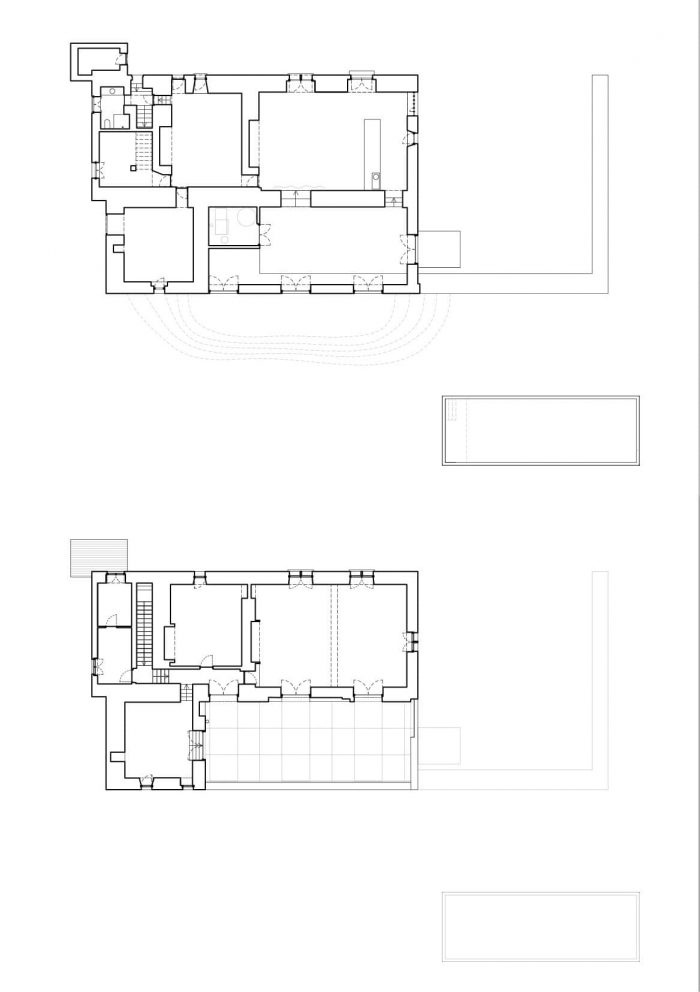
根据预算的限制和几乎一无所有的改造理念,干预措施集中在房子的东南部分。它被限制在一个最小的占地面积内,从根本上改变了与场地的关系--新的南立面现在是主要的,并改善了整个房子的性能:新的房间和宽敞的公共生活空间。
In tune with budgetary constraints and the idea of a transformation with almost nothing, the intervention is concentrated on the southeastern part of the house. It is limited to a minimal footprint that radically transforms the relationship with the site - the new south facade is now the main one - and improves the performance of the whole house: new rooms and generous open spaces for communal living.


三个标准定义了干预策略。
有选择地改造房屋。将所有的努力集中在房子的一个特定部分,即谷仓,以重新定义其整体功能。在一楼,谷仓被改造成一个大的客厅,房子围绕着它来组织。在一楼,新的公共露台向大景观开放。八个相同的开口被建立起来,以提供内部和外部之间的流畅交流,宽阔的视野,自然光和通风。
Three criteria define the intervention strategy:
Selective transformation of the house. Concentrate all efforts on a specific part of the house, the barn, in order to redefine its whole functioning. On the ground floor, the barn is transformed into a large living room, around which the house is organized. On the first floor, the new common terrace opens onto the great landscape. Eight identical openings are established to offer fluid exchanges between the interior and exterior, wide views, natural light, and ventilation.



最小居住容积的定义。为在冬季减少居住空间提供了可能:房屋的最小部分可以被加热,从而节省能源。
Definition of a minimum living volume. To give the possibility to reduce the living space during the winter period: a minimum part of the house can be heated, allowing energy savings.


以少胜多。将精力集中在特定的元素上:现有的谷仓墙,部分坍塌,被重建为旋风墙。丛林锤击的混凝土揭示了在现场发现的黄色和紫色的石块:现有的和重建的共存;在南方创造了慷慨的开口,并通过质量绝缘(通过地面加热和在外墙应用石灰麻的生物源系统)来实现热舒适;通过精心的实施,加强了普通的、廉价的和可管理的建筑元素:预制梁和板、混凝土块、现场浇筑的循环混凝土和一个带有生物过滤的天然游泳池。
More with less. To focus the efforts on specific elements: the existing barn wall, partially collapsed, is reconstructed as a cyclopean wall. The bush-hammered concrete reveals the yellow and purple stone blocks found on site: the existing and rebuilt cohabit; the creation of generous openings on the south, and thermal comfort by qualitative insulation (heating by the ground and bio-sourced system in lime hemp applied in the facade); the enhancement of the common, inexpensive and manageable building elements by a careful implementation: prefabricated beams and slabs, concrete blocks, cyclopean concrete poured on-site and a natural swimming pool with biological filtration.










Architects: Plan Común
Area : 430 m²
Year : 2021
Photographs :Maxime Verret
City : Saint-Beauzile
Country : France