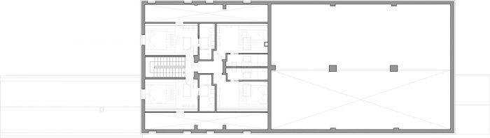
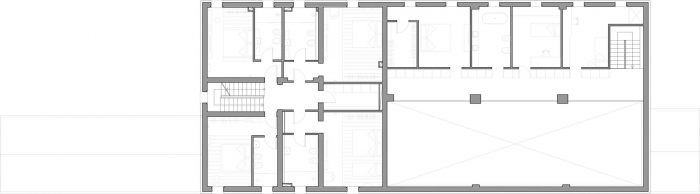
该项目涉及到恢复一个农业建筑,该建筑原本是为田地提供住所和服务设施。功能方案预见了11个带有私人浴室的房间,旨在为旅游者提供服务。
The project involves the recovery of an agricultural building originally hosting residence and service facilities for the fields. The functional program foresees 11 rooms with a private bathroom, intended for touristic hospitality.



这些空间被认为是一个安全的地方,一种灵魂的沟渠。
These spaces are thought of as a safe place, a sort of trench of the soul.

写在墙上的干草的重量和冲刷过的石膏上的碎片的存在,证明了将时间纳入建筑表面的敏感性,以便掌握材料的基本脆弱性。
The presence of the weighings of the hay written on the walls and the fragments on the washed-out plaster testify to the sensitivity to incorporate time within the surface of architecture so that to grasp the essential fragility of the materials.




对颓废之美的探索。在这里,我们最终发现自己在一个美丽的地方能够在不知不觉中受到教育。
An exploration of the beauty of decadence. Here we eventually find ourselves in a beautiful place able to educate unknowingly.

















Architects: Archiplanstudio
Area: 660 m²
Year: 2021
Photographs: GIUSEPPE GRADELLA
Manufacturers: Agape
Lead Architects: DIEGO CISI ARCHITETTO
City:Guastalla
Country:Italy