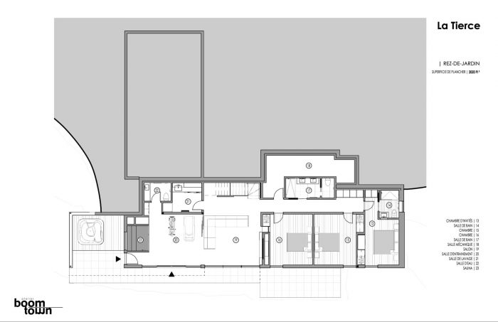
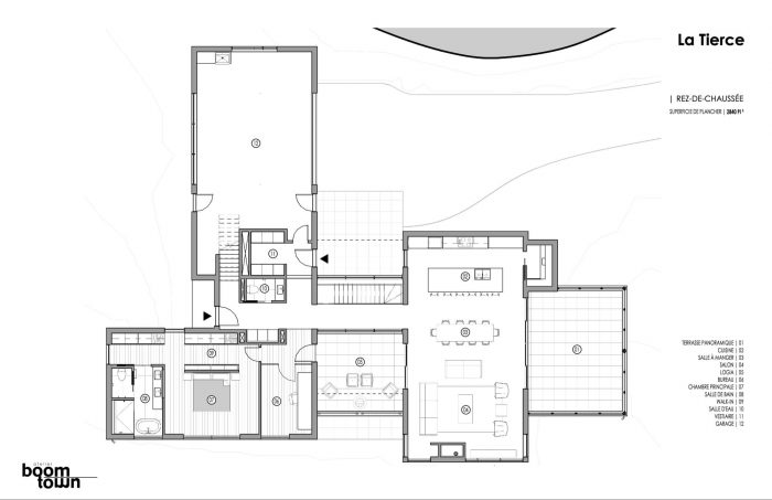
利用劳伦湖边缘的场地,这个住宅被固定和嵌入在一个倾斜的地段上。体量的部署允许与景观建立不同的关系,提供湖泊的全景和俯瞰,以及树木、林地或岩石悬崖的有趣景观。它是一个真正的环境观察站,既能提供一般的景色,又能提供特写。三个主要的体量,每个都有一个经典的类型和屋檐屋顶,容纳了建筑项目的核心,让人想起过去时代的农村建筑。像那些建筑一样,这些都是用氧化的雪松板衬托的。
Taking advantage of a site on the edge of a Laurentian lake, this residence is anchored and embedded on a sloping lot. The deployment of the volumes allows for a varied relationship with the landscape, offering panoramic and plunging views of the lake and interesting views of a tree, a wooded area, or a rocky cliff. It is a real observation post of its environment, providing both general views and close-ups. Three main volumes, each with a classic typology and a gable roof, house the core of the architectural program, recalling the rural constructions of a bygone era. Like those buildings, these are lined with oxidized cedar boards.




连接这个体积组成的空间的屋顶是平的。它的胶合木梁的结构被暴露出来,形成课程、运动和流通的空间。从那里,通过运动,从东到西,从北到南,从悬崖的岩石到天空,通过附近的雪松树冠,与场地有了联系。在那里,对这个地方的感知空间提供了多种方向和多样化的观点。这些空隙向南延伸到一个全景露台,向西延伸到一个凉亭,使居住者能够进入靠近上层生活空间的室外空间,从而使他们对这个地方的体验多样化,并加强他们与周围环境的关系。
The roof of the spaces linking this volumetric composition is flat. Its structure in glued laminated timber beam is exposed, forming the spaces of the course, the movement, and the circulation. From there, and through movement, there are connections to the site from east to west, from north to south, and from the rock of the cliff to the sky through the nearby canopy of cedars. There, a space of perception of the place offers multiple orientations and diversification of points of view. These voids extend into a panoramic terrace to the south, and a loggia to the west, allowing occupants to access outdoor spaces close to the living spaces on the upper level, thus diversifying their experience of the place and enhancing their relationship with the immediate environment.


其中两个体量被投射到通往下面湖泊的斜坡上。下面受保护的空间是自然高原上的户外露台,提供了另一种与环境相协调的新体验。尽管这些空间前面有茂密的植被覆盖,但通过穿过树木的粼粼波光和水的拍打,可以感受到湖的存在。这座房子与它的环境有着密切的关系。它通过悬崖和树木巧妙地从景观中浮现出来,而内部则被景观所告知和界定。
Two of the volumes are projected onto the slope leading to the lake below. The protected spaces below house outdoor terraces on a natural plateau, offering yet another new experience in tune with the environment. Despite a dense cover of vegetation in front of these spaces, the presence of the lake is felt through the shimmering and lapping of water filtering through the trees. The house is in a close relationship with its environment. It emerges delicately from the landscape through cliffs and trees, while the interior is informed and defined by that landscape.


该项目在其体量、建筑组件和材料选择的清醒中展开。它通过与自然和项目环境的亲密和多样化的关系,优先考虑其用户的福祉。该项目的社会生态价值也通过整合十口地热井为其空调和供暖系统提供能源而得到具体体现。它的朝向和某些屋顶部分的延伸,允许利用或限制太阳的热增益。尽管它的表面积很大,但该住宅的能源消耗将是适度的。当地的产品和材料被用于墙体覆层和胶合板结构等。
The project unfolds in the sobriety of its volumetry, its architectural components, and the choice of materials. It prioritizes the well-being of its users through an intimate and diversified relationship with nature and the environment of the project. The socio-ecological values of the project are also concretized by the integration of a system of ten geothermal wells to provide the energy for its air conditioning and heating systems. Its orientation, and the extension of certain roof sections, allow for the harnessing or restriction of the sun's thermal gains. Despite its large surface area, the energy consumption of this residence will be modest. Local products and materials are used, among others, for the wall cladding and the glulam structure.












Architects: Atelier BOOM-TOWN
Year: 2023
Photographs:Raphaël Thibodeau
Manufacturers: CIOT, Fabelta, Juste Du Pin, Nordic Structures, Ramacieri Soligo, Unik Parket
General Contractor: Bois & Nature Construction
Country: Canada