房子巧妙地与周围的松树林融为一体,融入现有的空间环境,同时最大限度地保持了周围和中间的绿色植物。树林中的单层结构创造了一个离散而宁静的水平环境,没有任何夸张的企图来建立自己--它是景观的一个自然部分。
The house delicately integrates with the surrounding pine forest, blending into the existing spatial context while maintaining a maximum amount of greenery around itself and in between. The single-story structure in a wooded area creates a discrete and serene horizontal setting without any exaggerated attempt to establish itself – it is a natural part of the landscape.



通过避免使用门槛,在内部和外部领域之间创造了一种有意义的、真诚的关系。日常使用的房间与周围的地面是平的。通往由 "鸟嘴 "遮蔽的露台的玻璃隔断进一步模糊了内部和外部空间的界限。
A meaningful, sincere relationship between the inner and outer realms is created by avoiding the use of thresholds. The rooms that are used daily are level with the surrounding ground. Glass partitions opening to terraces shaded by ‘beaks’ further haze the boundary between interior and exterior space.



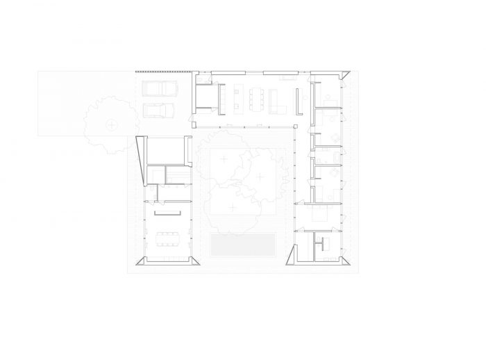
U型结构与L型生活区和I型公共设施空间相结合。这两个单元由一个有顶棚的入口、服务和停车区连接。一个静止的、无风的内院,南面的阳光照射在体量之间,被三面笼罩。
The U-shaped structure is combined with L-shaped living quarters and I-shaped utility space. The two units join by a canopied entrance, service, and parking area. A still, windless inner courtyard with southern exposure to the sun lies in between the volumes, enveloped by three sides.


住宅单元有一个开放的厨房和客厅区域,有一个办公室隔断,两个较小的卧室有一个共用的浴室,一个主卧室有一个浴室和衣柜,一个技术室,和一个健身室。厨房和客厅通向位于内部庭院的露台。卧室则通向建筑东侧的露台。公用设施大楼是桑拿房、洗衣房、桑拿前厅和较大的存储空间。
The dwelling unit has an open kitchen and living room area with an office partition, two smaller bedrooms with a shared bathroom, one master bedroom with a bathroom and wardrobe, a technical room, and a workout room. The kitchen and living room open to the terrace situated in the internal courtyard. The bedrooms open to the terrace on the eastern side of the building. The utility building houses the saunas, the washing room, the sauna vestibule, and larger storage space.

所选择的材料支持建筑和森林环境之间的融合。外部装饰是涂成黑色的木板和浇铸在框架中的混凝土整体,具有相同的轮廓,在两种材料之间创造了一种二元而又和谐的融合。
The chosen materials support the fusion between the buildings and the forest milieu. The exterior finish is wooden boarding painted black and concrete monolith cast in framework with the same profile, creating a dualistic yet harmonious fuse between the two materials.

覆盖着黑色木板的三角形露台侧墙也是隐藏的存储空间,可以存储户外设备,同时隐藏户外水龙头、游泳池控制装置、雨水管道等。建筑物的技术通信解决方案在地板下,使墙壁和天花板上的混凝土表面能够干净地暴露出来。
The triangular terrace sidewalls covered with black boarding also serve as hidden storage places, enabling storage outdoor equipment while concealing outdoor water faucets, the pool control device, rainwater pipes, etc. The technical communications solutions of the building are beneath the floor, enabling clean exposition of the concrete surfaces on walls as well as ceilings.














Architects: KUU arhitektid
Area : 225 m²
Year : 2020
Photographs :Tõnu Tunnel
Lead Architect : Joel Kopli
Construction Design : Mapri Ehitus
Concrete Works : Evocon Grupp
City : Pringi
Country : Estonia