世界著名的英国音乐喜剧明星比阿特丽斯-利利(Beatrice Lillie)的出生地位于多伦多市中心,已有一个多世纪的历史,现在正重新焕发活力,扮演着一个新的角色。出于对曾经居住在那里的女演员的尊重,这所房子继承了一种天赋:在生活在同一皮肤下的同时扮演新的角色。
The Birthplace of the world celebrated star of English Musical Comedy, Beatrice Lillie known as Lady Peel, is over a century old, located in downtown Toronto, is now rejuvenated and playing a new character. With respect for the actress who once lived there, the house inherits a talent: playing a new role while living in the same skin.



这座房子的改造采取了一种对社区和邻近建筑的负责任的方法,将改造的重点放在内部空间,尽量减少对外部立面的改造。外墙的改造仅限于小心翼翼地扩大窗户,并暴露出以前包层下的砖块结构。
The reformation of the house takes a responsible approach towards the neighborhood and the adjacent buildings by focusing the transformation on the interior spaces and minimizing it on the exterior façade. The exterior alterations are limited to the careful enlargement of the windows and the exposure of the brick structure underneath the previous cladding.

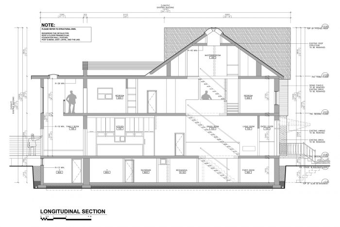
60'x15'的房子给了建筑师一个强调空间的线性的机会。通过消除平面图中不必要的元素,房子被转化为连续的开放空间,自然光在其中进行柔和的航行,夸大了房间的长度。
The 60’ x 15’ house gives the architect an opportunity to emphasize on linearity of spaces. By eliminating the unnecessary elements in the floor plans, the house is transformed into continuous open-concept spaces in which natural light makes a soft voyage and exaggerates the length of the rooms.

地面上长长的、破碎的、黑暗的维多利亚式室内空间现在变成了现代的白色和通风的连续空间,厨房和餐厅里有足够的裸露砖墙,提醒我们房子的起源。封闭的长条形楼梯曾经是底层室内房间之间的物理和视觉障碍。 现在,它被转化为一个轻盈和开放的结构,在空隙中循环,不仅在底层空间之间,而且在所有楼层之间创造了一个动态的联系。
The long, broken, and dark Victorian interior spaces on the ground level are now contemporary white and airy continuous spaces with just enough exposed brick wall in the kitchen and dining room to remind us of the origins of the house. The enclosed long and linear staircase used to be both a physical and a visual barrier between the interior rooms on the ground level. Now it is transformed into a light, and open structure circulating around voids and creating a dynamic connection between not just the ground floor spaces, but also all the levels.

在二楼,卧室和家庭办公室通过一座桥连接起来,可以俯瞰楼梯和餐厅。在三楼的阁楼上,有一间独特的现代主卧室,里面有一个独立的浴缸和一个直接通往私人露台的通道,屋顶结构再次暴露出来,提醒人们它的过去。
On the second floor the bedrooms and the home office are connected with a bridge overlooking the stairs and the dining room. A unique modern master bedroom with a freestanding tub and a direct access to a private deck is on the third floor, the attic, where the roof structure is exposed once again as a reminder of its past.





Architects: Atelier RZLBD
Area : 3000 ft²
Year : 2012
Photographs :borXu Design
Construction : FC Asset Management Inc.
Structure : Hossein Azargive
Architect In Charge : Reza Aliabadi
Proyect Team : Lailee Soleimani, Ehsan Zareian
City : Toronto
Country : Canada