湖上之家位于智利南部的兰科湖上,距离首都地区950公里。坐落在湖边,夏季气温炎热,但冬季也有雨水和潮湿,温度可降至4℃。作为一个来自圣地亚哥的年轻家庭的第二个家,它被设计为一个避难所,并在夏季和冬季促进放松。
The House on the Lake is located in the south of Chile, on Ranco Lake, 950 km from the metropolitan region. Situated on the shores of the lake, with hot temperatures in summer but also rain and humidity in winter with temperatures that can drop to 4°C. Conceived as a second home for a young family from Santiago, it was designed to serve as a refuge and promote relaxation both in summer and winter.



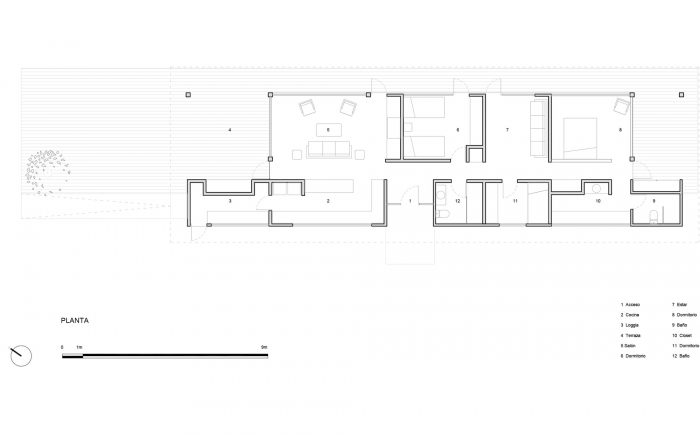
该方案被配置在一个单层,有一个矩形的平面图和一个中央走廊,优先考虑卧室东面的湖景和东北面的公共空间,在冬天寻求太阳的进入。建议用桩将一块大板从地面抬起,作为连接各围墙的平台,这将促进家庭聚会和室外生活的进行。因此,通过带有坡度和屋檐的屋顶投影,在内部和外部之间产生了覆盖面的中间空间,以保护夏季的阳光和直接的雨水。这个大的露台板在视觉上与屋顶相关,就像2个配置内部空间的水平平面。
The program is configured on a single level, with an rectangular floor plan and a central corridor, prioritizing views of the lake to the east for the bedrooms and common spaces to the north-east, seeking the entry of the sun in winter. A large plate raised from the ground by means of piles was proposed. a terrace to connect the enclosures, which would promote family gatherings and life in the outside. Thus generating intermediate spaces between the interior and the exterior with covered surfaces through the projection of the roof with a pitch and eaves to protect from the summer sun and direct rain. This large terrace plate is visually related to the roof, like 2 horizontal planes that configure the interior space.


体积在概念上是简单和朴素的,没有建筑上的矫揉造作,允许在这个偏远的地方进行控制和有效的建设。遵循该地区的建筑传统,房子的结构完全由当地的松木构成和覆盖。该设计试图尽可能少地干预该地,用高跷支撑,以便不产生大的地球运动,不改变自然环境。它被恭敬地放置在树木中,没有移除它们。因此它可以与它们融为一体,试图对这个地方和生态系统产生较少的视觉影响。
The volume is conceptually simple and austere, without architectural pretensions, allowing a controlled and effective construction for this remote place. Following the construction traditions of the area, the house was structured and covered entirely with local pine wood. The design seeks to intervene as little as possible in the site, supported on stilts so as not to generate large earth movements and not alter the natural environment. It was respectfully placed among the trees, without removing them. so it can blends in with them, trying to generate less visual impact on the place and the ecosystem.


















Architects: blaq arquitectos
Area : 140 m²
Year : 2021
Photographs :Teresa Fischer
Manufacturers : Fanaloza, Imperial, MK
Lead Architects : Benjamin Litvak, Felipe Pommerenke
City : Lago Ranco
Country : Chile