湖边别墅是一个放松的地方,可以享受安静、和平和被立陶宛Moletai地区古老森林包围的清澈湖水的美丽。
Villa the Lake is a relaxing place to enjoy quite, peace and beauty of the crystal-clear waters of the lake surrounded by the ancient forests in Moletai region, Lithuania.



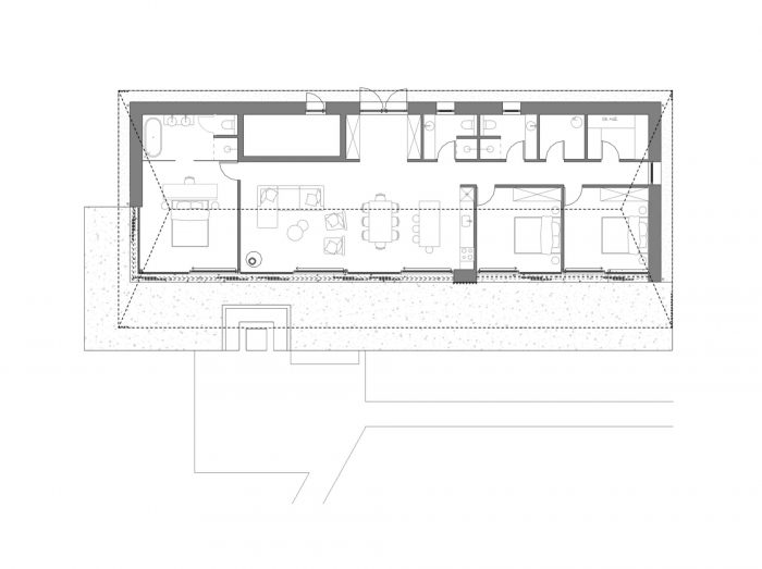
别墅由4间卧室、3间浴室和一个具有湖景的开放式用餐区/厨房/客厅组成。卧室也朝向湖面,从那里你可以进入带有火坑的混凝土露台。
The villa consists of 4 bedrooms, 3 bathrooms and an open-concept dining area/kitchen/living room with lake view. The bedrooms face out onto the lake too, from where you can access the concrete terrace with a fire pit.


住宅平面大致呈长方形,有切口和倾斜的屋顶,以一种雕塑般的方式组合在一起。这种布局优先考虑了与景观的联系和室内外的生活。大窗户和推拉门将房子的房间与混凝土露台、草地和码头连接起来。
Roughly rectangular in plan, the dwelling has cutouts and sloped roofs that combine in a sculptural way. This layout prioritises connection to the landscape and indoor-outdoor living. Large windows and sliding doors connect the house's rooms with concrete terrace, grassy property and the dock.


空间框架和简单的布局将人们的注意力引向湖面。
Spacial frames and simple layout direct the focus towards the lake.


建筑物的设计使用的材料与该地区的农业类型相呼应。该建筑使用了三种主要材料:构成许多墙壁的木材、用于裸露屋顶和某些墙壁的石板瓦以及用于露台的混凝土。
The building was designed with materials that echo the region’s agrarian typologies. Three primary materials were used for the building: wood, which forms many of the walls, slate tiles which are used in the exposed roof, as well as on certain walls and also concrete for the terrace.

简洁的线条、精致的细部设计和透明的组织,使自然光进入房屋,并与自然环境互动。
Clean lines, refined detailing, and transparency are organized to bring natural light into the house and interact with the natural context.





Architects: Devyni Architektai
Area : 145 m²
Year : 2021
Photographs :Leonas Garbačauskas
Manufacturers : Ruukki, Fibo, Reynaers, Steico
Lead Architect : Arunas Skrolis, Jurgita Liubartaite, Akvile Stonyte, Goda Serpytyte, Giedrius Atmanavicius, Marius Galdikas
City : Moletai
Country : Lithuania