场地分析和景观,其中周围的山脉非常突出,Drini i Bardhë河与Vërmicë人工湖和茂密的绿色植物,是草图中的关键元素,三者的重叠和交织给我们带来了建筑构图和概念的塑造,而这一概念被构思并带入了生活。建筑本身通过通常的建筑语言与周围环境紧密相连,在景观和建筑之间创造了共同的对话,是两者的完美共生,包括建筑本身内部的环境,它们流经中央中庭空隙。
Site analysis and landscape, where the surrounding mountains stand out, the Drini i Bardhë river with the artificial Lake of Vërmicë and the dense greenery, were the key elements in the sketches, where overlapping and interweaving of the three brings us the architectural composition and shaping of the concept which was conceived and brought to life. The building itself is closely connected to the surroundings through the usual language of architecture, creating a common dialogue between the landscape and the building, a perfect symbiosis of both, including the surroundings within the building itself which flow through the central atrium void.





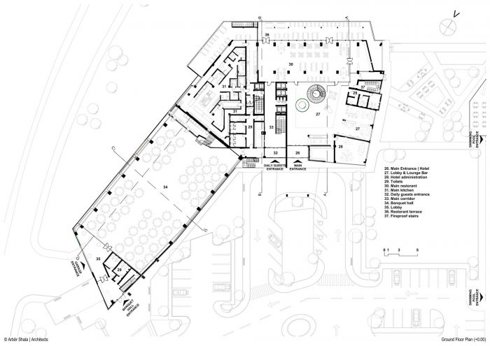
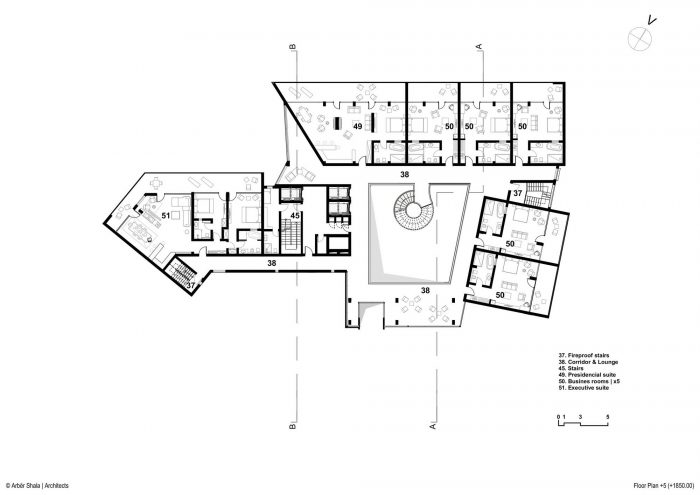
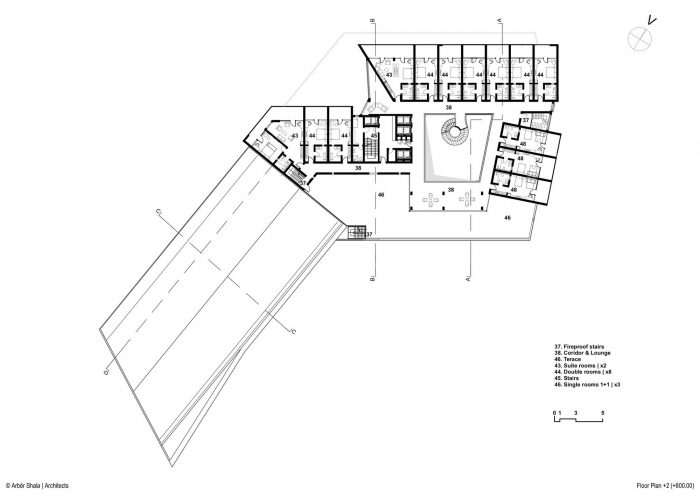
该项目完全遵守这类设施的程序要求和标准,前三层被安置为:大堂、主餐厅、宴会厅、会议室、水疗和保健、车库、酒吧和其他配套房间,而其他五层则有60个不同标准的房间,顶层则是自选餐厅。酒店的朝向给了所有房间以及空间和其他配套设施一个美妙的视野。酒店周围有丰富的绿色植物和各种休闲区。
The project fully adheres to the program requirements and standards for this type of facility, where the first three levels are housed as: lobby, main restaurant, banquet hall, conference rooms, spa & wellness, garage, bars and other accompanying rooms, while the other five levels have 60 rooms of varying standards and ala carte restaurant at the top level. The orientation of the hotel gives a wonderful view of all the rooms but also the spaces and other accompanying facilities. The area around the hotel is rich with greenery and various recreation areas.

水面上的景色被优先考虑,所以所有的配套空间包括房间都被赋予了对湖泊的视野和开放性。从设计 "湖畔酒店 "的第一阶段开始,我们就打算把它打造成科索沃西南部和普里兹伦市的一个非常重要的 "地标 "目的地,在Vermica湖地区,这个地区的景观令人印象深刻,通过这样的项目旨在吸引尽可能多的游客和度假者。通过这个项目,我们希望为周围的环境创造一些新的和创新的东西,同时也希望能改变它。
The view from the water is given priority, so all the accompanying spaces including the rooms are given the view and openness to the Lake. From the first stage of designing the “LAKESIDE Hotel”, we always intended to make it as very important “LANDMARK” destination in the south-western part of Kosovo and the city of Prizren, in the Vermica Lake area, an area that is impressive with its landscape and with such projects aims to attract as many visitors and vacationers. With this project we have aspired to create something new and innovative for the surrounding but also with the hope to transform it.

纯粹的几何形状,整体上以白色为主,使建筑成为周围环境的一个组成部分,仿佛从地面冒出来,顺着周围山脉的柔和轮廓,同时增加了游客在观察建筑、空间和周围景观时的情绪。将结构放置在地块的边缘,除了是结构和财务上的挑战外,也是为了表达建筑的主导地位,以及周围景观和建筑师整体愿景之间的关系。
The pure geometric shape, where white predominates as a whole, makes the building an integral part of the surroundings, as if emerging from the ground and following the gentle contours of the surrounding mountains and at the same time increases the visitor's emotions while observing the building, space and surrounding landscape. Placing the structure at the edge of the parcel, apart of being structural and financial challenge it was necessity in order to express the building predominance but also the relationship between the surrounding landscape and the architect vision as a whole.

结构系统的概念是基于建筑的骨架系统,钢筋混凝土柱子支撑在钢筋混凝土地基的板块上,作为主要结构元素,以及钢筋混凝土梁作为次要结构元素。外墙和内墙主要由砖砌成,并以生态的方式使用材料进行抹灰,直至最后的油漆。酒店主楼的外壳是16厘米的灰泥外墙,采用Low-e三层玻璃窗,而宴会厅和顶楼的外壳是由15厘米的绝缘干墙制成。
The concept of the structural system is based on the skeletal system of construction with reinforced concrete columns supported on the slab of reinforced concrete foundations as primary as well as reinforced concrete beams as secondary structural elements. The outer walls and inner walls are mainly from brick and plastered with ecological use of materials up to final paint. The outer shell of the hotel main building is 16cm Stucco façade with Low-e triple glazing windows, while the banquet hall and top flor outer shell is made from 15cm insulated drywalls.

顶层完全由钢结构制成,包括屋顶结构,其中10厘米的夹芯板被用作屋顶盖。玻璃是半结构的铝型材。中庭有12米x12的天空玻璃,由结构玻璃和铝型材组成。暖通空调系统由水泵、太阳能电池板、空气冷却器和水冷却器组成,卫生用水由3口水井、10万升水箱和公共供水系统提供,而这作为一个整体有助于改善环境和周围环境,也有助于降低运营成本。
The top floor is made entirely from steel construction including roof construction, where 10cm sandwich panels are used as roof cover. The glazing is semi structural with aluminum profiles. The atrium has 12mx12 sky glass composed of structural glazing and aluminum profiles. The HVAC system is comprised of water pumps, solar panels, air coolers and water chillers, and sanitary water are provided by 3 water wells, 100000l water tank and public water system, while this as a whole contributes on the improvement of the environment and surroundings, but also in reducing the operational costs.
























Architects: Arbër Shala Architects
Area: 22000 m²
Year: 2020
Photographs: Dren Shala, Fatlum Berdynaj
Manufacturers: Sika, Eglo, Knauf, Climaguard, Dardania Commerc, Glazing Profiles, NIKA Enterier, Siniat, Trocal
Architecture & Design: Fatlum Berdynaj
General Contractor: Blueplan Kosovo AG
X Interior & Landscape Design:Erisa Berisha
Architecture Drawings:Leonita Krasniqi
On Site Architect:Ruzhdi Dakaj
Structural Engineer:Ruzhdi Morina
Electrical Engineer:Besim Canaj
Plumbing Engineer:Pajtim V. Gashi
Mechanical Engineers:Heset Hajdini, Gazmend Shala
Kitchen Technology Consultant:Durim Gashi
Electrical Contractor:Nazim Dedaj
Plumbing Contractor:Festim Dedaj
Mep & Hvac Contractor:MeritaTerm
City:Vërmica
Country:Kosovo