LAMAISON酒店从不断变化的历史和现代的扩展中生存。它的特点是植根于前法院的庄严大厦,它没有被列入名单,但回顾在不到一百年的时间里,它在五个不同的国家成为法院的历史,它是整个地区的重要历史建筑。同时,它被忽视了,在2001年失去了它作为法院的功能。随着作为酒店的新用途,该别墅得到了精心的修复,可以再次体验。
LAMAISON hotel lives from the changing history of the site and its modern extensions. Its character is rooted in the stately mansion of a former courthouse, which is not listed, but looking back at a history of being a courthouse in five different countries in less than a hundred years, it is an important historic building for the whole region. At the same time, it got neglected, having lost its function as a courthouse in the year 2001. With the new use as a hotel, the villa got carefully restored and can be experienced once more.





为了保持其杰出的遗产,所有的新建筑都被设计成带有穿孔铝制外墙的反面。这种屏风可以防止视野和夕阳的照射。关闭时,建筑物被缩减为抽象的体量,而在白天,由于百叶窗是由客人单独控制的,所以创造了一个变化的表达方式。
In order to keep its heritage outstanding, all new additions are designed as an antipode with perforated aluminum facades. This screen protects against views and the setting sun. Closed, the buildings are reduced to abstract volumes, while during the day, a changing expression is created as the shutters are controlled by the guests individually.

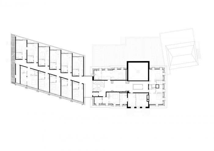
别墅是整个建筑群的入口,大堂、高级餐厅和酒店酒吧都向历史公园的露台开放。从这里,一个新的雕塑般的螺旋楼梯伴随着一部电梯连接了新旧结构的所有分层,并提供无障碍通道到所有客人区、33间客房和5间套房、会议区以及露台和公园。大厅还连接到位于前看守所的小酒馆,以及漂浮在公园上方的新玻璃冬季花园。
The villa serves as the entrée of the ensemble with the lobby, the fine dining restaurant, and the hotel bar opening up to the terrace in the historic park. From here, a new sculptural spiral staircase accompanied by an elevator connects all split levels of the old and new structures and gives barrier-free access to all guest areas, the 33 rooms, and 5 suites, the conference areas as well as to the terrace and the park. The lobby also connects to the bistro in the former house of the caretaker with the new glazed winter garden floating above the park.



LAMAISON的设计与现有场地、公园和它的老树有关。新与旧在其建筑语言中形成了对比,并通过减少材料的调色板来协调。历史建筑以温暖的白色为主色调,配以赭石和石灰华的素色瓷砖,而所有新增加的建筑都包裹着铜色阳极氧化铝百叶窗的外皮。所有的景观墙都是用风化钢设计的。这种材料的色调类似于萨鲁伊斯的梧桐树皮的颜色,这些梧桐树是由路易十四在其基础上种植的。通过其材料,酒店抽象地与法语爱好者的历史联系起来,并通过其当地生产的金属外墙与该地区的工业传统联系起来。
The design of LAMAISON relates to the existing site, the park, and its old trees. Old and new form a contrast in their architectural language harmonized by the reduced material palette. The historic buildings are restored in warm white colors with plain tiles in ochre and travertine while all new additions are wrapped with a skin of aluminum shutters anodized in bronze color. All landscape walls are designed in weathered steel. This material palette resembles the colors of the bark of the plane trees in Saarlouis, which got planted with its foundation by Louis XIV. Through its materials, the hotel ties abstractly with the Francophile history and links with its locally produced metal facades to the industrial tradition of the region.

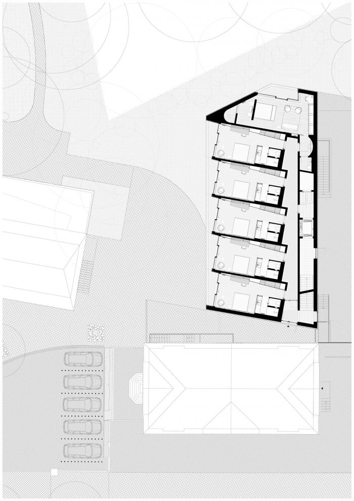
在酒店公园的环绕下,新的宾馆有10个房间和2个套房,通过其材料和颜色的细微差别将建筑和自然联系起来。建筑是非常简约的,其外墙是天然粗锯银杉,入口处是风化的钢材。
Surrounded by the hotel park, the new guesthouse with its 10 rooms and 2 suites links architecture and nature with its materials and color nuances. The architecture is very reduced with its façade in natural rough sawn silver fir and the entrance area in weathered steel.


客房是最小的,永恒的,并基于一个开放的房间布局。每个房间都有自己的氛围,基于不同的自然细微差别的色彩概念。他们用适合的瓷砖、家具和纺织品使房间沉浸其中。由于采用了天然材料,如涂油的橡木,以及统一的自然色彩,房间保持了平静。对过去时代的现代解释引用,如藤条编织、大理石盥洗台和浴室的装饰性玻璃,创造了某种熟悉感。全玻璃的推拉窗使房间与公园相通,创造了内部和外部的无缝连接。所有的内置技术部件,如灯具、开关、插座、配件都是黑色的,使房间具有统一性。
The guestrooms are minimal, timeless, and based on an open room layout. Each room gets its own atmosphere based on a color concept playing with different natural nuances. They immerse the rooms with adapted tiles, furnishings, and textiles. Because of the natural materials, such as the oiled oak, and the uniform natural colors, the rooms maintain their calm. The modern interpreted quotes of past eras, such as the rattan weave, the marble vanity, and the ornamental glazing of the bathroom create a certain familiarity. The fully glazed sliding windows open the room to the park and create a seamless connection between inside and outside. All technical built-in parts such as lamps, switches, sockets, fittings are black to give the room its uniformity.

如今,设计一家酒店就是在市场中确定一个位置。由于大饭店的时代已经结束,人们期望快速的投资回报,一个内部装修往往只需要持续七年,就会被新的主题所取代,以回应可能的客人总是快速变化的期望。LAMAISON正以一种基于自然材料和色彩的永恒设计来摆脱这种逻辑。这是一个整体的概念,其特点是质量、自然和寿命。古迹是一种可持续性,创造了自身的美。
Designing a hotel nowadays is defining a position within a market. Since the era of the grand hotel ended with the expectation of fast investment returns, an interior often only has to last seven years in order to get replaced by new themes answering to always faster changing expectations of possible guests. LAMAISON is escaping this logic with a timeless design based on natural materials and colors. It is a holistic concept characterized by quality, naturalness and longevity. Patina is a kind of sustainability creating beauty of its own.











Architects: CBAG.Studio Architects
Area: 5800 m²
Year: 2020
Photographs: Brigida González
Manufacturers: Dornbracht, Sky-Frame, ComTür, FSB, Knauf, Laufen, Villeroy & Boch, Wienerberger, Dillinger Fabrik Gelochter Bleche GmbH, Hawa Sliding Solutions, MetallArt, Schuco, TRACO
structural Engineer: GMP INGENIEURE GMBH
Acoustics Consultant: Audiotechnik Loch
Interior Design:CBAG.Studio interior design
Landscape Collaborator:DANE Landschaftsarchitektur BDLA
Mep Hvac Consultant:PDK Planungsgesellschaft
Fire Engineers:Bruckmeier Brandschutz GmbH
City:Saarlouis
Country:Germany