Lane End位于南唐斯的边缘,地处高处,周围是林地和迷人的景色。它取代了一个建造不善、效率低下的住宅,该住宅没有与该地点相联系。该设计创造了一个现代、节能的住宅,结合了天然材料,与场地相协调,按照非常高的标准设计和建造,但在不影响方案的设计完整性的情况下,以适度的预算创造。一楼有一个开放的生活空间,独立的音乐室,办公室,与外面有一个强大的联系,全高的门通向一个大的有盖烧烤露台。
Lane End is located on the edge of the South Downs on an elevated site surrounded by woodland and stunning views. It replaces a poorly constructed, inefficient home that didn’t engage with the location. The design creates a contemporary, energy-efficient home, incorporating natural materials to harmonize with the site, designed and built to very high standards but created to a modest budget without compromising the design integrity of the scheme. The ground floor has an open plan living space, separate music room, office, a strong connection with the outside with full height doors onto a large covered BBQ terrace.



在寒冷的季节,有一个独立的起居室,规模较小,更有亲和力,有一个用当地的砖头制作的特色壁炉,烟囱贯穿整个住宅,成为住宅的支柱。在建筑上借鉴了当地的乡土形式和材料的灵感,采用了不对称的坡形瓦片屋顶,沿着北面包裹。瓦片是对当地艺术和工艺建筑的参考,是一种较轻的、有质感的饰面,使人感到柔和。入口处显得很内敛,保持了私密性,与南面富有表现力的开放式立面形成对比。在内部,双层高度的空间用石灰质的花旗松衬托,夸大了光线的感觉,反映了外部的情况。
A separate living room for colder months, smaller and more intimate in scale with a feature fireplace crafted from locally sourced brick, the chimney rises through the home anchoring the house. Architecturally drawing upon local vernacular forms and materiality for inspiration, adopting an asymmetric pitched shingle roof wrapping down the northern face. The shingles are a reference to Arts and Crafts buildings locally, a lighter, textured finish that mellows. The entrance on the approach appears restrained, maintaining privacy, contrasting with the expressive and open south façade. Inside, double-height spaces are lined with limed Douglas Fir, exaggerating the feeling of light and reflective of the exterior.


位于南面的大窗户创造了与外部的流畅关系,使室内充满了日光。卧室位于房子的一楼两端,由一座桥隔开,它可以作为书房使用。阳台延伸到整个宽度,其形式挤压了房子,强调了水平,也提供了遮阳。种植槽被纳入其长度,进一步连接到景观中。简报中的一个重要要求是要有一个 "秘密的地方",一个客户可以藏身和放松的地方。在一楼,创建了一个小房间,有一张日间床和大的图画窗,使业主能够放松并享受一年中不断变化的景色。
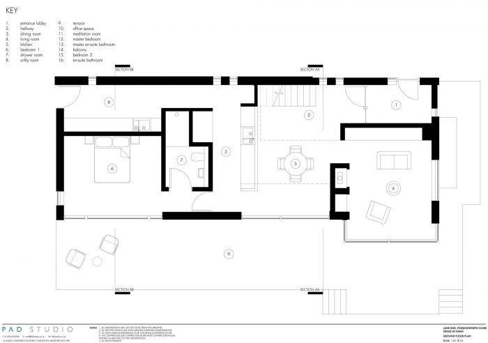
Large windows located on the south create a fluid relationship with outside, flooding the interior with daylight. Bedrooms are located on the first floor either end of the house, separated by a bridge that doubles as a study. A balcony extends the full width, the form extrudes the house, emphasizing the horizontal also providing solar shading. Planters are incorporated its length, further connectivity to the landscape. An important requirement in the brief was for a ‘secret place’, somewhere where the clients could hide and relax in. On the first floor, a snug has been created, with a day bed and large picture windows to allow the owners to relax and enjoy the ever-changing views throughout the year.


为了最大限度地利用场地和被动的太阳增益,木制框架结构最大限度地减少了对环境的影响,降低了建筑材料的碳含量。大面积的悬挑提供了阳光控制,开口的分布使自然交叉通风最大化。客户对他们的方法非常感兴趣,参与到建筑的各个方面,包括安装内部覆层和学习如何抛光混凝土地板。房子周围和阳台上的景观设计也是由客户创造的。
Arranged to maximize the site and passive solar gain, the timber frame structure minimizes environmental impact reducing the embodied carbon of construction materials. Large overhangs provide solar control with, openings distributed to maximize natural cross ventilation. The client was extremely hands-on in their approach, getting involved in all aspects of the build including putting up the internal cladding and learning how to polish the concrete flooring. The landscaping, around the house and on the balcony, was also created by the client.


与景观的连接也是一个关键的设计驱动力,位于南立面的大窗户在内部和外部之间创造了一个流畅的关系,提供了房子附近的种植的壮观景色和周围景观的广阔视野。一楼的阳台还包括了一个种植的草药花园和一个自然的尖顶黄杨树的花架,进一步加强了与景观的联系,同时也为卧室提供了与公园里的步行者的隐私。
Connectivity to the landscape was also a key design driver, large windows located on the south elevation create a fluid relationship between inside and outside, offering spectacular views of the immediate planting by the house and the expansive views of the surrounding landscape. The first-floor balcony also incorporates a planted herb garden and a natural trellis of espalier Hornbeam along its length further enhances the connection to the landscape whilst also offering privacy for the bedrooms from walkers in the parkland beyond.

















Architects: PAD studio
Area : 185 m²
Year : 2018
Photographs :Richard Chivers
Lead Architect : Wendy Perring
Engineering : McCarey Simmonds
Contractor : Object Assemble
Cost Consultants : APS Associates
Country : United Kingdom