灯笼屋是为拉各斯的一个家庭设计的,位于拉各斯的香蕉岛,是历史悠久的伊科伊社区岸边拉各斯泻湖上的一个私人岛屿。这座有五间卧室、七间浴室、面积为911平方米的房子是一个独立的绿洲,体现了Tosin Oshinowo标志性的非洲穆斯林风格,线条简洁明快,融合了复杂的几何图案以强调深度、质感和材料性,并俏皮地利用光线在住宅的内部和外部创造出温暖的光辉。
The Lantern house was designed for a Lagosian family on Banana Island, in Lagos, a private island on the Lagos Lagoon off the shore of the historic Ikoyi neighbourhood. The five-bedroom, seven-bathroom 911sqm house is a self-contained oasis and emblematic of Tosin Oshinowo’s signature afrominimilist style, with clean, crisp lines, an integration of sophisticated geometric patterning to emphasize depth, texture, and materiality, and playful use of light to create a glow of warmth in the interior and exterior of the home.


这是该事务所在香蕉岛的第一个项目,香蕉岛是一个独特的区域,是许多城市精英的家。这个人工岛拥有尼日利亚最高的房地产,并拥有复杂的水、电和排水系统等基础设施。住宅本身也利用了智能技术,在建造时既采用了领先的技术,又在生产遮阳、交叉通风和当地材料方面做出了针对气候的决定,以确保住宅的可持续性和气候敏感性。
This is the practice’s first project on Banana Island, which is an exclusive area and home to many of the city’s elite. This man-made island has the highest real estate in Nigeria and has a sophisticated infrastructure of water, power, and drainage systems. The home itself also utilized smart technology and was built both with leading technology and climate-specific decisions in producing shade, cross-ventilation, and local materials to ensure the home is sustainable and climate-sensitive.


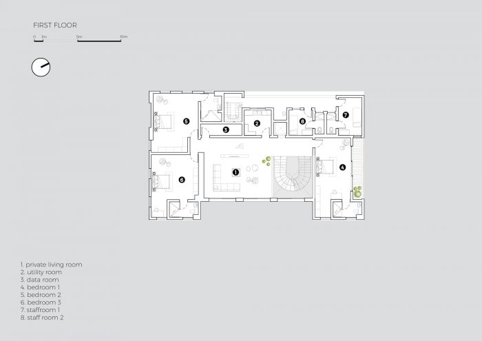
客户的要求是在三分之二的标准地块上设计一个有五间套房的智能可持续发展意识的住宅,有两个客厅、一个书房、一个游泳池、支持服务和娱乐的场地。该地块向东开放,因此,该住宅的设计方向是所有房间都能接受朝东的自然光,这对住宅的功能至关重要。自然光的温和扩散,加上高高的天花板和高大的窗户,使空间感觉更大,更通风,更有活力。开放式的生活,视线贯穿于底层的程序化空间,也使家庭有一个自由流动的、开放的、舒适的空间来召集和互动,轻松地流向室外的生活空间和游泳池,使住宅的室内和室外空间无缝流动,这是拉各斯热带气候的一个重要好处。
The client's brief was to design a five-ensuite bedroom smart sustainability-conscious home with two living rooms, a study, a swimming pool, support services and grounds for entertaining on two-thirds of a standard plot. The land opens up to the east, and as such, the home was designed for all rooms to be oriented to receive east-facing natural light, which is essential to the function of the home. The gentle proliferation of natural light, augmented by the high ceilings and tall windows, makes the space feel bigger, airier, and more dynamic. The open-plan living with lines of sight throughout the programmed spaces on the ground floor also enables a free-flowing, open, and comfortable space for the family to convene and interact, with an easy flow to the outdoor living space and pool, enabling a seamless flow between the indoor and outdoor spaces of the home that is a key benefit of Lagos’s tropical climate.


当你垂直向上移动时,房子的隐私性也会层层增加,这与传统约鲁巴家庭环境的文化要求相似,对多代人的生活至关重要。为了满足房屋某些区域对隐私和独立生活空间的需求,主卧室套房还纳入了一个58平方米的步入式衣柜,并有两个天窗将自然光投射到空间中。另一个基本特征是贯穿整个建筑的双螺旋楼梯。
The house also has layers of increased privacy as you move vertically upwards through the property, similar to the cultural requirements of a traditional Yoruba household setting and essential to multigenerational living. In keeping with this need for privacy and separate living spaces in some regions of the house, the master bedroom suite also incorporates a 58 sqm walk-in wardrobe with two skylights that throw natural light into the space. Another essential feature is the double helical staircase that runs through the building.


房子的室内设计由客户直接管理,他在拉各斯当地有一家室内设计公司,将建筑的最小姿态与更大的审美形成对比,整合了大胆的色彩和图案以及尼日利亚著名艺术家的铜质浮雕艺术品。与底层的家庭区域一样,上层也最大限度地发挥了室内和室外空间无缝流动的潜力,顶层有一个与主人套房相邻的亲密天井。
The house's interior design, managed directly by the client, who has an interior design practice locally in Lagos, contrasts the minimal gestures of the architecture with a more maximalist aesthetic, integrating bold colors and patterns as well as bronze relief artworks from prominent Nigerian artists. As with the family area of the ground floor, the upper floors also maximize the potential for a seamless flow between indoor and outdoor spaces, with an intimate patio on the top floor adjacent to the master suite.


建筑物的外部包括坚固的结构墙和玻璃,并配有花纹钢屏蔽,以创造出同时具有坚固和多孔结构的印象。白天,室内充满了自然光,而阳光反射并突出了花纹屏幕。到了晚上,室内通过花纹屏风向外发光,形成一种灯笼效应。
The exterior of the building includes solid structural walls and glass, with patterned steel screening to create the impression of a solid and porous structure all at once. During the day, the interiors are filled with natural light, while the sun reflects and highlights the patterned screen. At night, the interior glows outwards through the patterned screens, creating a lantern effect.





Architects: cmDesign Atelier
Area: 911 m²
Year: 2022
Photographs:Tolu Sanusi
Manufacturers: ACL homemart, Aplus Nigeria, EBM Nigeria, Interstyle Nigeria, Luadi Porte, Spotlight International, Waste To Biotech
Lead Architect: Tosin Oshinowo
Structural Engineering: Starkwood Associates
Services Engineering: Topklan Engineering Services
Interior Designers: Seven, Six & Ten Interiors
Landscape: cmDesign Atelier
Main Contractor: Bulwark Construction
Design Team: Nneka Igboh, Efemena Egube, Peter Ifeanyi, Moyinoluwa Senjobi, Margeret Udonsak
Audio Visual Consultant: Triangle Audiovisual
City: Lagos
Country: Nigeria