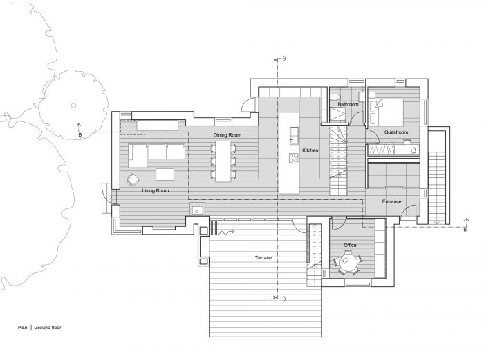
一个独特的家庭住宅位于丹麦哥本哈根郊外的绿色住宅区,可以俯瞰高尔夫球场和一个受保护的自然保护区。这座房子是为一个丹麦/英国家庭建造的,结合了斯堪的纳维亚的简洁和英国的棕色砖块。房子被拉回到地块上,以提供隐私,并最大限度地扩大高尔夫球场的视野。房子朝向太阳,以一个大的木制露台为中心。房子的底层是开放式的,将厨房、用餐区和休息室合并在一个大空间里。这与室外的木制露台相连,有一扇大的玻璃折叠门,打开后使室内和室外融为一体。
A unique family home situated outside Copenhagen, Denmark in a green, residential setting overlooking a golf course and a protected nature reserve. The house is built for a Danish/English family and combines Scandinavian simplicity and English brown bricks. The house is pulled back on the plot to provide privacy and maximize the view of the golf course. Oriented towards the sun, the house is centered around a large wooden terrace. The ground floor of the house is open-plan, combining the kitchen, dining area and lounge in one large space. This is connected to the outdoor wooden terrace with a large glass folding door that, when opened, makes the indoor and outdoor melt together.





房子有三层,包括五间卧室和一个屋顶露台,可以从内部和外部进入。这座房子通过使用木材和温暖的材料创造了一种温暖的家庭氛围,大窗户使每个房间至少有两面的日光照射进来,从而使室内光线明亮而友好。
The house has three levels, including five bedrooms and a roof terrace which can be accessed from both the inside and the outside. The house has a warm and homey atmosphere created by the use of wood and warm materials, and the large windows which allow daylight from a minimum of two sides in each room, resulting in a light and friendly interior.

在外面,房子是用英国粘土制成的棕色砖块建造的,这些砖块有各种细节。屋顶用与砖相同的粘土制成的屋顶瓦片覆盖,使房子看起来是整体的。在入口处,房子用木头做衬垫,并在木头与砖头相接的角落处做了圆角处理,营造出一种友好和温暖的欢迎氛围。
On the outside, the house is built with brown bricks made of English clay which have various brick details. The roof is cladded with roof tiles made from the same clay as the bricks to make the house appear monolithic. At the entrance, the house is cladded with wood and is rounded at the corner where the wood meets the bricks, creating a friendly and warm welcome.





















Architects: FORCE4 Architects
Area : 375 m²
Year : 2019
Manufacturers : AutoDesk, Duravit, VELUX Group, Barlby Carlsson Kitchen, Barlby Carlsson Staircase, Ceramica Fondovalle, Everfloor, Krone Window, Lacuna folding door, Petersen Tegl, Tripplex, Vola tabs
Engineering : T-Kon Enginering, JLE Engineering
Clients : The Lauesen Family
City : Gammel Holte
Country : Denmark