这座现浇混凝土房屋位于五英亩茂密的Ohia森林中,它将室内和室外的生活空间与夏威夷大岛的森林、天空和海岸线的景色结合在一起。它继续了我们对还原性建筑的探索,增强了在这个引人注目的环境中的生活体验。
Located on five acres of dense Ohia forest, this cast-in-place concrete house frames indoor and outdoor living spaces along with views of the forest, the sky, and the coastline on Hawaii’s Big Island. It continues our exploration of a reductive architecture that enhances the experience of living in this compelling environment.


房子的主要特征是一根混凝土梁,长140英尺,高48英寸,宽12英寸,贯穿整个建筑,只有三个短的混凝土墙支撑着它的巨大跨度。层状梁和木板构成了悬挂在它下面的屋顶。混凝土梁允许不间断的玻璃和覆盖的户外空间的可观的跨度,这在人造和自然之间创造了一个可渗透的边缘。这些巨大的开放性放大了生活在Ohia森林中的感觉。
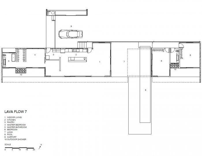
The main feature of the house is a concrete beam, 140 foot long, 48 inch tall x 12 inch wide running the length of the building with only three short concrete walls supporting it along its massive span. Laminated beams and wood planks make up the roof that hangs below it. The concrete beam allows for sizable spans of uninterrupted glass and covered outdoor space, which creates a permeable edge between the man-made and nature. These huge expanses of openness amplify the sensation of living in the Ohia forest.

大戟树是夏威夷的特有树种。它们是第一批生长在新熔岩流上的树木。Lavaflow 7位于基拉韦厄火山口山坡上的1955年熔岩流上。大叶女贞艳丽的红色花朵被称为Lehua,与红绿相间的树叶和深浅不一的树皮以及黑色熔岩形成了鲜明的对比。与大叶女贞一样,灰色的混凝土房屋与现有的熔岩和树木景观融为一体,同时房屋中的色彩也模仿了莱华花。
Ohia trees are endemic to Hawaii. They are the first trees to grow on new lava flows. Lavaflow 7 sits on a 1955 lava flow on the slopes of Kilauea crater. The Ohia’s brilliant red flower, called the Lehua, are a striking contrast to the ruddy green leaves and shades of gray of the tree’s bark and the black lava. Like the Ohia, the gray concrete house blends into the existing landscape of lava and trees while splashes of color in the house mimic the Lehua.

房子的性质是细长的,私人和公共区域被一个凉台分割开来,并被一个游泳池分割开来。薄薄的房子通过交叉通风提供了被动冷却,从而消除了机械空调,房间里的光线质量在一天中始终如一,并且每个房间都能看到森林、天空和海洋。其他可持续发展的特点包括一个雨水收集系统,该系统提供所有的水,以及一个用于生活热水的太阳能加热系统。在为数不多的实心墙周围,松散的空间分布创造了一个在各个方向都同样开放的房子,欢迎大自然的到来。
The nature of the house is long and thin, with private and public areas divided by a lanai and bisected by a lap pool. The thinness of the house provides passive cooling through cross ventilation allowing for the elimination of mechanical air conditioning, consistent and diffused light quality in the rooms through out the day, and a view of the forest, sky, and ocean from every room. Other sustainable features include a rainwater catchment system that supplies all water used along with a solar heating system for domestic hot water. A loose distribution of spaces around the few solid walls creates a house that is equally open in all directions and welcomes nature in.











Architects: Craig Steely Architecture
Year : 2013
Photographs :Bruce Damonte
City:HILO
Country:UNITED STATES